Compact, well-laid layout with garden and driveway close to good primary schools.
Three double bedrooms with en suite to the top-floor principal bedroom
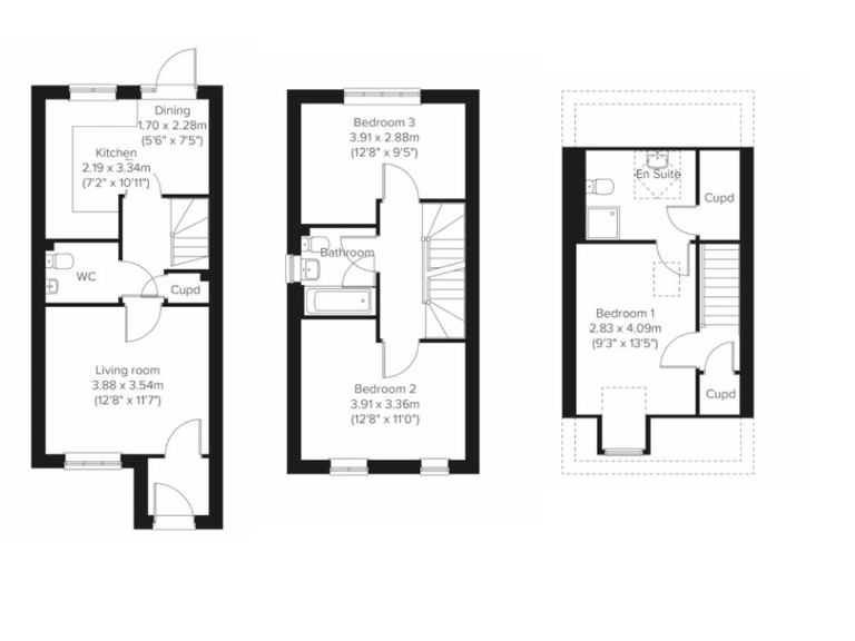
This three-storey semi-detached Saunton offers practical family living over compact floorspace. The property includes an open-plan kitchen/dining area, a front-aspect living room, and three double bedrooms, with an en suite to the top-floor principal bedroom. Outside there is an enclosed rear garden and off-street parking on a driveway, set on a notably large plot for the immediate area.
The home is freehold and sits in a small town fringe location with fast broadband and good primary schools nearby. Neighbourhood amenities include sports facilities, healthcare and regular bus links. The layout and storage cupboards make the house practical for everyday family use while the top-floor en suite adds useful privacy.
Buyers should note the overall internal size is relatively small (around 655 sq ft) and some information is illustrative: room dimensions and kitchen layouts are approximate. Council tax is above average for the area. Prospective purchasers are advised to commission their own surveys and checks on services before committing.
This property will suit buyers seeking a compact but well-laid-out modern home close to schools and local facilities, or investors looking for a straightforward freehold townhouse with rental appeal in a suburban setting.
3 bedroom semi-detached house for sale in Desborough Road, Rothwell, Kettering, NN14 — £284,950 • 3 bed • 2 bath • 655 ft²
3 bedroom terraced house for sale in Desborough Road,
Rothwell,
NN14 6JQ, NN14 — £274,950 • 3 bed • 1 bath • 656 ft²
3 bedroom semi-detached house for sale in Desborough Road,
Rothwell,
NN14 6JQ, NN14 — £282,950 • 3 bed • 1 bath • 392 ft²
3 bedroom semi-detached house for sale in Desborough Road,
Rothwell,
NN14 6JQ, NN14 — £284,950 • 3 bed • 1 bath • 530 ft²
3 bedroom end of terrace house for sale in Desborough Road,
Rothwell,
NN14 6JQ, NN14 — £279,950 • 3 bed • 1 bath • 656 ft²
3 bedroom town house for sale in Stag Road, Rothwell, Kettering, NN14 — £250,000 • 3 bed • 2 bath • 782 ft²










































































