Affordable starter home close to woodland and local schools.
Shared ownership price shown at 50% of full market value
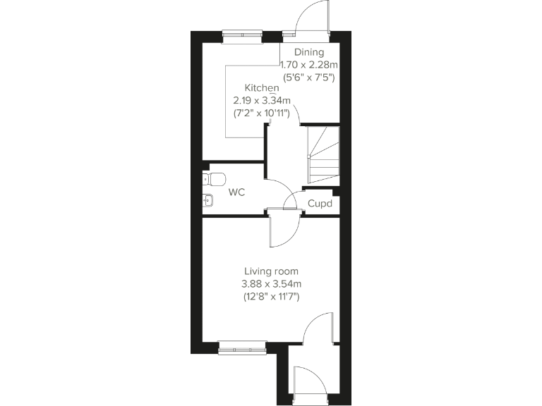
This modern three-storey semi offers an economical route onto the ladder via shared ownership (price shown at 50% of market value). The Saunton layout gives practical family living: open-plan kitchen/dining with garden access, a front-aspect living room, and a top-floor principal bedroom with en suite.
The home is new-build and energy-efficient, with allocated off-street parking, an enclosed porch, downstairs WC and multiple storage cupboards. Broadband speeds are fast and the development sits close to woodland, which provides a quieter, semi-rural feel while remaining in a small town setting.
Be aware of the property’s compact overall size (approximately 530 sq ft) and a single family bathroom. Council tax banding will be confirmed post-occupation. The freehold tenure and shared ownership model suit first-time buyers who need a lower upfront cost but should note they are buying a 50% share at the listed price.
Nearby primary schools have Good Ofsted ratings and local amenities include sports and leisure facilities and regular bus links. For buyers seeking a low-maintenance, modern starter home with scope to personalise, this house offers affordability and sensible everyday living; for those needing more space or multiple bathrooms, size constraints will be limiting.
3 bedroom semi-detached house for sale in Desborough Road,
Rothwell,
NN14 6JQ, NN14 — £282,950 • 3 bed • 1 bath • 392 ft²
3 bedroom semi-detached house for sale in Desborough Road,
Rothwell,
NN14 6JQ, NN14 — £282,950 • 3 bed • 1 bath • 1176 ft²
3 bedroom semi-detached house for sale in Desborough Road,
Rothwell,
NN14 6JQ, NN14 — £284,950 • 3 bed • 1 bath • 656 ft²
3 bedroom end of terrace house for sale in Desborough Road,
Rothwell,
NN14 6JQ, NN14 — £279,950 • 3 bed • 1 bath • 530 ft²
3 bedroom terraced house for sale in Desborough Road,
Rothwell,
NN14 6JQ, NN14 — £274,950 • 3 bed • 1 bath • 656 ft²
3 bedroom end of terrace house for sale in Cheaney Street, Rothwell, Kettering, NN14 — £117,000 • 3 bed • 1 bath • 743 ft²






































































































































