Efficient three-bed new-build with en suite and parking — ideal for low-maintenance family living.
Three-storey terraced new-build, freehold, energy efficient
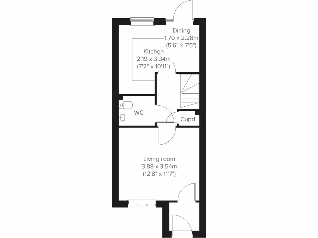
Compact overall size: 656 sq ft; rooms are modestly proportioned
Open-plan kitchen/diner with direct access to outside space
Top-floor bedroom with en suite; front-aspect living room
Downstairs WC, enclosed porch and three storage cupboards
Allocated off-street parking; decent plot within development
Council tax band not yet set; post-occupation determination
Local secondary schools rated poorly; check options for older children
This three-storey terraced home on Desborough Road offers a compact, modern layout tailored to practical family life. At 656 sq ft the Saunton design uses vertical space well: a front-aspect living room, open-plan kitchen/dining with direct outdoor access, and a top-floor main bedroom with en suite. Allocated off-street parking, an enclosed porch, a downstairs WC and three storage cupboards add day-to-day convenience.
The property is a new-build, freehold and described as energy efficient, which should help running costs. Local broadband speeds are fast and the area has average crime and good primary schools close by (Rothwell Victoria Infant and Rothwell Junior School are rated Good). The plot is described as decent and the development setting is suburban with leafy surroundings.
Buyers should note the house is small in overall floor area (656 sq ft) and the room sizes are compact, so the layout suits a couple, young family or first-time buyers wanting low-maintenance living rather than those needing generous living space. Council tax band will be set post-occupation. Nearby secondary school ratings are mixed (Montsaye Academy rated Inadequate; Bishop Stopford Requires Improvement), so parents of older children should consider secondary options.
Overall this is a practical, modern home that trades spacious interiors for efficient, low-maintenance living, good connectivity and local primary schools. It will appeal to buyers prioritising new-build convenience, energy efficiency and a manageable footprint in a small-town suburban setting.
3 bedroom end of terrace house for sale in Desborough Road,
Rothwell,
NN14 6JQ, NN14 — £279,950 • 3 bed • 1 bath • 656 ft²
3 bedroom semi-detached house for sale in Desborough Road,
Rothwell,
NN14 6JQ, NN14 — £284,950 • 3 bed • 1 bath • 530 ft²
3 bedroom semi-detached house for sale in Desborough Road,
Rothwell,
NN14 6JQ, NN14 — £284,950 • 3 bed • 1 bath • 656 ft²
3 bedroom semi-detached house for sale in Desborough Road,
Rothwell,
NN14 6JQ, NN14 — £282,950 • 3 bed • 1 bath • 1176 ft²
2 bedroom end of terrace house for sale in Desborough Road,
Rothwell,
NN14 6JQ, NN14 — £254,950 • 2 bed • 1 bath • 1216 ft²
3 bedroom semi-detached house for sale in Desborough Road,
Rothwell,
NN14 6JQ, NN14 — £282,950 • 3 bed • 1 bath • 656 ft²






































































































































