Energy-efficient three-bedroom home with garden and allocated parking.
Three-storey new-build end-of-terrace with modern finishes
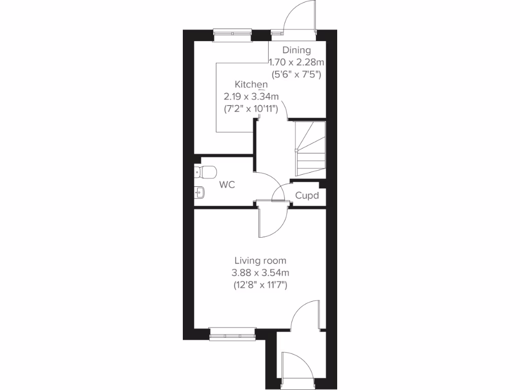
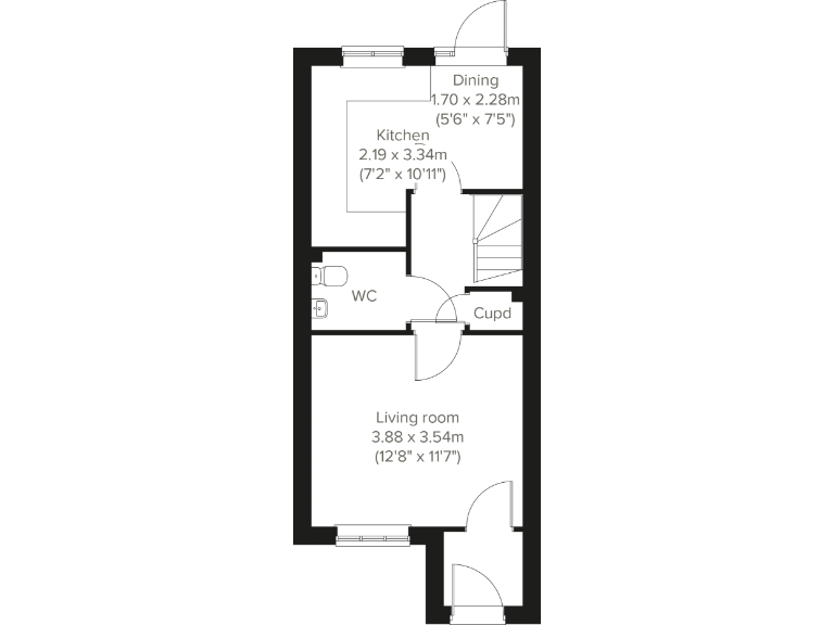
A compact, modern three-storey end-of-terrace built as part of a new Woodland Valley phase, this three-bedroom home suits first-time buyers or small families who prioritise low-maintenance living and energy efficiency. The layout places an open-plan kitchen/diner on the ground floor, a front-aspect living room and convenient downstairs WC for everyday practicality. Top-floor bedroom one benefits from an en suite, and there are three built-in storage cupboards across the house.
The house is Freehold and comes with allocated off-street parking and an enclosed garden – useful practical features often sought by young households. The property totals around 530 sq ft, so rooms are compact; living space is efficiently arranged but small-family furniture plans should be checked against the room dimensions. Energy-efficiency is a positive for running costs.
Location sits on the town fringe of Rothwell with access to good-rated infant and junior schools nearby; secondary-school performance in the area is mixed, so check catchment maps if that is a priority. Broadband is reported fast and local amenities include sports and leisure facilities and regular bus links.
Buyers should note material limitations: the home is small overall, so space is best for couples, first-time buyers or small families rather than those needing expansive living areas. Council tax banding is not yet set by the local authority and internal room sizes are compact, so visit to assess storage and furniture layouts before committing.
3 bedroom terraced house for sale in Desborough Road,
Rothwell,
NN14 6JQ, NN14 — £274,950 • 3 bed • 1 bath • 656 ft²
3 bedroom terraced house for sale in Desborough Road,
Rothwell,
NN14 6JQ, NN14 — £269,950 • 3 bed • 1 bath • 579 ft²
3 bedroom semi-detached house for sale in Desborough Road,
Rothwell,
NN14 6JQ, NN14 — £284,950 • 3 bed • 1 bath • 530 ft²
3 bedroom semi-detached house for sale in Desborough Road,
Rothwell,
NN14 6JQ, NN14 — £284,950 • 3 bed • 1 bath • 656 ft²
3 bedroom semi-detached house for sale in Desborough Road,
Rothwell,
NN14 6JQ, NN14 — £279,950 • 3 bed • 1 bath • 319 ft²
2 bedroom terraced house for sale in Desborough Road,
Rothwell,
NN14 6JQ, NN14 — £259,950 • 2 bed • 1 bath • 364 ft²


























































































