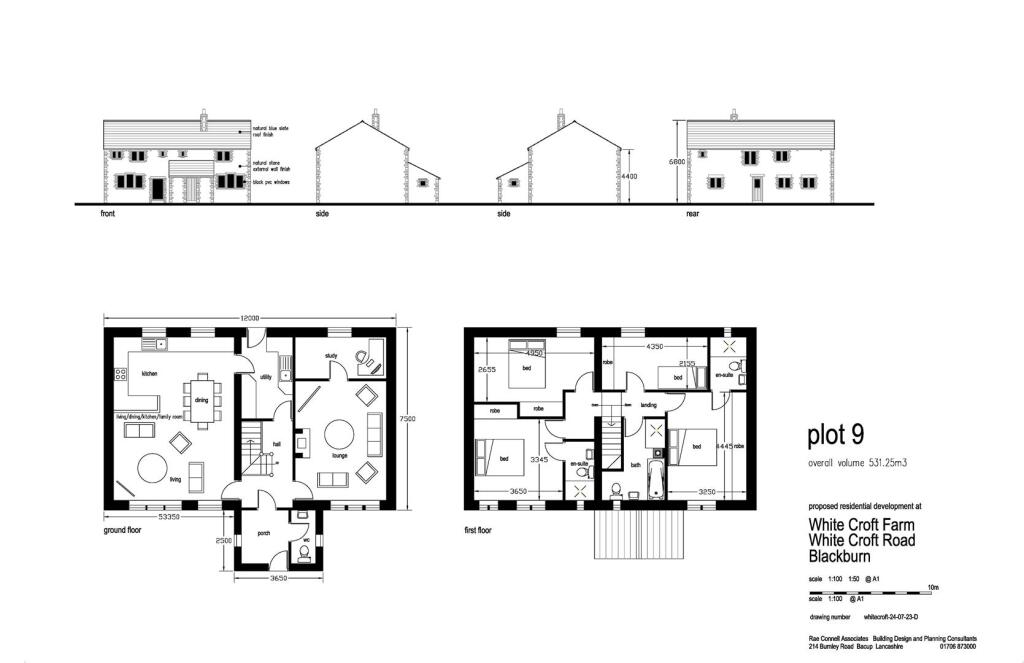
Large plot with planning permission for nine homes — ready for a developer or investor.
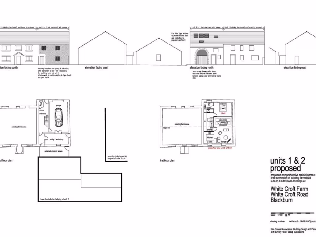
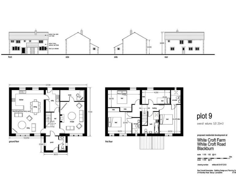
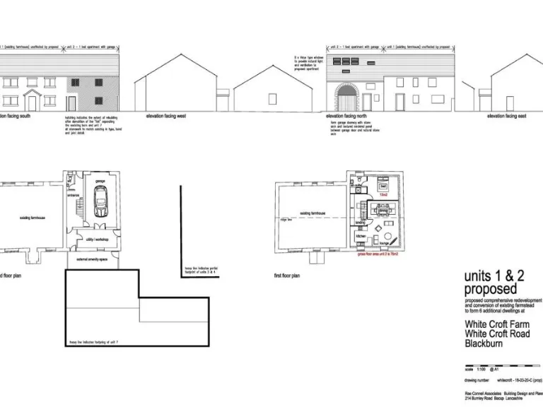
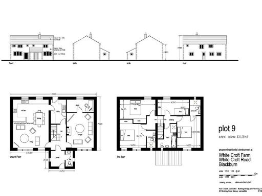
Planning permission granted for nine dwellings including barn conversions
A rare development site with planning permission to create nine dwellings, including conversion of existing stone-built barns and new-build houses. The substantial, very large plot sits adjacent to open countryside and benefits from multiple vehicular access points, generous yard areas and a detached garage — all in a semi-rural location with good road links to the M65 and nearby towns.
Planning permission is already granted (details on Hyndburn planning portal), making this attractive to developers and investors ready to move to implementation. The proposals retain the character of the traditional stone farmhouse while delivering a mix of family homes and a one-bed annexe; additional land is available by negotiation for potential expansion of the scheme.
Buyers should note this is a development project: internal condition and usable floor areas are not fully discernible from the images, and conversion/rebuild works will require professional surveys, detailed costings and building regs compliance. EPC ratings are TBC. Broadband speeds are very slow locally and council tax is above average (Band E).
Land for sale in Haslingden Old Road, Oswaldtwistle, Accrington, BB5 — £1,950,000 • 1 bed • 1 bath
3 bedroom detached house for sale in Broken Stone Road, Feniscowles, Blackburn, Lancashire, BB3 — £595,000 • 3 bed • 1 bath
Property for sale in Brockhall Village, Old Langho, BB6 — £1,000,000 • 1 bed • 1 bath • 17244 ft²
Barn conversion for sale in Further Houses Farm Barn, Laund Lane, Haslingden, Rossendale, BB4 — £500,000 • 1 bed • 1 bath • 4000 ft²
Detached house for sale in Old Nab Road/Moor Lane, Whalley, BB7 — £400,000 • 1 bed • 1 bath
Land for sale in Residential development for sale – Bridge House Farm Development, Laneshawbridge, BB8 7HX, BB8 — £450,000 • 1 bed • 1 bath • 1929 ft²






























































































































































































