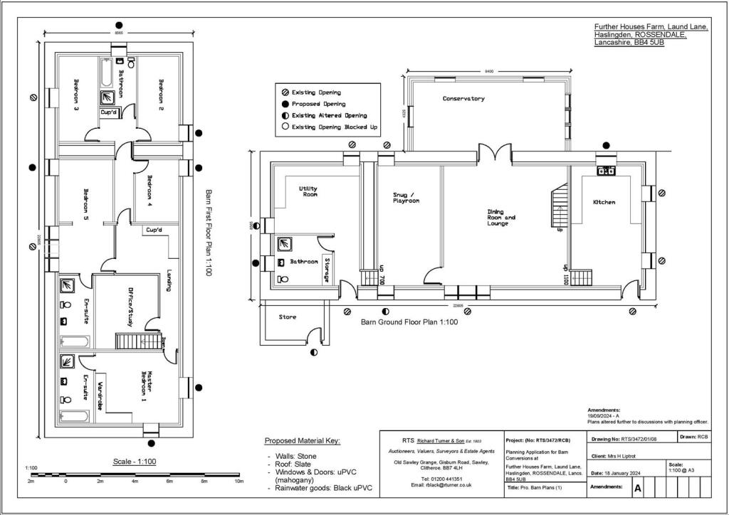
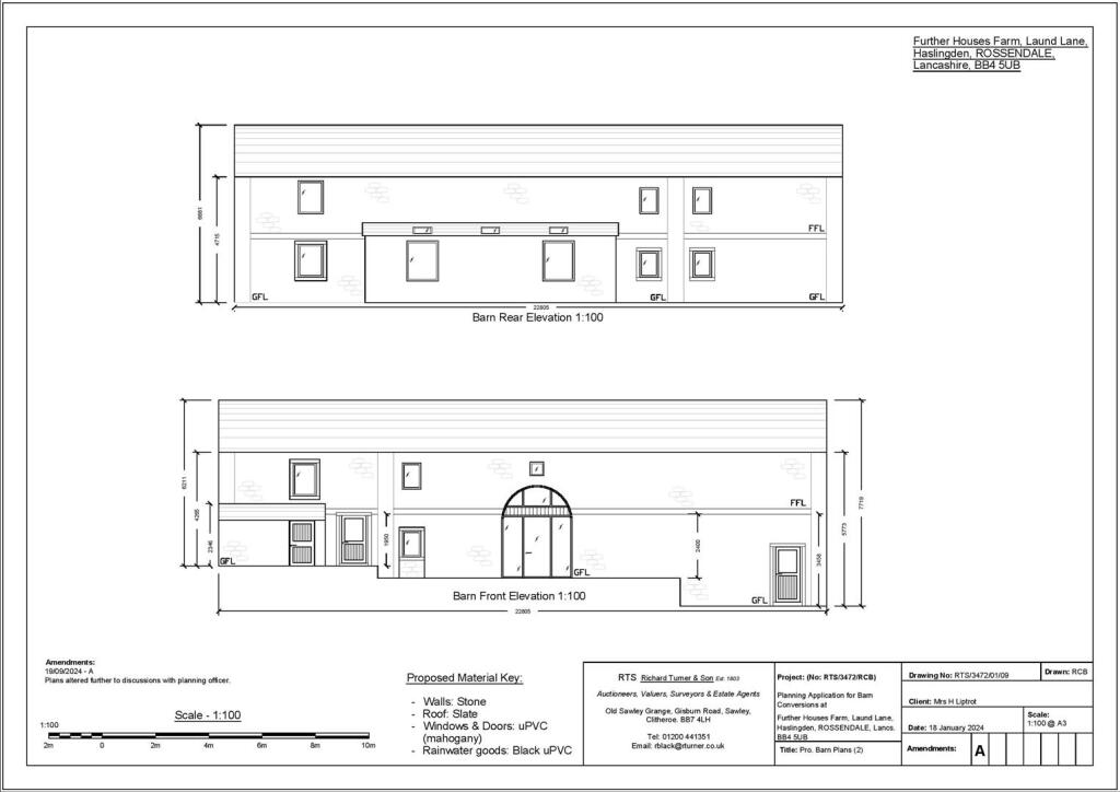
**Standout Features:**
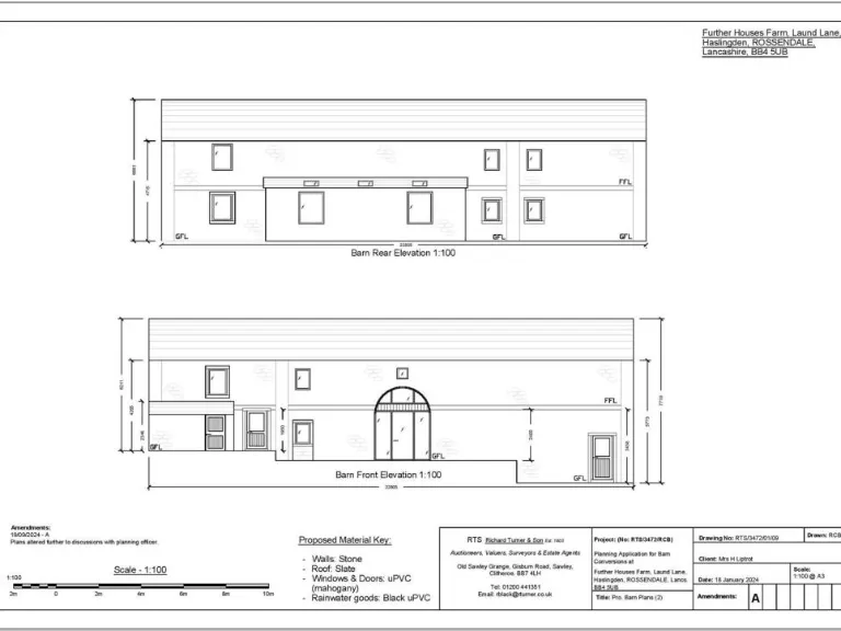
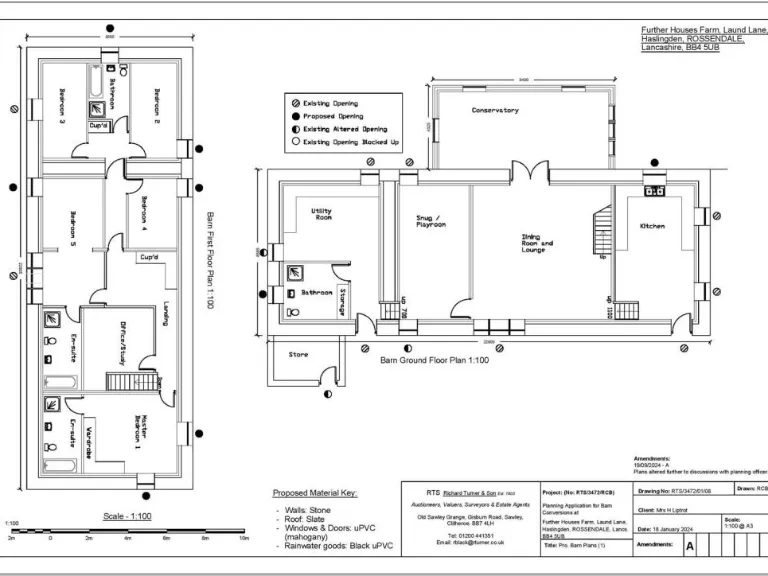
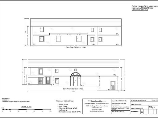
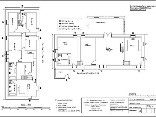
- Spacious barn conversion with planning permission for a six-bedroom residence
- Expansive 34 acres of picturesque rural land
- Total living space of 4,000 square feet
- Set in a tranquil hamlet location, offering privacy and serenity
- Excellent mobile signal; broadband speed: very slow
- Convenient access to A56 for commuting to Manchester and the M65
- Includes a small barn with a demolition order in place
**Summary:**
Discover a once-in-a-lifetime opportunity to create your dream family home with this extraordinary barn conversion nestled in the serene landscape of Laund Lane, Cribdenside. Spanning an impressive 4,000 square feet and surrounded by 34 acres of stunning pastureland and moorland, this property is primed for transformation into a spacious six-bedroom residence. Envision the comfort and security of a secluded retreat, where your family can thrive amidst breathtaking countryside views and the gentle sounds of nature.
Ideal for families or investors, this property offers the flexibility for future renovations and developments, given the expansive acreage. While broadband speeds may be slower, the excellent mobile signal ensures connectivity, making it easier to work or study from home. Located within reach of well-regarded schools, this property promises not just a home but a lifestyle enriched by nature and community. Don’t let this unique opportunity slip away – envision the beautiful family home you could create in this enviable setting!
Coach house for sale in Coach House, Further Houses Farm, Laund Lane, Haslingden, Rossendale, BB4 — £425,000 • 1 bed • 1 bath
Residential development for sale in Helmshore Road, Holcombe, Bury, BL8 — £400,000 • 1 bed • 1 bath • 1328 ft²
Residential development for sale in Helmshore Road, Holcombe, Bury, BL8 — £400,000 • 1 bed • 1 bath • 1103 ft²
4 bedroom barn conversion for sale in Hollin Hall, Trawden, Colne, Lancashire, BB8 — £750,000 • 4 bed • 2 bath • 3839 ft²
Barn conversion for sale in Stoneygate Lane, Ribchester, PR3 — £340,000 • 1 bed • 1 bath
6 bedroom character property for sale in Lark Hill Barn, Roundhill Lane, Rossendale BB4 5TY, BB4 — £750,000 • 6 bed • 4 bath • 2594 ft²














































































