Freehold site with consent for nine homes — large plot, stone barns, additional land negotiable.
Planning permission granted for nine dwellings
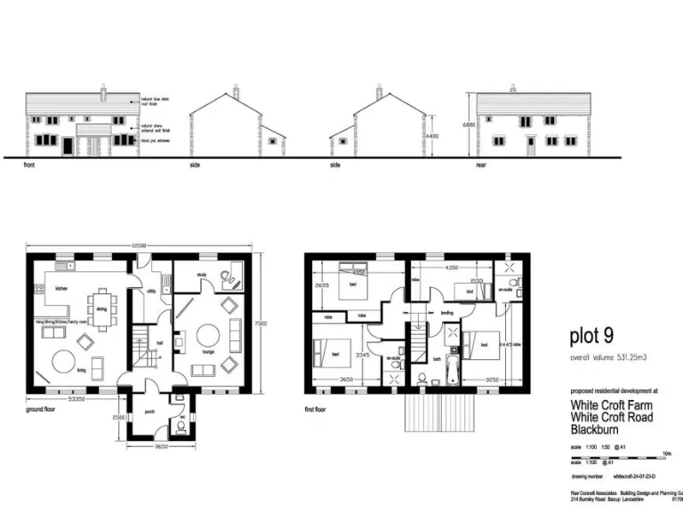
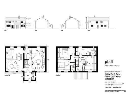
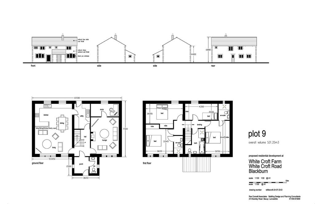
A rare development site on Haslingden Old Road with planning permission granted for nine dwellings, including conversion of existing stone-built barns. The freehold holding extends over a very large plot with commanding countryside views and direct frontage to a quiet rural road — ideal for a developer seeking a semi-rural scheme that blends traditional character with new build homes.
The consented scheme proposes a mix of 1–4 bedroom units, detached and semi-detached houses, garages and associated driveways, reusing the stone farmhouse and barns where shown on plans. The size and number of existing outbuildings reduce demolition and site clearance in parts, but conversion works will require careful specification to retain fabric and meet building regulations.
Buyers should note material considerations: the area records very slow broadband, the wider locality shows levels of deprivation, and council tax is above average (Band E). Infrastructure and service connections, conversion costs, and local planning conditions will affect budget and programme. The site is freehold and additional adjacent land is available by negotiation, offering scope to alter unit mix or increase density subject to further consents.
This is a practical opportunity for experienced developers or investors who can manage conversion of traditional stone buildings and deliver a mixed residential scheme in a semi-rural setting. Proximity to Oswaldtwistle, Blackburn and the M65 provides commuting links while retaining countryside appeal — the project offers resale or rental potential once refurbished and completed.
House for sale in Haslingden Old Road, Oswaldtwistle, Accrington, BB5 — £1,950,000 • 1 bed • 1 bath
Property for sale in Brockhall Village, Old Langho, BB6 — £1,000,000 • 1 bed • 1 bath • 17244 ft²
3 bedroom detached house for sale in Broken Stone Road, Feniscowles, Blackburn, Lancashire, BB3 — £595,000 • 3 bed • 1 bath
Barn conversion for sale in Further Houses Farm Barn, Laund Lane, Haslingden, Rossendale, BB4 — £500,000 • 1 bed • 1 bath • 4000 ft²
Detached house for sale in Old Nab Road/Moor Lane, Whalley, BB7 — £400,000 • 1 bed • 1 bath
Land for sale in Residential development for sale – Bridge House Farm Development, Laneshawbridge, BB8 7HX, BB8 — £450,000 • 1 bed • 1 bath • 1929 ft²






























































































































































































