Executive rural development with planning consent close to Clitheroe and transport links.
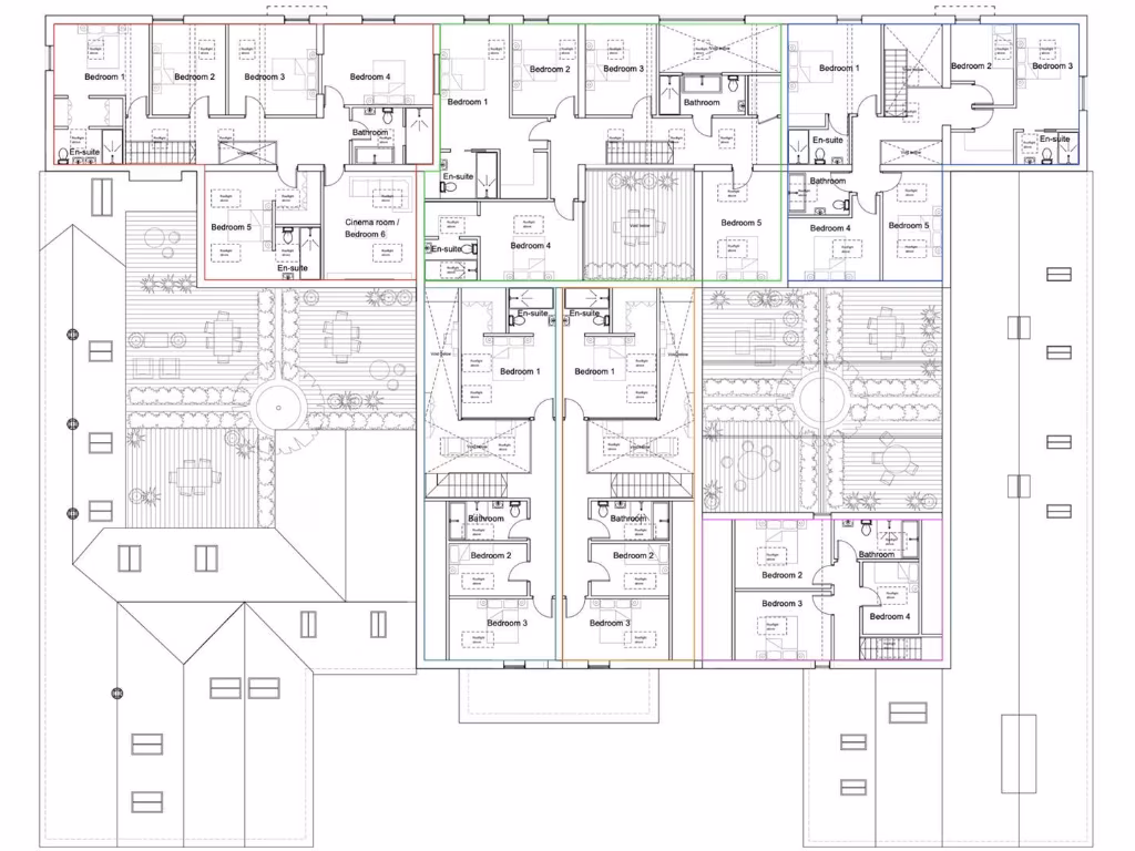
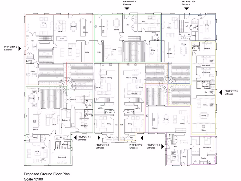
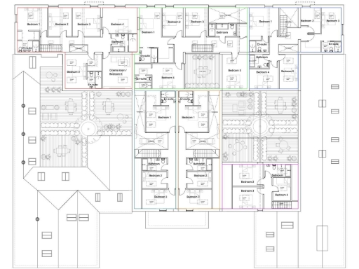
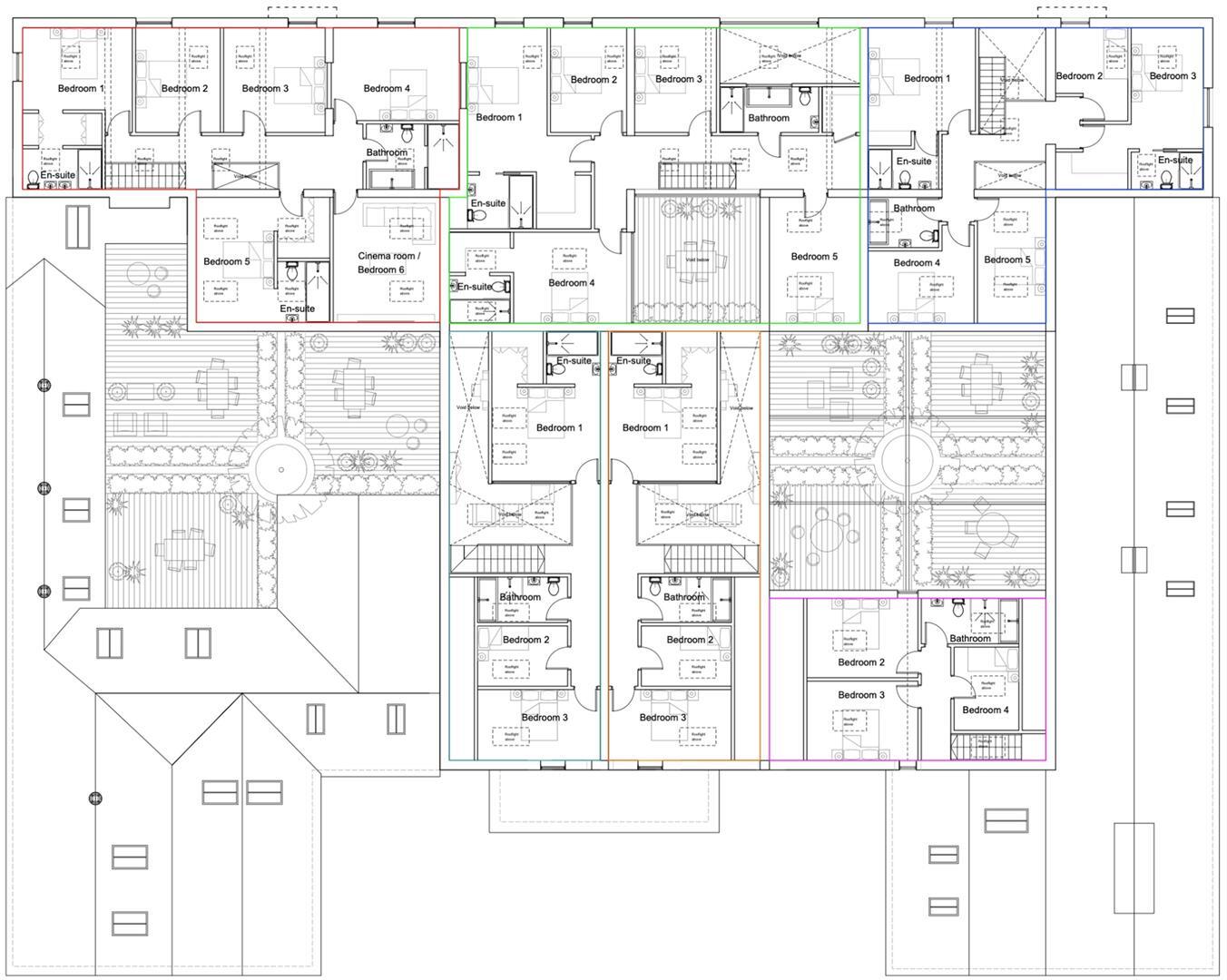
Planning consent for eight residences totalling 17,244 sq ft GIA
Approximately 1.9 acres included; further land available separately
Existing mains electricity; drainage currently to septic tank
New mains water connection required before occupation
Access via private lane with 50% maintenance liability
Farmhouse and bungalow are excluded from the sale
Retained barn features: double-height spaces, large openings
Historic buildings (built 1904); conversion work and finishes needed
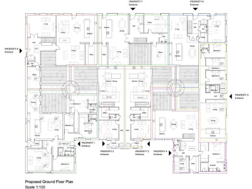
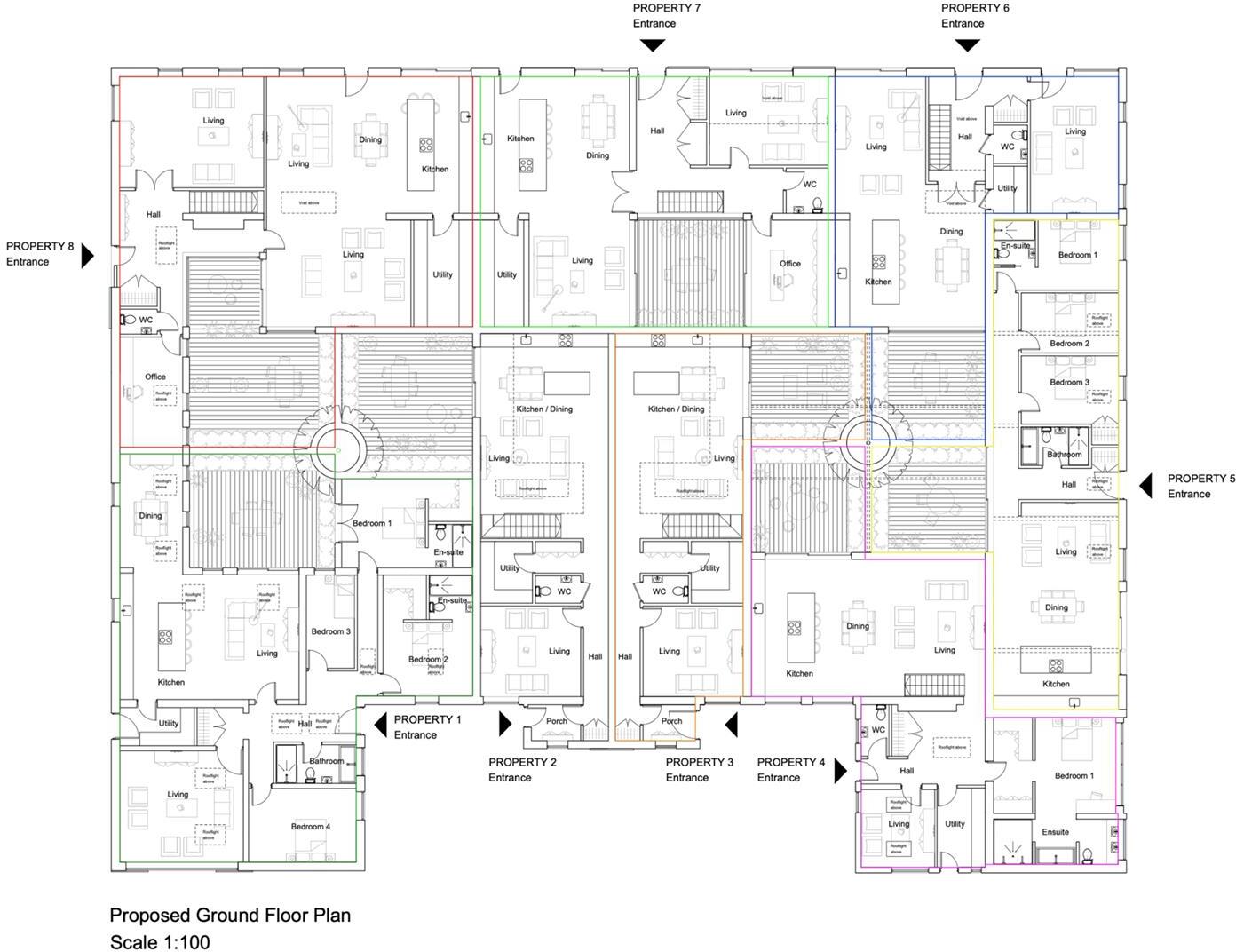
A rare development parcel in Brockhall Village with planning consent to create eight large executive homes, totalling about 1,602 m² (17,244 sq ft) GIA. The scheme retains and celebrates existing barn features — double-height spaces, large openings and exposed structure — offering high-spec conversion potential desirable to the premium market. The site includes garages, courtyard parking and garden areas allocated to each unit, set within roughly 1.9 acres (further land available by separate negotiation).
Practical services are partly in place: mains electricity is connected and the site currently drains to a septic tank; a new mains water connection will be required. Access is via an existing private lane from Old Langho Road, with a 50% shared maintenance liability. Precise sale boundaries are to be agreed; the farmhouse and bungalow on the holding are specifically excluded from the sale.
Planning consent (Ribble Valley Borough Council, application 3/2021/0311 dated 27 Aug 2021) authorises conversion/demolition works to deliver eight residential units with garages and amenity space. The buildings date from 1904 and sit in comfortable, prosperous countryside close to transport routes, Blackburn Rovers training ground, and Clitheroe. This is a strong opportunity for developers or investor-occupiers targeting high-end rural conversions, but the project requires completion of services, some site works and agreement on boundaries and access liabilities.
Barn for sale in Duckworth Hill Lane, Oswaldtwistle, BB5 — £320,000 • 1 bed • 1 bath
Land for sale in Residential development for sale – Bridge House Farm Development, Laneshawbridge, BB8 7HX, BB8 — £450,000 • 1 bed • 1 bath • 1929 ft²
Plot for sale in Brookhouse Road, Brookhouse, Lancaster, Lancashire, LA2 — £1,500,000 • 1 bed • 1 bath • 4090 ft²
Barn for sale in Cockshotts Barn, BB7 — £430,000 • 1 bed • 1 bath • 15328 ft²
Plot for sale in Brookhouse Road, Brookhouse, Lancaster, Lancashire, LA2 — £350,000 • 1 bed • 1 bath • 4090 ft²
7 bedroom detached house for sale in Stockclough Lane, Feniscowles, Blackburn, Lancashire, BB2 — £2,200,000 • 7 bed • 3 bath • 7500 ft²






























































