Compact, energy‑efficient family home with warranty and parking.
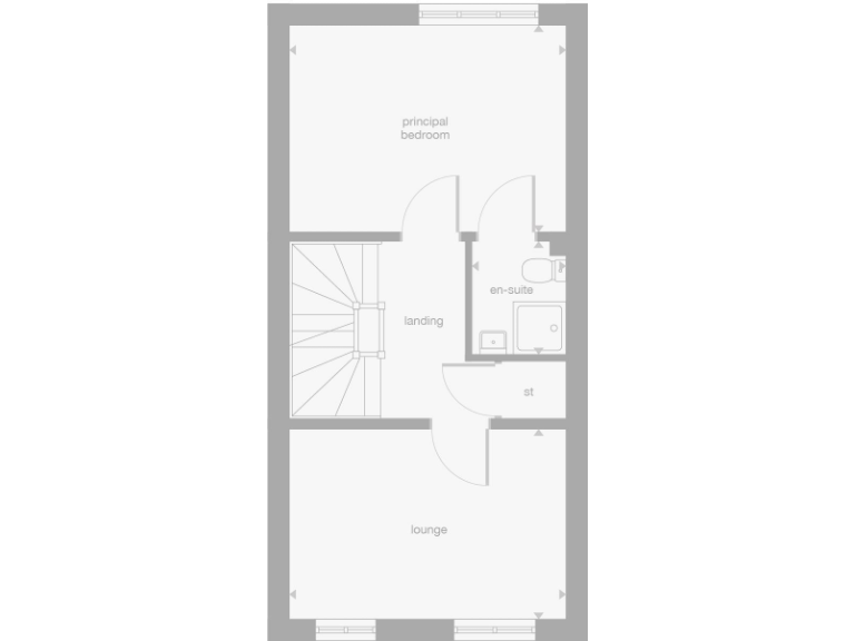
- Three bedrooms with principal en‑suite
- Walk-through kitchen to family/dining room with French doors
- 10‑year NHBC warranty and energy‑efficient new build
- Off‑street parking included; small private garden
- Compact overall size (~704 sq ft); limited living space
- Local area classified as very deprived; resale factors to consider
- Annual service charge £107.38; reservation fee £500
- Council tax band TBC; incentives available on selected plots
A compact, new-build three-bedroom mews home offering efficient modern living for young families. The ground floor’s walk-through kitchen leads to a family/dining room with French doors to a modest garden, creating a practical day-to-day layout for family meals and outdoor play. The principal bedroom benefits from an en-suite, and two further bedrooms occupy the upper floors, giving flexible sleeping or home‑study options.
Built by a five-star national builder and covered by a 10‑year NHBC warranty, the house promises low‑maintenance, energy‑efficient systems and contemporary finishes. Off‑street parking is included and connectivity is strong with fast broadband and excellent mobile signal—useful for remote working and streaming. Annual service charge is low and the home is offered freehold, with a reservation fee of £500.
Buyers should note the property is compact at about 704 sq ft with a small garden and overall room sizes suited to a young family rather than larger households. The local area is classified as having higher deprivation, which may affect local services and long‑term resale comparators. Council tax banding is yet to be confirmed and some marketing incentives (assisted move, deposit contributions) apply only to selected plots and are subject to terms.
This is a sensible option for purchasers prioritising a modern, low‑maintenance family home with good connectivity and an NHBC-backed warranty. It suits buyers wanting a practical, energy‑efficient starter or downsizer property close to public transport, who accept a modest floor area and compact outdoor space.
3 bedroom town house for sale in 1 Bradshaw Lane,
Edinburgh,
EH12 0BB , EH12 — £400,000 • 3 bed • 1 bath • 704 ft²
3 bedroom semi-detached house for sale in Off Lasswade Road,
Edinburgh,
EH178SD, EH17 — £354,000 • 3 bed • 1 bath • 631 ft²
4 bedroom detached house for sale in Off Lasswade Road,
Edinburgh,
EH178SD, EH17 — £470,000 • 4 bed • 1 bath • 1091 ft²
4 bedroom detached house for sale in Off Lasswade Road,
Edinburgh,
EH178SD, EH17 — £409,000 • 4 bed • 1 bath • 894 ft²
4 bedroom detached house for sale in Off Turnhouse Road,
Edinburgh,
EH12 0AD, EH12 — £600,000 • 4 bed • 1 bath • 1010 ft²
3 bedroom mews property for sale in Off Whitecraig Road,
Whitecraig,
East Lothian
EH21 8PG, EH21 — £254,000 • 3 bed • 1 bath • 445 ft²


















































































