Modern, energy-efficient three-bedroom home with solar panels and EV charging, ready Winter 2025..
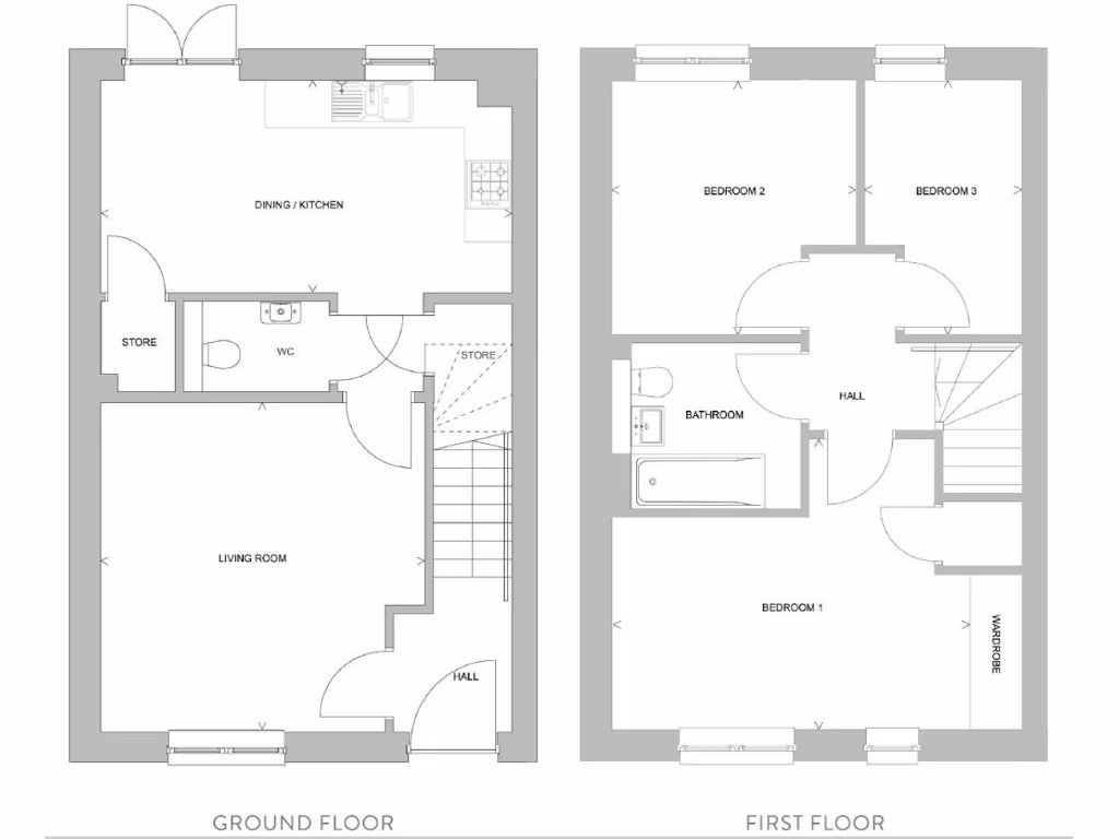
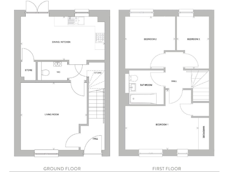
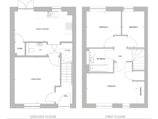
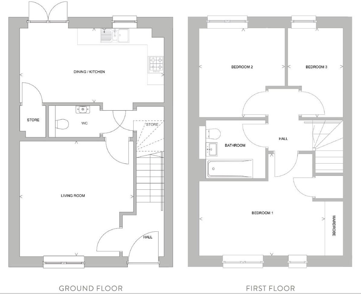
Three bedrooms in a two-storey end-terrace, about 920 sq ft
Energy-efficient new build with solar panels and EV charging access
Integrated kitchen appliances; laminate worktop and stainless steel hob
Fitted wardrobes to principal bedroom; modern sanitaryware and tiles
One bathroom only — may not suit larger families or sharers
Average-sized rooms; modest internal space for a three-bed home
Completion Winter 2025 — purchase subject to build timetable
Area recorded as very deprived; neighbourhood still undergoing transformation
Ready Winter 2025, this three-bedroom end-terrace at West Craigs Green offers a modern, energy-efficient home aimed at first-time buyers and young families. The specification includes solar panels, EV charging access, integrated fridge-freezer, gas hob and electric oven, fitted wardrobes in the principal bedroom and tidy contemporary sanitaryware and tiles. Layouts are practical across two storeys, with an average-sized footprint and around 920 sq ft of living space.
Practical positives include low-maintenance exterior finishes, double glazing, a single-zone heating system and PIR sensor lighting to the front door. The development promises new green spaces and planned local amenities (parks, primary school, café, health centre) and benefits from good transport links to the city and nearby Gyle shopping. There is flooring included in the current reservation incentive and a developer deposit-contribution offer for qualifying buyers.
Be clear about limitations: this house has one bathroom only, an average overall size, and sits within an area recorded as very deprived — local services and neighbourhood transformation are ongoing. Completion is scheduled for Winter 2025, so buyers should allow for the build timeline and confirm final specification details and warranties. Parking and exact communal EV charging arrangements should be checked during viewing.
Overall this is a contemporary, energy-conscious new build offering sensible family accommodation and lower running costs, suited to buyers prioritising modern fixtures and sustainability while accepting modest space and an evolving neighbourhood.
3 bedroom terraced house for sale in Meadowfield Road North, Edinburgh,
EH12 0DQ
, EH12 — £360,000 • 3 bed • 1 bath • 881 ft²
4 bedroom town house for sale in Meadowfield Road North, Edinburgh,
EH12 0DQ
, EH12 — £435,000 • 4 bed • 2 bath • 1248 ft²
4 bedroom town house for sale in Meadowfield Road North, Edinburgh,
EH12 0DQ
, EH12 — £440,000 • 4 bed • 2 bath • 1301 ft²
4 bedroom town house for sale in Meadowfield Road North, Edinburgh,
EH12 0DQ
, EH12 — £425,000 • 4 bed • 2 bath • 1248 ft²
2 bedroom apartment for sale in Meadowfield Road North, Edinburgh,
EH12 0DQ
, EH12 — £275,000 • 2 bed • 2 bath • 756 ft²
2 bedroom apartment for sale in Meadowfield Road North, Edinburgh,
EH12 0DQ
, EH12 — £319,000 • 2 bed • 2 bath • 914 ft²


































