Bright, energy-efficient starter home with sustainable features and good transport links.
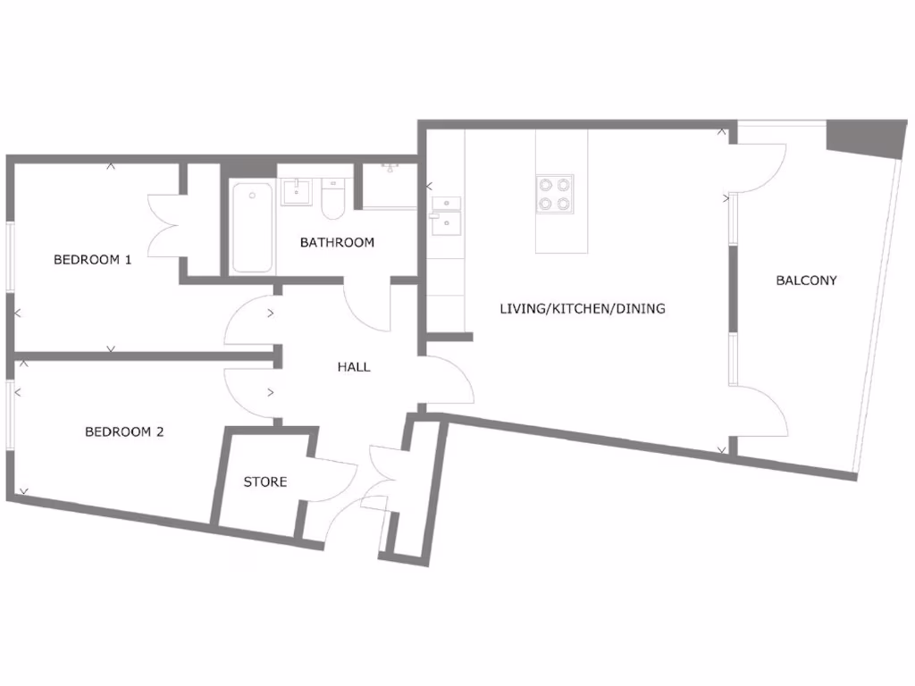
Freehold two-bedroom, two-bathroom apartment, c.756 sq ft
This two-bedroom, two-bathroom freehold apartment (approx. 756 sq ft) is a contemporary new-build in the West Craigs Green development, five miles from Edinburgh city centre. The open-plan living spaces, integrated kitchen appliances, designer sanitaryware and balcony-facing windows offer a bright, low-maintenance home ideal for first-time buyers or professionals.
Sustainable features include solar panels, communal EV charging and good insulation, which support lower running costs. The development benefits from fast broadband, excellent mobile signal and nearby transport links to the Gyle shopping centre, making commuting and everyday life straightforward.
Buyers should note the site is part of a larger regeneration area and is currently classified as very deprived; local services and amenities are still being developed. A limited-time cashback incentive is available on selected plots for reservations made before the specified deadline — terms apply and not all units qualify.
Overall, this apartment suits buyers seeking a modern, energy-efficient starter home with future neighbourhood improvements planned. It requires no immediate renovation and offers straightforward move-in readiness, subject to plot availability and the developer’s incentive conditions.
2 bedroom apartment for sale in Meadowfield Road North, Edinburgh,
EH12 0DQ
, EH12 — £280,000 • 2 bed • 2 bath • 756 ft²
2 bedroom apartment for sale in Meadowfield Road North, Edinburgh,
EH12 0DQ
, EH12 — £319,000 • 2 bed • 2 bath • 914 ft²
2 bedroom apartment for sale in Meadowfield Road North, Edinburgh,
EH12 0DQ
, EH12 — £322,500 • 2 bed • 2 bath • 914 ft²
1 bedroom apartment for sale in Meadowfield Road North, Edinburgh,
EH12 0DQ
, EH12 — £222,000 • 1 bed • 1 bath • 568 ft²
1 bedroom apartment for sale in Meadowfield Road North, Edinburgh,
EH12 0DQ
, EH12 — £224,500 • 1 bed • 1 bath • 568 ft²
2 bedroom apartment for sale in Meadowfield Road North, Edinburgh,
EH12 0DQ
, EH12 — £277,000 • 2 bed • 2 bath • 756 ft²






























