Contemporary family living with solar panels and private rear garden.
New-build four-bedroom townhouse, energy-efficient design
This new-build four-bedroom townhouse sits within the West Craigs Green development, five miles from Edinburgh city centre. The house is energy-efficient and fitted with solar panels, communal EV charging, sensible storage and designer finishes — ideal for a growing family seeking low-running costs and modern conveniences.
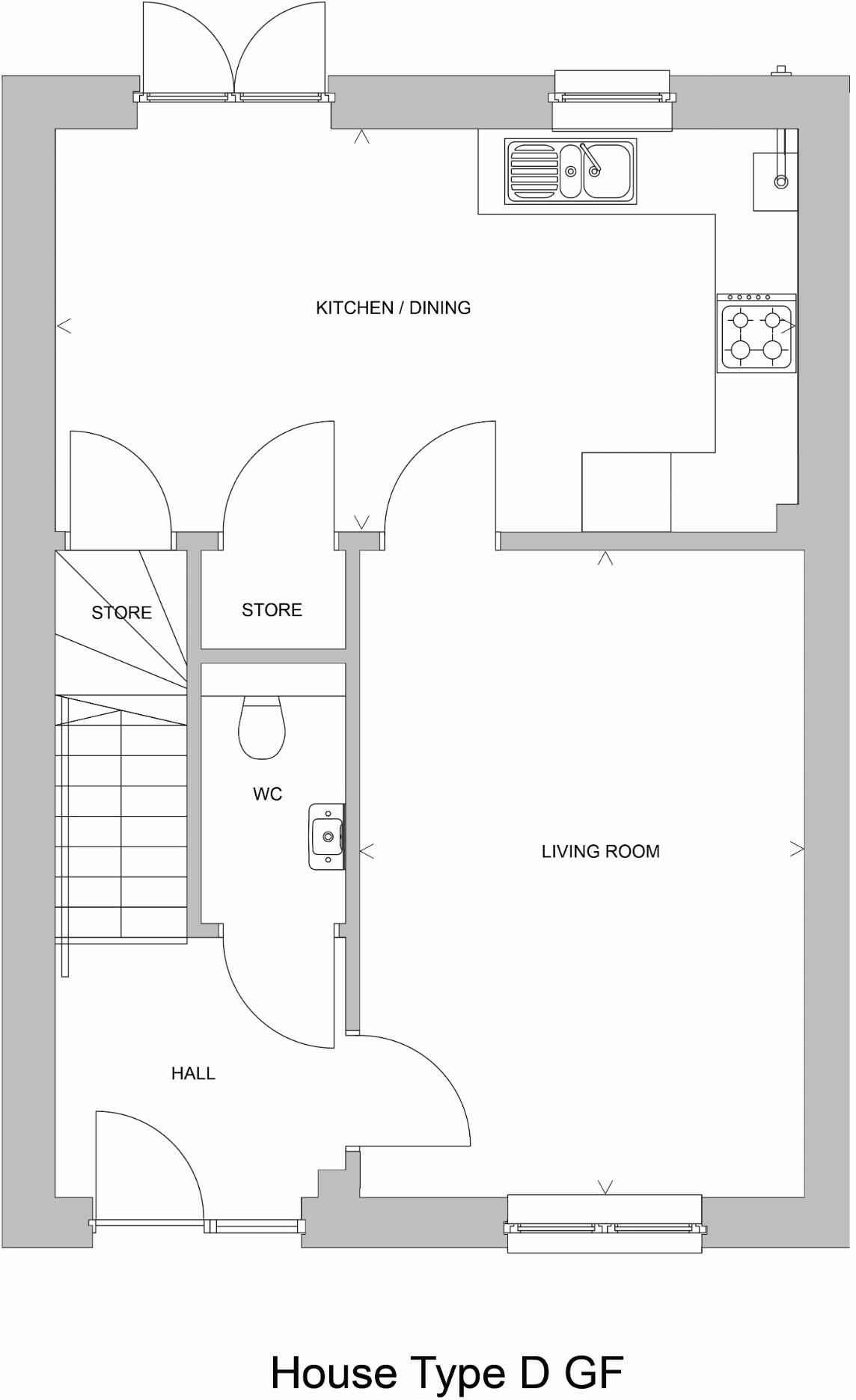
The ground floor open-plan kitchen/breakfast area includes two large storage cupboards and French doors to a private rear garden, creating practical indoor–outdoor flow. The principal bedroom benefits from fitted wardrobes; stylish white sanitaryware and designer tiles feature across the bathrooms. A single-zone heating system and PIR sensor to the front door add simple security and comfort.
Practical advantages include a 1,301 sq ft layout across three storeys, fast broadband and excellent mobile signal. The local area is being actively redeveloped with new parks and planned community facilities, and the location offers good public transport links and nearby retail at The Gyle.
Notable drawbacks are factual: the wider area is recorded as very deprived, which may affect local services and perception; the cashback incentive requires reservation and completion by specified dates. As a three-storey townhouse, stairs are inevitable; buyers seeking a ground-floor-only layout should note the vertical arrangement.
4 bedroom town house for sale in Meadowfield Road North, Edinburgh,
EH12 0DQ
, EH12 — £435,000 • 4 bed • 2 bath • 1248 ft²
4 bedroom town house for sale in Meadowfield Road North, Edinburgh,
EH12 0DQ
, EH12 — £435,000 • 4 bed • 2 bath • 1248 ft²
4 bedroom town house for sale in Meadowfield Road North, Edinburgh,
EH12 0DQ
, EH12 — £425,000 • 4 bed • 2 bath • 1248 ft²
4 bedroom town house for sale in Meadowfield Road North, Edinburgh,
EH12 0DQ
, EH12 — £450,000 • 4 bed • 2 bath • 1301 ft²
4 bedroom town house for sale in Meadowfield Road North, Edinburgh,
EH12 0DQ
, EH12 — £450,000 • 4 bed • 2 bath • 1301 ft²
4 bedroom town house for sale in Plot 114 The Thistle, Terrance Street, West Craigs Green, EH12 0AQ, EH12 — £450,000 • 4 bed • 1 bath • 822 ft²














































