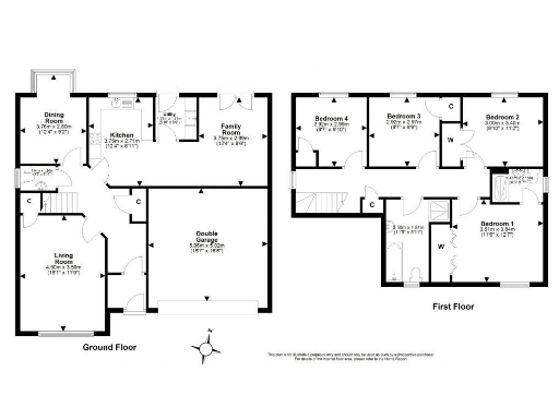
Stylish four-bedroom detached villa with double garage and landscaped gardens.
Four double bedrooms with integrated storage and en-suite to principal bedroom
Open-plan kitchen/dining/family area with French doors to rear garden
Integral double garage plus mono-bloc driveway for two cars
Landscaped, enclosed rear garden with patio and garden shed
Fast broadband; average mobile signal and good transport links
Service charges present: service charge £348 (below average) and Green Belt £29 pcm
Council tax noted as expensive; area classified as deprived
Overall size describes as small (approx. 1,104 sq ft) and may feel compact
This four-bedroom detached villa offers a well-presented, family-focused layout across two storeys. The heart of the home is a stylish open-plan kitchen, dining and family area with French doors onto a landscaped rear garden, together with a separate lounge and a box-windowed dining room that enjoys garden views.
Upstairs provides four double bedrooms with built-in storage; the principal bedroom includes an integrated wardrobe and en-suite shower. Practical extras include an integral double garage, a mono-bloc driveway, a utility room and a downstairs WC. Interiors are finished in modern-neutral tones with wood-effect flooring in key areas.
Outside, landscaped front and rear gardens, a patio and a garden shed make the plot low-maintenance and suitable for family life and entertaining. Broadband speeds are fast and transport links to Edinburgh are convenient, supporting commuting and local amenities.
Important considerations: the property sits in an area flagged as deprived and carries an expensive council tax band. There is a monthly factoring/green-belt charge (service costs noted), and the listing describes the overall size as small (approx. 1,104 sq ft), which may feel modest for some buyers despite the four-bedroom layout.
4 bedroom detached house for sale in 7 Smith Wynd, Tranent, EH33 2FG, EH33 — £345,000 • 4 bed • 2 bath • 1342 ft²
4 bedroom detached house for sale in 9 Strawberry Punnet, Ormiston, East Lothian, EH35 5AH, EH35 — £315,000 • 4 bed • 2 bath • 1076 ft²
4 bedroom detached house for sale in 34 Desmoulins Drive, Dalkeith, EH22 1GL, EH22 — £360,000 • 4 bed • 2 bath • 1386 ft²
4 bedroom detached house for sale in 4 Ellis Street, Mortonhall, Edinburgh, EH17 8GD, EH17 — £450,000 • 4 bed • 2 bath • 1257 ft²
4 bedroom detached house for sale in 5 Bauld Drive, Newcraighall, EH21 8RQ, EH21 — £440,000 • 4 bed • 2 bath • 1215 ft²
4 bedroom detached house for sale in 4 Scanlan Street, Newcraighall, EH21 8ST, EH21 — £420,000 • 4 bed • 2 bath • 1112 ft²


































































































































