Recently renovated three-bedroom flat within easy walk of town and beach.
Lifetime Lease option available for purchasers aged 60+ (illustrative price shown)
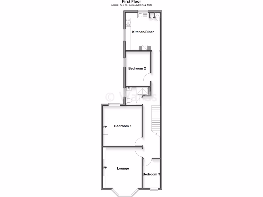
A well-presented three-bedroom first-floor apartment close to Herne Bay seafront and town centre, recently renovated throughout with a contemporary kitchen and modern shower room. The accommodation includes a separate lounge, kitchen/diner and a versatile third bedroom suitable as a home office or guest room. At about 593 sq ft the flat is compact but efficiently arranged.
This property is being offered with a Lifetime Lease option through the Home For Life scheme for purchasers aged 60+. The full market price is £240,000; a typical Lifetime Lease guide price for this apartment is shown at £159,000 (an indicative 33% saving). Customers can buy up to a 50% share to safeguard value; the actual price varies by age and circumstances. If you are under 60 you may still buy at the full market price.
Practical details suit retirement living: leasehold with 148 years remaining, very low local crime, fast broadband and excellent mobile signal, and a cheap council tax band. The building is Victorian with high ceilings and period character, and the apartment benefits from recent cosmetic renovation.
Important practical points to note: heating is by electric storage heaters and glazing is secondary only; the building’s solid brick walls are assumed uninsulated which may affect running costs and comfort. There is a single shower room serving three bedrooms. Buyers should verify all tenure and scheme specifics, and confirm the Lifetime Lease quote for their circumstances.
2 bedroom apartment for sale in Beach Street, Herne Bay, Kent, CT6 — £53,250 • 2 bed • 1 bath • 420 ft²
1 bedroom flat for sale in Pier Avenue, Herne Bay, Kent, CT6 — £77,500 • 1 bed • 1 bath • 474 ft²
2 bedroom apartment for sale in Clarence Road, Herne Bay, Kent, CT6 — £155,500 • 2 bed • 1 bath • 689 ft²
2 bedroom apartment for sale in Park Road, Herne Bay, Kent, CT6 — £129,000 • 2 bed • 2 bath • 516 ft²
2 bedroom flat for sale in Braid Drive, Herne Bay, Kent, CT6 — £165,000 • 2 bed • 1 bath • 572 ft²
1 bedroom ground floor flat for sale in High Street, Herne Bay, Kent, CT6 — £93,000 • 1 bed • 1 bath • 625 ft²


































