Large central flat ideal for a comfortable London pied-à-terre or first home.
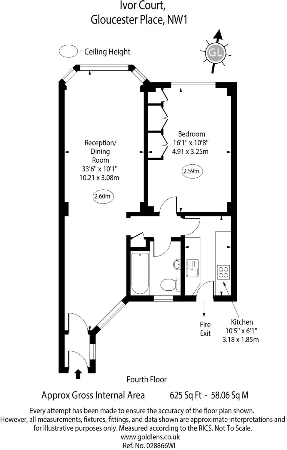
- Approximately 625 sq ft one-bedroom apartment, generous reception room
- Share of freehold within a portered period building
- Excellent location: moments from Regent’s Park and Marylebone amenities
- Community heating scheme, not an individual gas boiler
- EPC rating C; solid brick walls likely without insulation
- Area records very high crime levels; consider security and insurance costs
- Built circa 1930s with period facade and mansard roof
- Well served by public transport, shops, cafes and schools nearby
A well-proportioned one-bedroom flat in desirable Ivor Court, moments from Regent’s Park and Marylebone’s shops and transport links. The generous reception room and separate fitted kitchen give a sense of space rare for central London pied-à-terres. At approximately 625 sq ft, the layout suits a single buyer or couple seeking a comfortable city base.
Set in a portered, period red-brick block with share of freehold, residents benefit from 24-hour concierge and a strong central location. The building’s community heating supplies warmth, and the apartment currently holds an EPC rating of C; there is scope to improve energy efficiency and personalise finishes where required.
Buyers should note practical considerations: the area records very high crime levels, the building’s solid brick fabric likely lacks insulation, and heating is via a community scheme rather than individual boilers. These factors can affect running costs and retrofitting options. Council Tax band D applies.
For first-time buyers wanting a spacious central London home or a lock-up-and-leave pied-à-terre, this flat offers a rare combination of period character, porter security and immediate access to green space. With careful upgrades, it can deliver both lifestyle and long-term value in a highly affluent neighbourhood.
1 bedroom flat for sale in Ivor Court, Regent's Park, London, NW1 — £459,950 • 1 bed • 1 bath • 613 ft²
1 bedroom flat for sale in Gloucester Place, Marylebone, NW1 — £515,000 • 1 bed • 1 bath • 606 ft²
2 bedroom flat for sale in Gloucester Place, Marylebone, London, NW1 — £600,000 • 2 bed • 1 bath • 624 ft²
1 bedroom flat for sale in Ivor Court,
Gloucester Place, NW1 — £498,000 • 1 bed • 1 bath • 625 ft²
1 bedroom flat for sale in Gloucester Place, London, Westminster, NW1 — £599,950 • 1 bed • 1 bath • 638 ft²
1 bedroom flat for sale in Gloucester Place, Marylebone, London, NW1 — £625,000 • 1 bed • 1 bath • 517 ft²










































