Bright one-bedroom with porter and lift, minutes from Regent's Park.
- Secure entry, porter service and lift to fifth floor
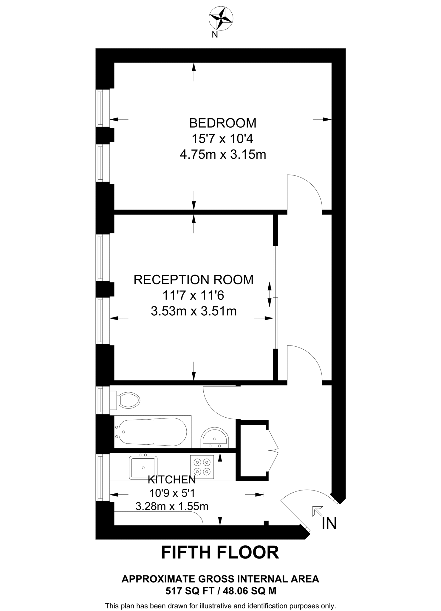
- Bright reception with wood floors and dining space
- Separate kitchen with ample storage
- Generous double bedroom and well-presented bathroom
- Share of freehold, 101 years remaining, ground rent £35
- Community mains gas heating; building likely lacks wall insulation
- Approximately 517 sq ft; suitable as a central London base
- Local crime levels very high; consider security and insurance
Set on the fifth floor of an attractive Art Deco building, this well-presented one-bedroom apartment offers bright living space and a practical layout for first-time buyers. The reception room benefits from large windows and wood floors, with a separate kitchen providing good storage and dining potential.
The building provides secure entry, porter service and lift access; utilities are on a community gas-heating scheme. The apartment comes with a 101-year lease, a share of freehold and a low ground rent of £35, simplifying ownership costs.
Practical considerations: the building dates from the 1930s–40s and has solid-brick construction with assumed limited wall insulation, so there may be scope to improve thermal performance and running costs. The immediate area is extremely well connected, close to Regent’s Park, Baker Street and Marylebone High Street for shops and transport, but local crime statistics are very high so factor personal security and insurance into plans.
Overall this is a move-in-ready central London home with period character and sensible running costs, suited to buyers seeking a compact, well-located base with low service liabilities and potential to upgrade energy efficiency over time.
1 bedroom flat for sale in Gloucester Place, Regent's Park, London, NW1 — £495,000 • 1 bed • 1 bath • 618 ft²
1 bedroom flat for sale in Park Road, Marylebone, NW1 — £600,000 • 1 bed • 2 bath • 592 ft²
1 bedroom flat for sale in Marylebone Road, Marylebone, London, NW1 — £650,000 • 1 bed • 2 bath • 639 ft²
1 bedroom flat for sale in Gloucester Place, Marylebone, NW1 — £515,000 • 1 bed • 1 bath • 606 ft²
1 bedroom flat for sale in Park West, Hyde Park Estate, London, W2 — £415,000 • 1 bed • 1 bath • 424 ft²
1 bedroom flat for sale in Devonshire Street, Marylebone, London, W1W — £675,000 • 1 bed • 1 bath • 469 ft²


































