**Standout Features:**
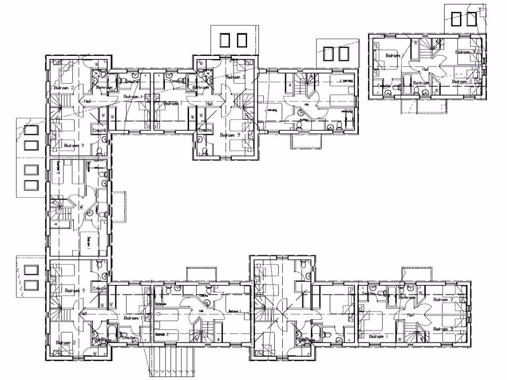
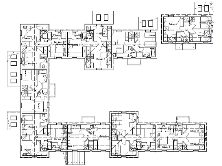
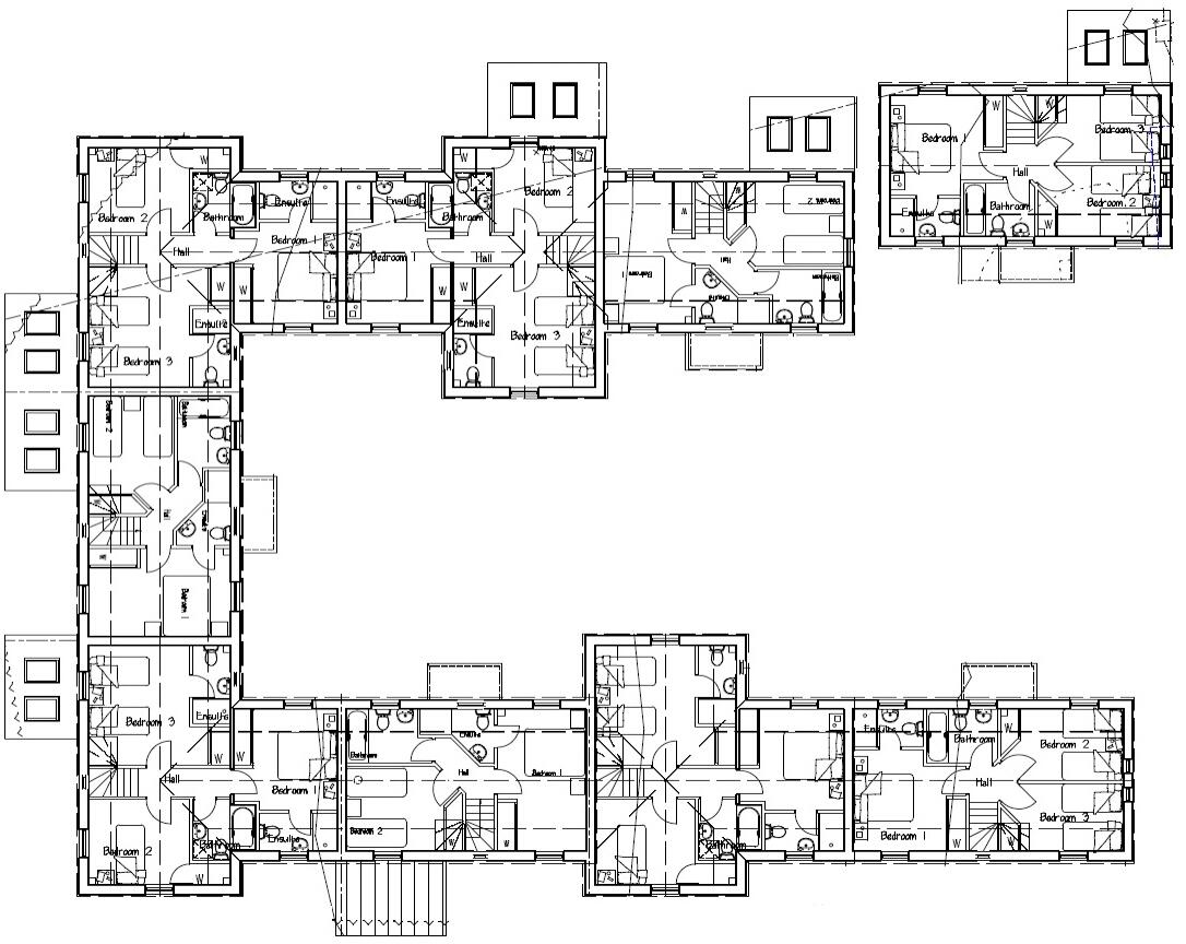
- 0.6-acre plot with planning permission for nine eco-friendly stone-built holiday cottages (Planning Number E1/2008/00871).
- Beautifully maintained communal gardens and allocated parking.
- Ideal location in a tranquil hamlet, nestled between Bodmin Moor and the North Cornish Coast.
- Permission for year-round occupancy, making it a lucrative investment opportunity as holiday homes.
- Close to the Camel Trail for outdoor activities like walking and cycling.
- Charming rural surroundings with easy access to vibrant towns such as Padstow and Wadebridge.
**Summary:**
Transform your vision for a tranquil retreat into reality with The Walled Garden in Helland, an enchanting opportunity to develop nine eco-friendly stone-built holiday cottages set amid picturesque gardens. Spanning 0.6 acres, this prime plot comes with established planning permission for year-round rental, catering to families, couples, and individuals alike, while embracing Cornish traditions with contemporary design.
Nestled in the serene Camel Valley, the property offers a rare chance to create a luxury escape in a hamlet rich in scenic beauty, just minutes away from the foodie haven of Padstow and a host of outdoor activities along the famous Camel Trail. With allocated parking and the promise of a serene community environment, this site invites you to envision a vibrant holiday destination. Don't miss out on this exceptional plot that combines the charm of old-world Cornwall with modern living; act now to secure your stake in this unique piece of paradise.
Plot for sale in Wadebridge, PL27 6AN, PL27 — £99,950 • 1 bed • 1 bath
Plot for sale in BUILDING PLOT - New Hill Estate, Grampound, TR2 — £100,000 • 3 bed • 1 bath
Plot for sale in Bossiney Road, Tintagel, PL34 — £195,000 • 1 bed • 1 bath • 443 ft²
Plot for sale in Building Plot, Mawgan Porth, TR8 — £850,000 • 1 bed • 1 bath • 1391 ft²
Plot for sale in Trevarrick, Gorran, St. Austell, PL26 — £450,000 • 1 bed • 1 bath • 3000 ft²
Plot for sale in Wagg Lane, Probus, TR2 — £550,000 • 4 bed • 2 bath • 1589 ft²






























































