**Standout Features:**
- Three building plots available with stunning, uninterrupted countryside views
- Approved planning permissions for two detached four-bedroom homes and one three-bedroom bungalow
- Serene, quiet location just a short walk from village amenities
- Generous sized gardens with sunny aspects, perfect for outdoor living
- Off-street parking and the convenience of a double garage on the property
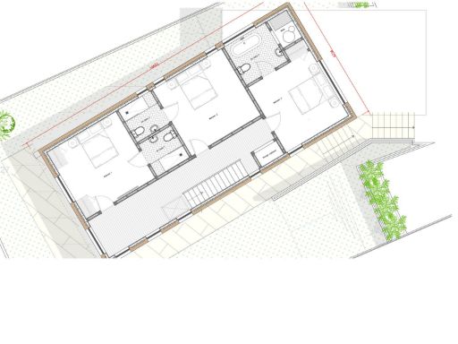
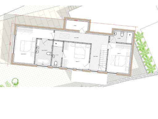
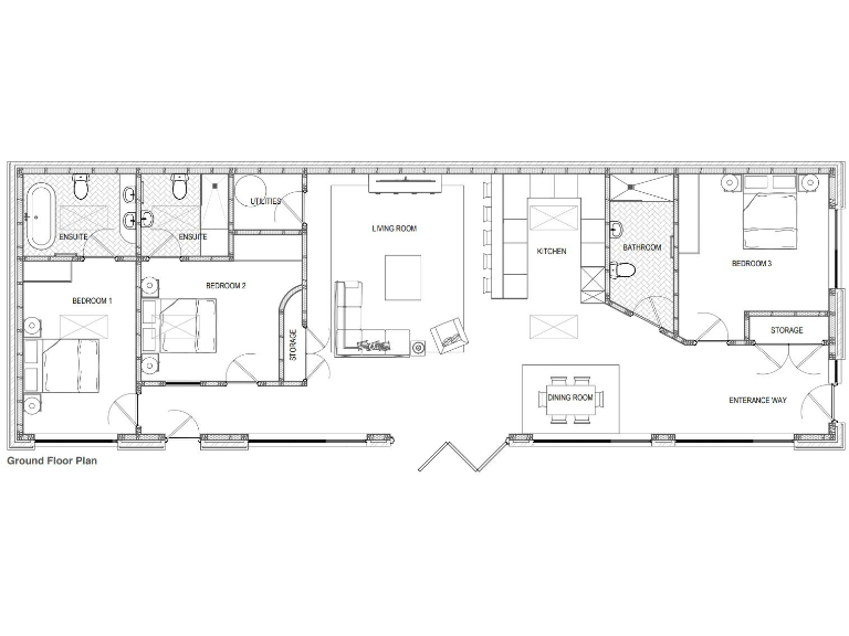
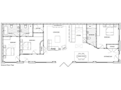
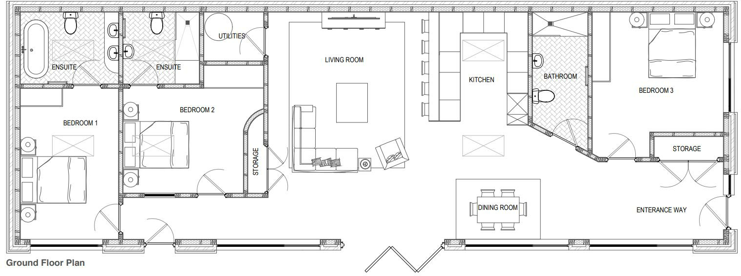
Nestled in a tranquil setting on Wagg Lane, Probus, these three approved building plots offer a rare opportunity for developers or families seeking to create their dream homes in a picturesque environment. Each plot comes with planning permission for architect-designed properties that maximize the stunning views while ensuring privacy. The plots include two contemporary, two-storey four-bedroom homes, each with en-suite facilities, and a single-storey, three-bedroom bungalow, making them ideal for a variety of buyers.
The location is perfect for those who value convenience without sacrificing peace and tranquillity, being within walking distance of local shops, schools, and community amenities. With a backdrop featuring lush, natural scenery and access to a range of outdoor activities, you can easily envision future family gatherings or peaceful evenings watching beautiful sunsets. This is an incredible chance to invest in a coveted area of Probus, where space and serenity come together. Given the rarity of such plots in this highly sought-after area, act fast to secure this exceptional opportunity before it’s off the market!
Plot for sale in Troon, TR14 — £200,000 • 1 bed • 1 bath
Plot for sale in BUILDING PLOT - New Hill Estate, Grampound, TR2 — £100,000 • 3 bed • 1 bath
Plot for sale in Greenbottom, Nr. Truro, TR4 — £250,000 • 1 bed • 1 bath • 3400 ft²
Plot for sale in Threemilestone, Truro, TR4 — £175,000 • 1 bed • 1 bath
Land for sale in Mawgan Cross, Helston, TR12 — £175,000 • 3 bed • 1 bath
Plot for sale in Trelill, Trewennack, TR13 — £195,000 • 3 bed • 4 bath






























































