**Standout Features:**
- Prime south-facing plot with stunning views of the Camel Valley and countryside.
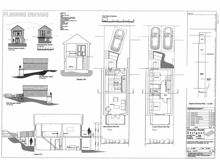
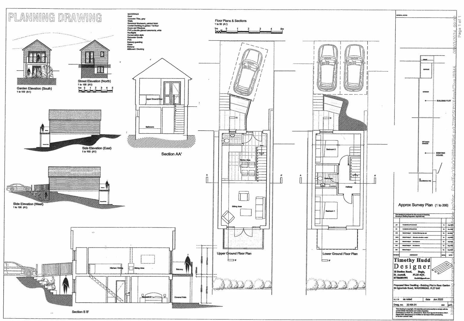
- Planning consent granted for a detached two-bedroom home (Application No. PA23/05124, approved Dec 7, 2023).
- Preliminary plans for a reversed accommodation layout to maximize views are available.
- Decent plot size in a low crime and family-friendly neighborhood.
- Close proximity to good-rated schools and various walkable amenities.
**Potential Concerns:**
- The garden is currently overgrown, indicating a need for landscaping and possible outdoor renovations.
- Subject to a Community Infrastructure Levy of approximately £9,712.
Embrace the opportunity to build your dream home on this idyllic plot in Wadebridge, complete with spectacular views across the Camel Valley. With planning consent already in place for a spacious two-bedroom home, you'll enjoy flexibility in designing your living space to take advantage of the serene surroundings. Whether you're looking for a peaceful retreat or an investment opportunity, this plot offers both. The location boasts excellent mobile and broadband connectivity, and the area is a stone's throw from reputable schools, parks, and community amenities.
However, be prepared for some initial work, as the garden requires attention and there are fees associated with the Community Infrastructure Levy. Don't miss this chance to create a bespoke home in a charming setting—grab the opportunity while you can!
Plot for sale in St Breock, Wadebridge, PL27 7LN, PL27 — £240,000 • 3 bed • 2 bath • 12916 ft²
Plot for sale in SINGLE BUILDING PLOT, Lostwithiel, Cornwall, PL22 — £99,950 • 1 bed • 1 bath • 1345 ft²
Plot for sale in Lakeside, Darrynane, Coombe Road, St Breward, PL30 4LZ, PL30 — £275,000 • 4 bed • 3 bath
Plot for sale in The Walled Garden, Helland, PL30 — £425,000 • 1 bed • 1 bath
Plot for sale in Building Plot adjacent to Lowenva, PL27 — £1,200,000 • 5 bed • 4 bath • 1707 ft²
Plot for sale in Higher Trezaise, Roche, Cornwall, PL26 — £125,000 • 4 bed • 2 bath






























