### Standout Features:
- **Large Development Plot**: Approximately 3000 sq ft, with planning permission for three substantial, modern detached houses.
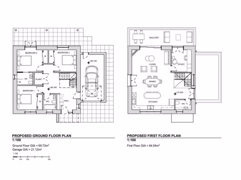
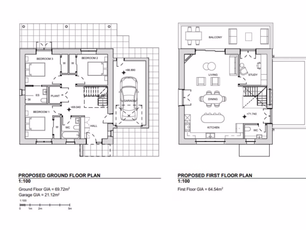
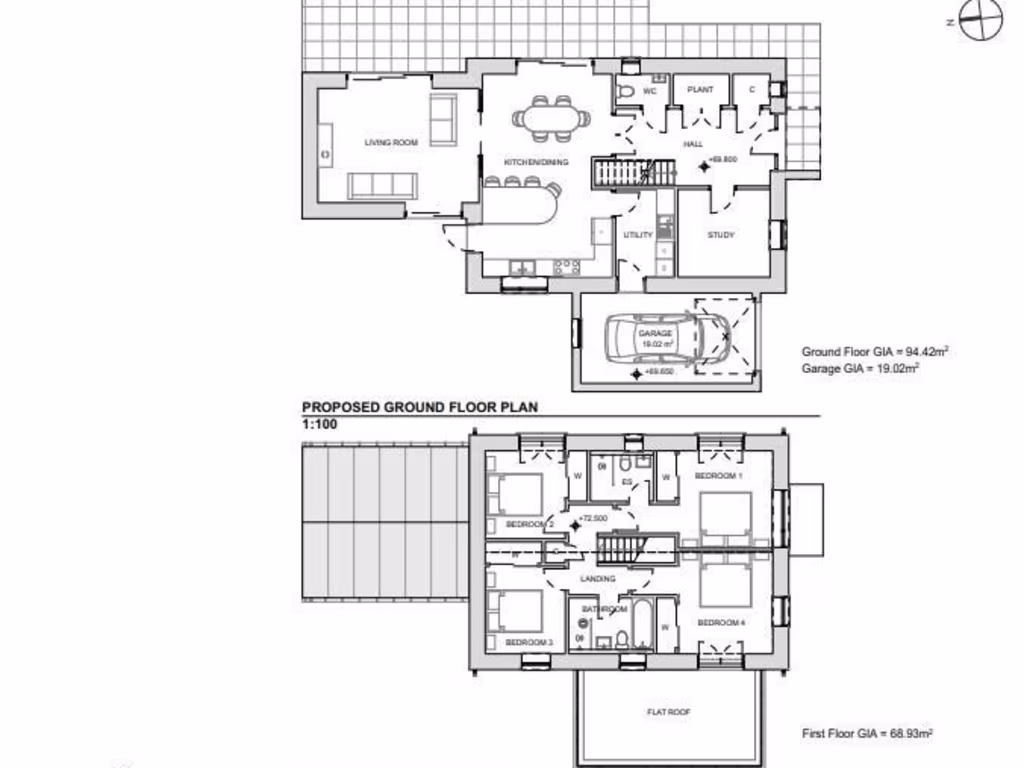
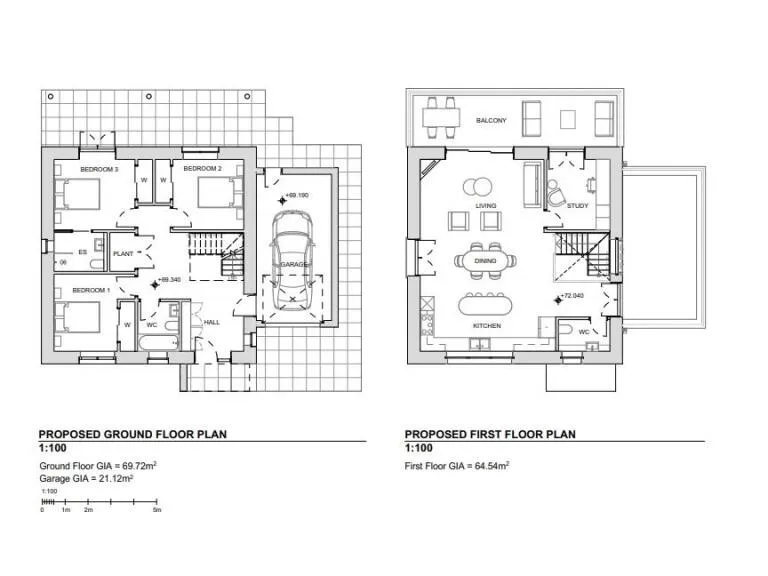
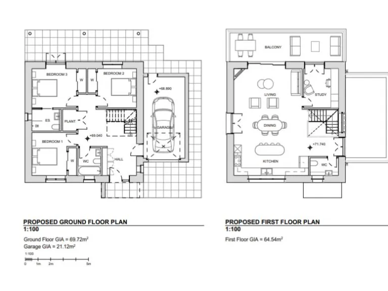
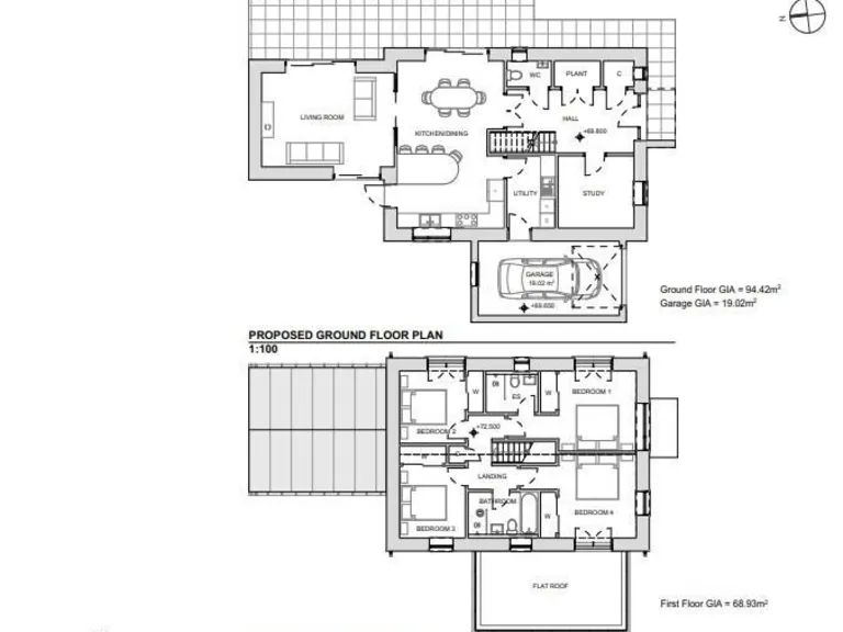
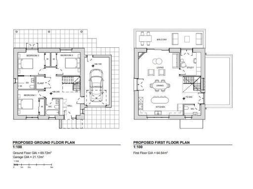
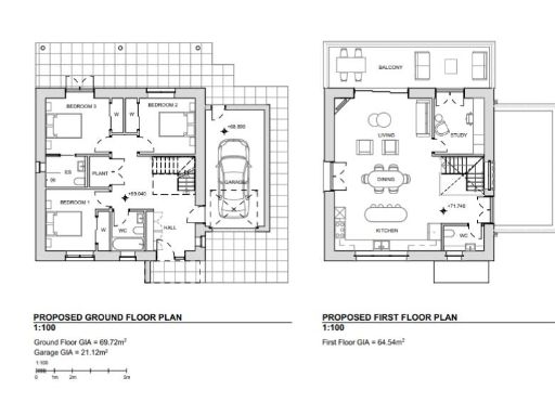
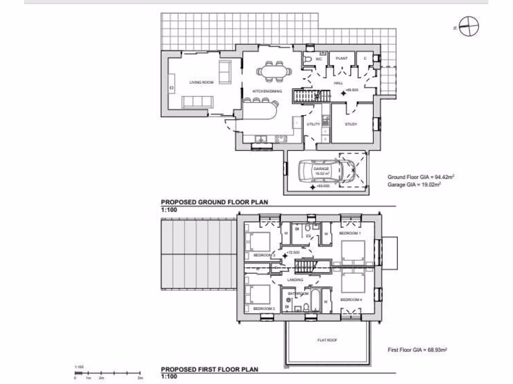
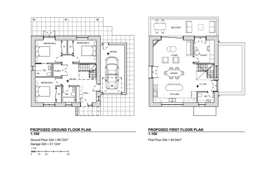
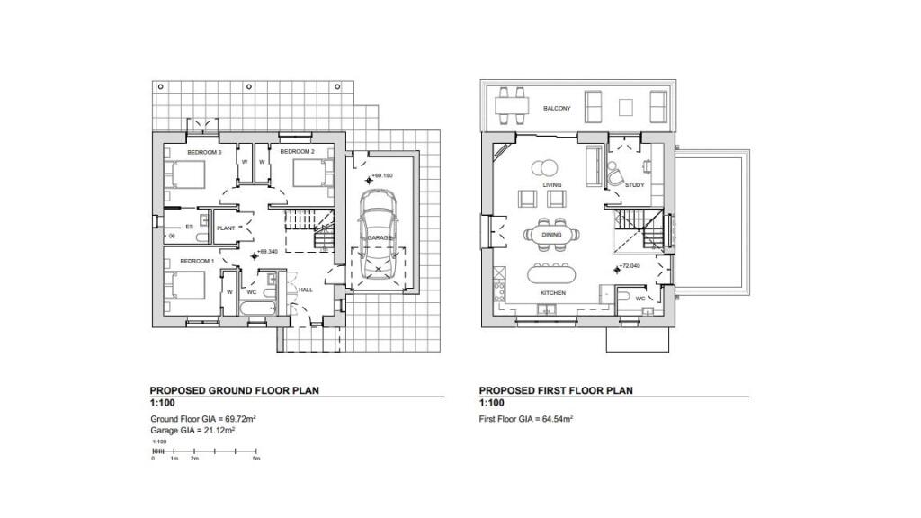
- **Planning Approved**: Cornwall Council granted permission for two three-bedroom homes and one four-bedroom home (PA24/02684).
- **Modern Design**: Houses to feature large living areas, en-suites, balconies, and solar PV panels for energy efficiency.
- **Quiet Rural Setting**: Located in the tranquil hamlet of Trevarrick, near Gorran Churchtown and the scenic south Cornish coast.
- **Very Low Crime Rate**: Ideal for families or investors looking for a safe area.
- **Access Amenities**: Close to local schools rated Good and Outstanding, and within driving distance of key attractions.
### Summary Description:
This exclusive residential development site in Trevarrick offers an exceptional opportunity to create three modern detached homes nestled in a serene, rural environment. With recent planning permission secured for two three-bedroom and one four-bedroom properties, potential buyers can capitalize on the growing demand for spacious, contemporary living spaces in Cornwall. Each home boasts expansive gardens, parking, and garages, providing an inviting family-friendly atmosphere.
The picturesque surroundings include rolling hills and proximity to the breathtaking coastline, making it ideal for those looking to embrace the charm of rural living while enjoying necessary amenities nearby. Despite its tranquil setting, Trevarrick remains accessible, only a short drive to Truro and St. Austell. While the larger barn on the site may require maintenance, it adds to the character and potential of this expansive plot. This rare opportunity won’t last long—ideal for investors or developers eager to craft a sought-after residence or community in this beautiful, peaceful hamlet. Don’t miss your chance to secure a slice of Cornwall’s natural beauty!
4 bedroom detached house for sale in St. Keyne, Liskeard, Cornwall, PL14 — £250,000 • 4 bed • 1 bath • 2762 ft²
Plot for sale in Gillan, Manaccan, Helston, Cornwall, TR12 — £460,000 • 1 bed • 1 bath
Plot for sale in Trevarth, Near Lanner, TR16 — £200,000 • 1 bed • 1 bath • 1123 ft²
Plot for sale in Gillan, Manaccan, Helston, Cornwall, TR12 — £200,000 • 1 bed • 1 bath • 2519 ft²
Plot for sale in Threemilestone, Cornwall, TR3 6BD, TR3 — £350,000 • 1 bed • 1 bath
Residential development for sale in Lamorrick Development , Lanivet, Bodmin, Cornwall, PL30 — £625,000 • 3 bed • 1 bath • 932 ft²


















































































