GU14 0JF - 1 bedroom ground floor maisonette for sale in Morval Close,…

View on Property Piper

1 bedroom ground floor maisonette for sale in Morval Close, Farnborough, GU14 0JF, GU14

Summary - 24 MORVAL CLOSE FARNBOROUGH GU14 0JF

1 bed 1 bath Ground Maisonette

**Standout Features:**
- Ground floor maisonette in a peaceful cul-de-sac
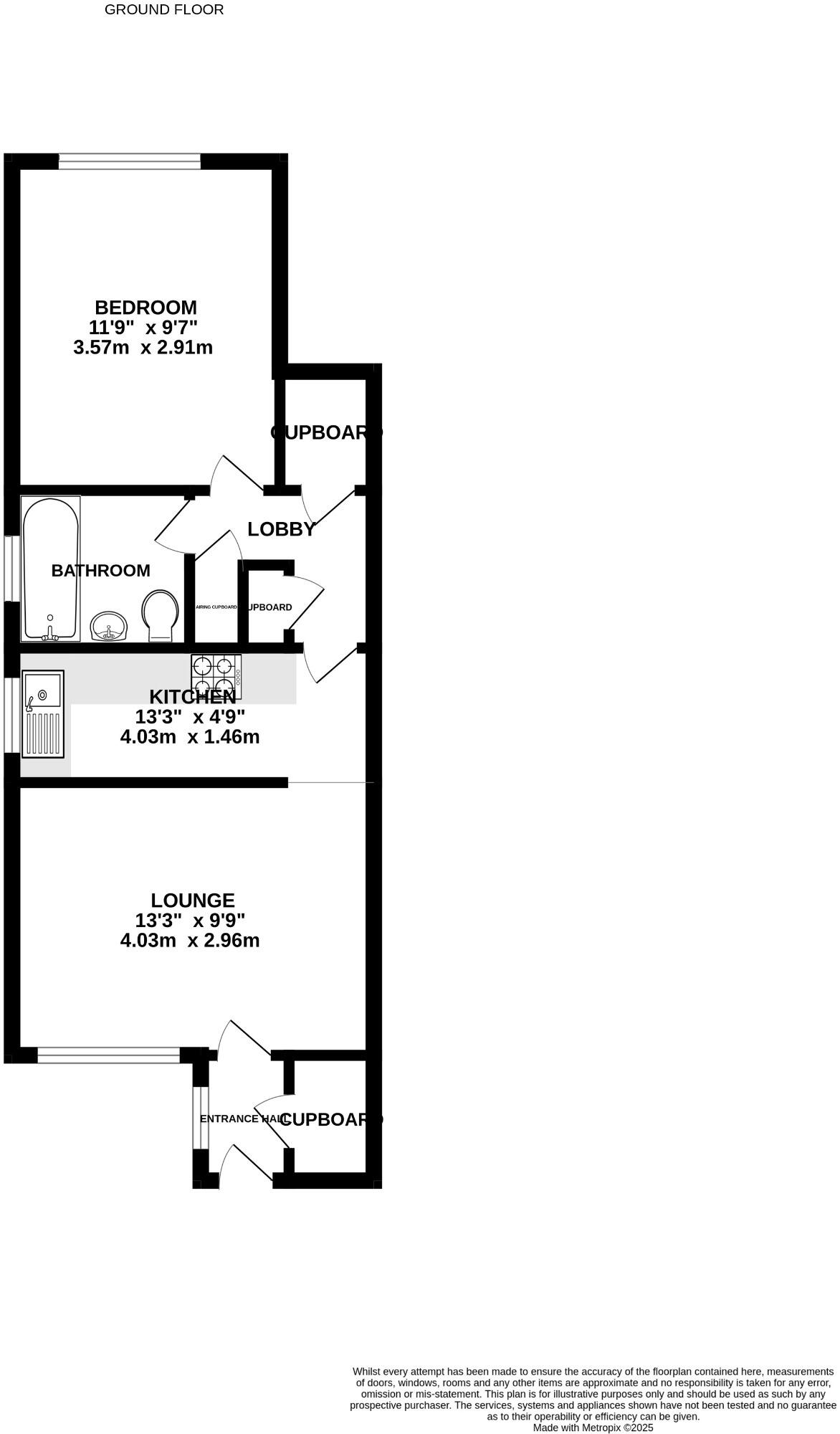
- One double bedroom and a separate lounge
- Enclosed front garden and off-street parking
- Low ground rent (£200) and no service charge
- New 990-year lease, making for a secure investment
- EPC rating E (51), with potential for energy improvements

**Potential Concerns:**
- Limited living space (303 sq ft)
- Heating system is electric room heaters
- Average-sized windows may limit natural light slightly

This charming ground floor maisonette offers an excellent opportunity for first-time buyers or couples looking for a cozy living space in Farnborough. Boasting its own private entrance, a small enclosed front garden, and the added convenience of off-street parking, this property embodies comfort and security. The interior features a bright and inviting lounge, a separate kitchen, and a double bedroom, all filled with natural light in a friendly neighborhood setting.

Staying close to amenities like shops, woodland walks, and excellent local schools, it perfectly balances tranquility with accessibility. Though the size is modest, it's an ideal starter home positioned within a well-connected area for commuters. With a competitive price of £187,500 and the significant potential for personal updates, this maisonette is a rare gem that will not be on the market for long. Don’t miss your chance to make it your own!

Property Details

Image Descriptions

Floorplan Description

Rooms

Textual Property Features

Detected Visual Features

EPC Details

Nearby Schools

Nearest Bars And Restaurants

,,,,}

Nearest General Shops

,,}

Nearest Grocery shops

,,}

Nearest Supermarkets

,,}

Nearest Religious buildings

,,}

Nearest Medical buildings

,,,}

Nearest Airports

}

Nearest Leisure Facilities

,,,,}

Nearest Tourist attractions

,,}

Nearest Train stations

,,,,}

Nearest Bus stations and stops

,,,,}

Nearest Hotels

,,}

Tags

Local Market Stats

AirBnB Data

Similar Properties

Meta

High Res Images

Compatible Images

Low res Images

Thumbnails

Raw Images

High Res Floorplan Images

Compatible Floorplan Images

Low res Floorplan Images

FloorplanImages Thumbnail

Raw Floorplan Images