Compact, bright maisonette ideal for a first-time buyer near the station.
0.4 mile to Farnborough mainline station
Chain free — ready for quicker completion
Leasehold tenure; check remaining term and charges
One double bedroom with built-in storage
Allocated off-street parking plus visitor spaces
Communal garden area needs maintenance
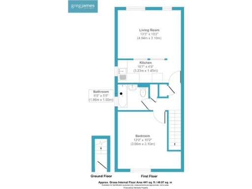
Average 441 sq ft — compact living space
Fast broadband and excellent mobile signal
This chain-free one-bedroom first-floor maisonette is a practical entry-level home in a quiet Farnborough cul-de-sac, just 0.4 miles from the mainline station. The apartment offers a bright living room, a fitted kitchen with appliance spaces, a double bedroom with built-in storage and a bathroom with an overhead shower. Allocated off-street parking and secure external storage add everyday convenience.
Well-kept communal lawns provide pleasant outside space, though the garden area shows signs of needing maintenance and communal upkeep should be expected. The property is an average-sized 441 sq ft and suited to a single buyer or couple seeking a low-maintenance start on the property ladder. Broadband speeds are fast and mobile signal is excellent — good for remote working and streaming.
Key practical points are straightforward: the home is leasehold and sold chain free, making for a potentially quicker purchase. The local neighbourhood is largely family-oriented terraces and flats in an affluent area, close to a mix of good and outstanding schools and local amenities. Overall this maisonette presents clear value for first-time buyers wanting central transport links and off-street parking without major renovation works required.
1 bedroom maisonette for sale in Morval Close, Farnborough , GU14 — £180,000 • 1 bed • 1 bath • 323 ft²
1 bedroom maisonette for sale in Park Road, Farnborough , GU14 — £200,000 • 1 bed • 1 bath • 505 ft²
1 bedroom maisonette for sale in Vesey Close, Farnborough, GU14 — £167,000 • 1 bed • 1 bath • 323 ft²
1 bedroom maisonette for sale in Morval Close, Farnborough, Hampshire, GU14 — £190,000 • 1 bed • 1 bath • 363 ft²
2 bedroom maisonette for sale in Coleville Road, Farnborough , GU14 — £270,000 • 2 bed • 1 bath • 653 ft²
1 bedroom maisonette for sale in 1 bedroom Ground Floor Maisonette in Farnborough, GU14 — £160,000 • 1 bed • 1 bath • 377 ft²










































