GU14 0JF - 1 bedroom maisonette for sale in Morval Close, Farnborough,…

View on Property Piper

1 bedroom maisonette for sale in Morval Close, Farnborough, Hampshire, GU14

Summary - 5 MORVAL CLOSE FARNBOROUGH GU14 0JF

1 bed 1 bath Maisonette

**Standout Features:**
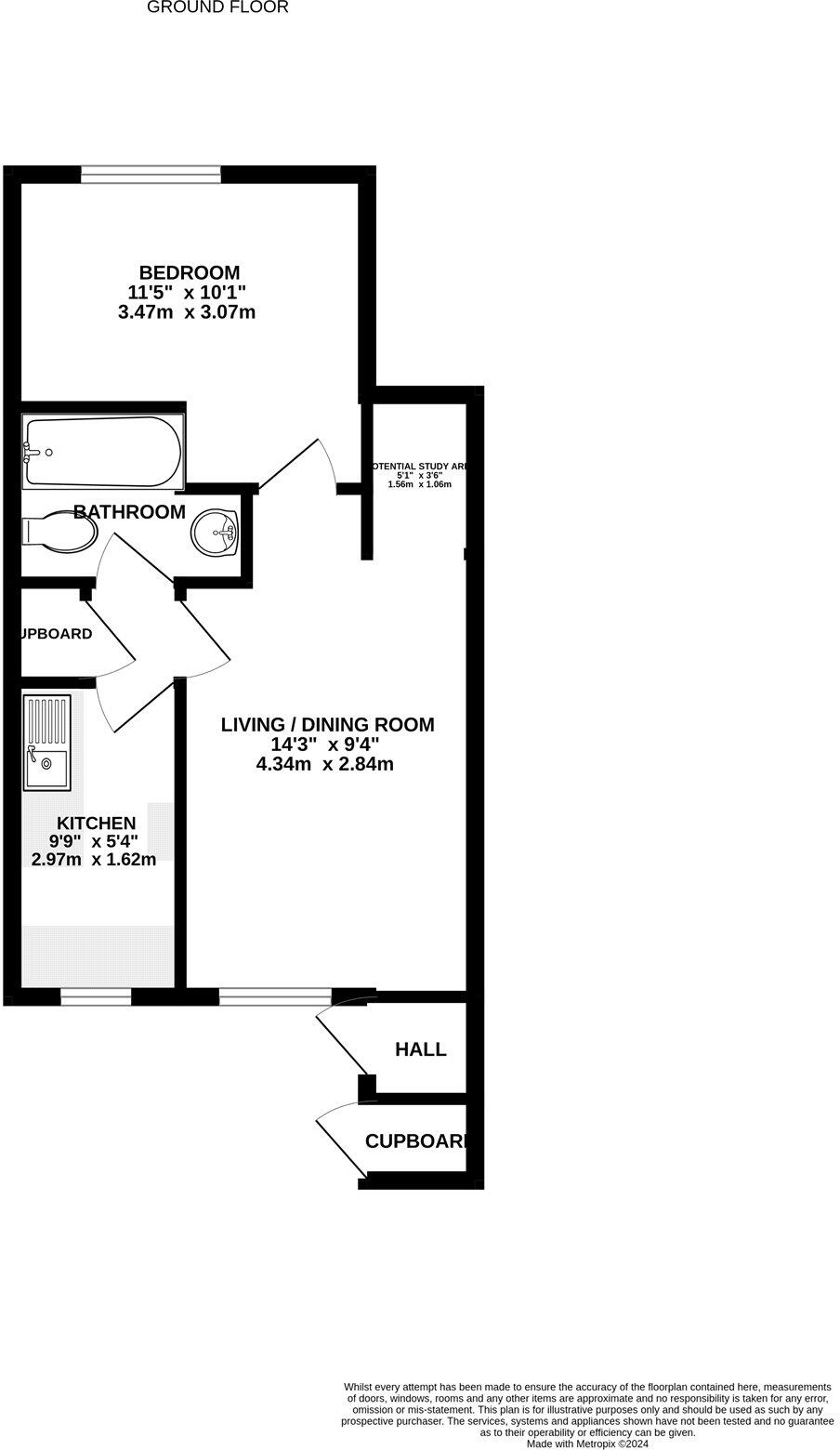
- One double bedroom
- Ground floor maisonette in a peaceful cul-de-sac
- Modern fitted kitchen and bathroom
- Generous living/dining room with natural light
- Small, low-maintenance garden
- Off-street parking available
- Excellent rental potential at £1,100 pcm
- Council Tax Band B, low maintenance costs

**Summary Description:**
Discover this well-presented ground floor maisonette in a tranquil cul-de-sac in Farnborough, perfect for first-time buyers or investors seeking rental income. This charming home features a spacious double bedroom and a generous living/dining area that floods with natural light, creating an inviting atmosphere. The modern fitted kitchen and stylish bathroom add to the home's appeal, making it move-in ready.

With a small front garden that requires minimal upkeep, outdoor relaxation is conveniently accessible. Plus, you’ll benefit from parking for both residents and visitors. Ideally located near essential amenities and well-regarded schools, including Southwood Infant School and Cove Junior School, this property offers an ideal balance of comfort and convenience. Enjoy the nearby Southwood Country Park for leisurely walks and family activities.

With 89 years left on the lease and a reasonable ground rent of £250 per year, this property combines affordability with future potential. Don’t miss your chance to own this cozy maisonette—an opportunity that won’t last long!

Property Details

Brochure Descriptions

Image Descriptions

Rooms

Textual Property Features

Detected Visual Features

EPC Details

Nearby Schools

Nearest Bars And Restaurants

,,,,}

Nearest General Shops

,,}

Nearest Grocery shops

,,}

Nearest Supermarkets

,,}

Nearest Religious buildings

,,}

Nearest Medical buildings

,,,}

Nearest Airports

}

Nearest Leisure Facilities

,,,,}

Nearest Tourist attractions

,,}

Nearest Train stations

,,,,}

Nearest Bus stations and stops

,,,,}

Nearest Hotels

,,}

Tags

Local Market Stats

AirBnB Data

Similar Properties

Meta

High Res Images

Compatible Images

Low res Images

Thumbnails

Raw Images

High Res Floorplan Images

Compatible Floorplan Images

Low res Floorplan Images

FloorplanImages Thumbnail

Raw Floorplan Images