Chain-free period property with strong conversion and rental potential.
No upper chain — vacant possession possible quickly
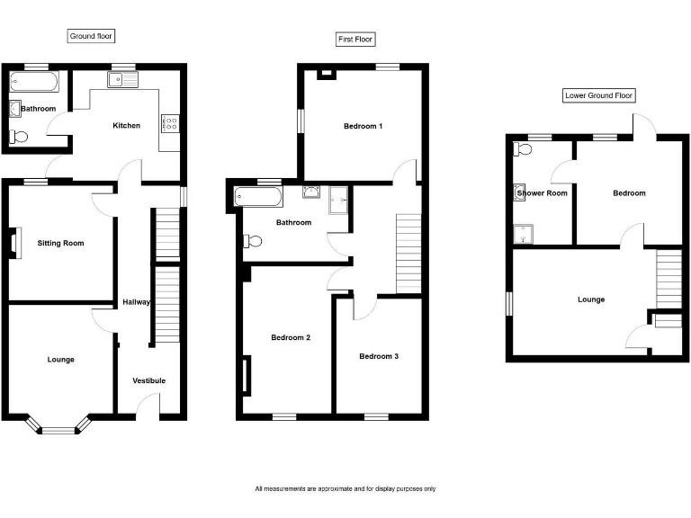
Three floors with lower-ground annexe, ideal for separate let
Large plot with rear garden and detached outbuilding
Gas central heating and double glazing already fitted
Excellent development potential for multiple flats (stpp)
EPC rating E — energy improvements likely required
Solid masonry walls likely uninsulated — insulation work probable
Area shows high deprivation — consider tenant profile and yields
This substantial mid-terraced property spans three levels and offers immediate development appeal for investors or landlords. Arranged currently as a single family home with a self-contained lower ground annexe, it provides flexible accommodation across generous floor space and a large plot with rear garden and outbuilding. No upper chain speeds progression.
Key value drivers include mains gas central heating, double glazing, on-street/forecourt parking and strong broadband/mobile coverage. The location at the edge of the Brecon Beacons makes it attractive for holiday or long-term lets, while proximity to Ammanford supplies everyday amenities and services.
The house will suit buyers prepared to modernise: the EPC is E, walls are likely uninsulated granite/whinstone, and some rooms show cosmetic wear. Conversion into multiple self-contained flats is a realistic option (subject to planning), offering potential uplift in rental income or resale value. Be aware of the local area’s higher deprivation metrics which can influence rental yields and tenant profiles.
Overall, this is a practical purchase for an investor or buyer seeking a spacious period property with clear renovation and conversion potential, sold freehold and chain-free for a straightforward transaction.
3 bedroom terraced house for sale in Mountain Road, Upper Brynamman, Ammanford, SA18 — £139,950 • 3 bed • 1 bath • 1012 ft²
3 bedroom terraced house for sale in Llandeilo Road, Upper Brynamman, Ammanford, SA18 — £135,000 • 3 bed • 1 bath • 1002 ft²
4 bedroom detached house for sale in New Road, Ammanford, SA18 — £162,500 • 4 bed • 2 bath • 1055 ft²
3 bedroom detached house for sale in Llandeilo Road, Upper Brynamman, Ammanford, Carmarthenshire., SA18 — £185,000 • 3 bed • 1 bath • 1292 ft²
3 bedroom terraced house for sale in Park Street, Lower Brynamman, Ammanford, SA18 — £95,000 • 3 bed • 1 bath • 822 ft²
4 bedroom detached house for sale in Banwen Place, Lower Brynamman, Ammanford, SA18 — £140,000 • 4 bed • 1 bath • 1236 ft²






















































