Wrap-around balcony, large garden and flexible basement workspace with excellent broadband.
Three bedrooms with good-sized living accommodation
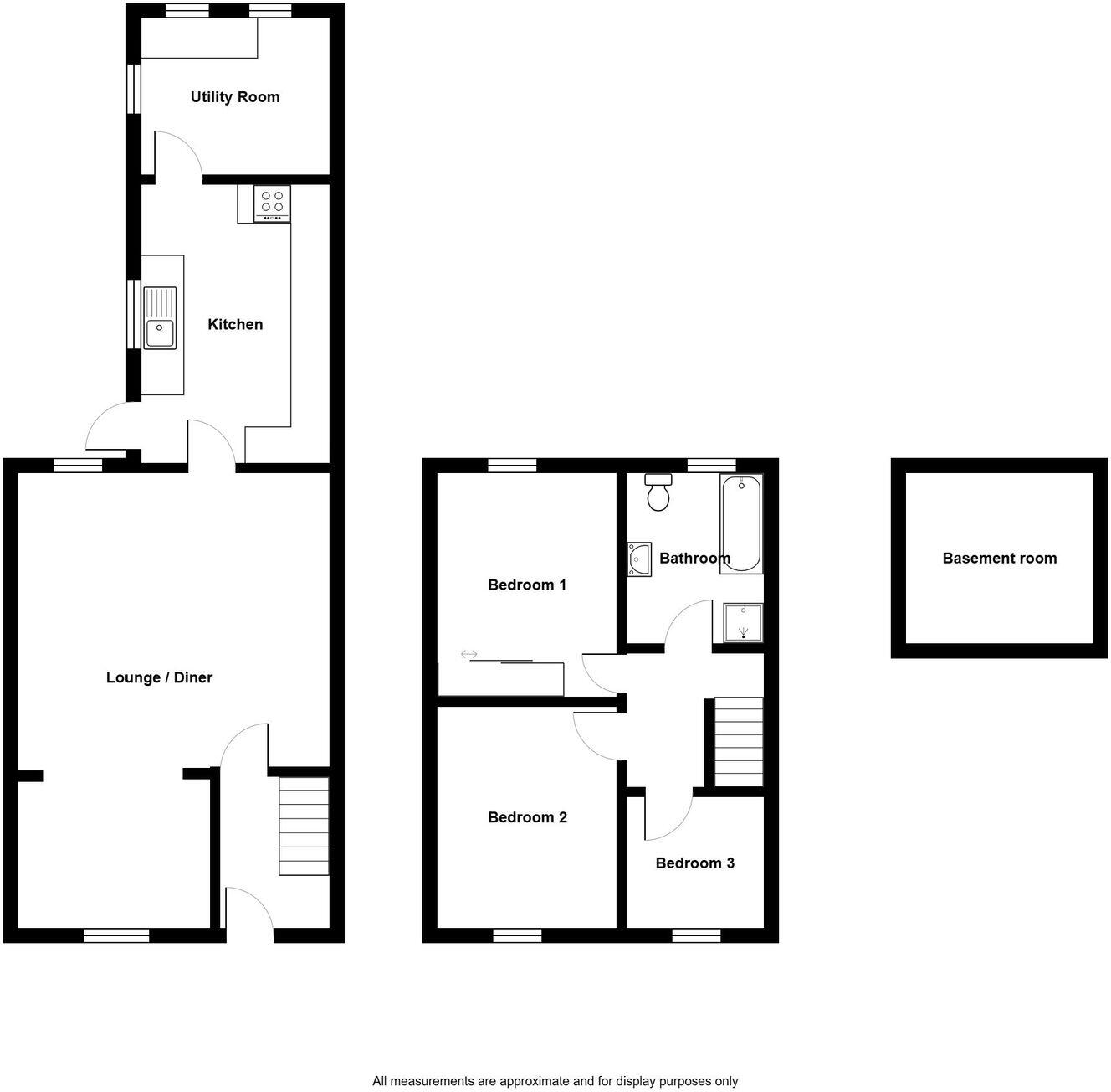
This well-presented three-bedroom mid-terraced house sits on a quiet side road in Upper Brynamman, offering comfortable, family-friendly accommodation and strong outdoor space. The property’s wrap-around decking balcony looks over a large rear garden, creating an appealing indoor-outdoor flow for families, gardeners or buyers who enjoy countryside views. A versatile basement room with adjacent WC provides a useful home office, hobby room or storage area.
Practical features include gas-fired central heating, double glazing and a good-sized lounge/dining space. The kitchen, utility/study and bathroom are arranged for everyday family living, while the generous garden includes fruit trees, seating areas and room for a hot tub or play space.
Be aware of material points: the house dates from c.1900–1929 with stone walls likely without cavity insulation, so buyers should consider potential heat-loss and retrofit costs. The front forecourt is small with limited off-street parking; pedestrian access to the rear of the neighbouring property is also noted. The local area is classified as very deprived, which may affect long-term value and local services.
Overall this property suits buyers seeking a period terrace with flexible accommodation and substantial outdoor space close to Brecon Beacons recreational opportunities. It offers good immediate usability with sensible scope for energy improvements and internal modernisation if required.
4 bedroom detached house for sale in Llandeilo Road, Upper Brynamman, Ammanford, SA18 — £189,950 • 4 bed • 3 bath • 1355 ft²
3 bedroom terraced house for sale in Brynamman Road, Lower Brynamman, Ammanford, SA18 — £172,500 • 3 bed • 1 bath • 1022 ft²
3 bedroom terraced house for sale in Mountain Road, Upper Brynamman, Ammanford, SA18 — £139,950 • 3 bed • 1 bath • 1012 ft²
3 bedroom semi-detached house for sale in Tirycoed Road, Glanamman, Ammanford, SA18 — £220,000 • 3 bed • 1 bath • 1260 ft²
3 bedroom semi-detached house for sale in Arfryn, Upper Brynamman, Ammanford, SA18 — £170,000 • 3 bed • 1 bath • 1053 ft²
2 bedroom terraced house for sale in Cwmgarw Road, Upper Brynamman, Ammanford, Carmarthenshire, SA18 — £135,000 • 2 bed • 1 bath • 819 ft²






























































































