Full planning for a stylish four-bedroom home in a peaceful rural setting..
- Full planning permission granted (PA/2023/616) for a detached 4-bed house
- Includes design for attached double garage and private driveway
- Decent-sized plot in desirable Wrawby village setting
- Mains services understood available nearby; buyer to confirm connections
- No flood risk; rural hamlet location with low crime
- Price reflects land only; building costs not included
- Tenure not specified; purchaser should verify legal details
- Modern architectural design proposed; potential for design amendments
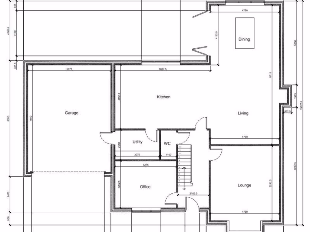
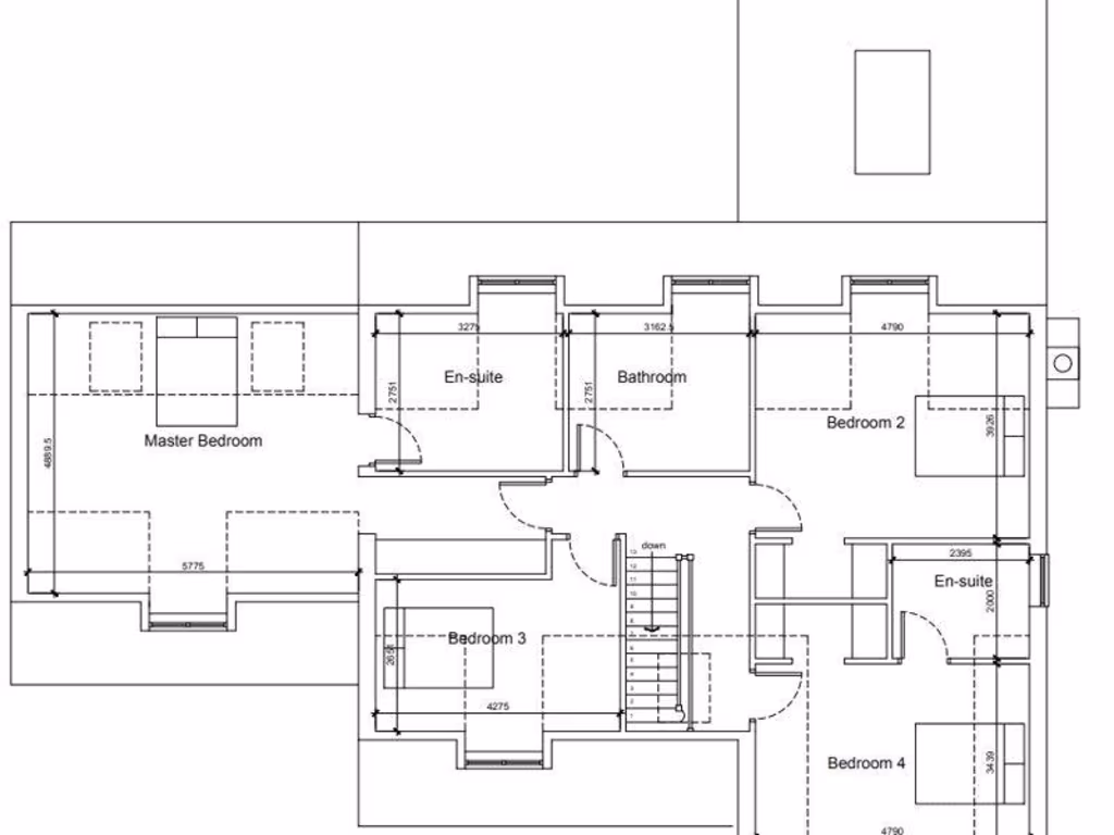
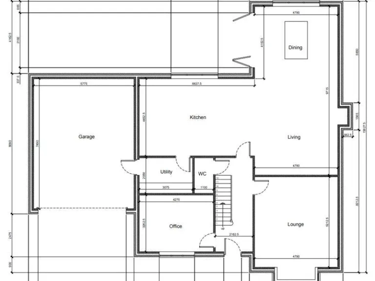
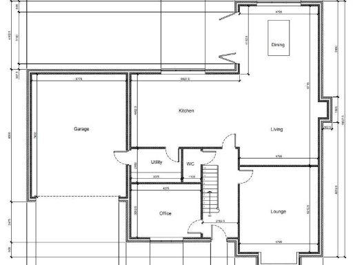
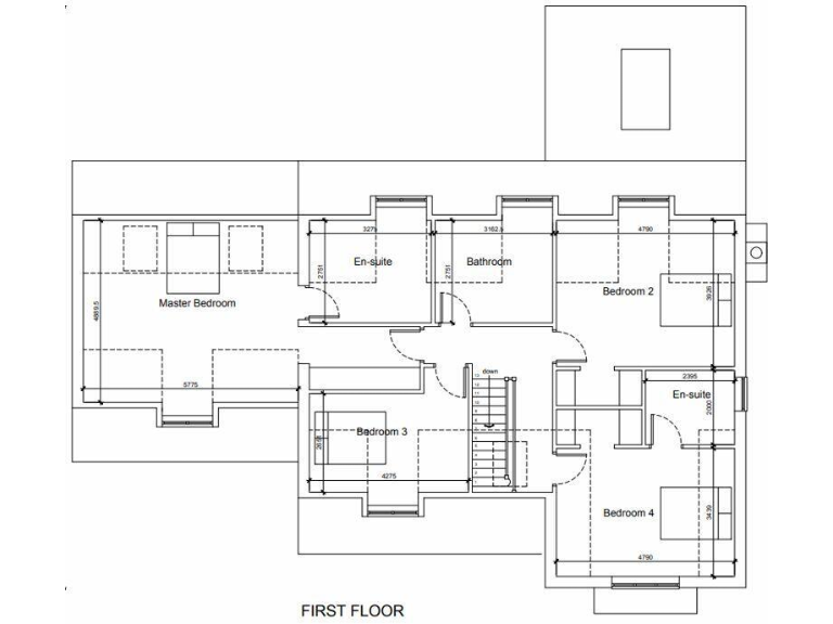
A rare single residential building plot with full planning permission (PA/2023/616) to construct a stylish detached four-bedroom house with attached double garage. Set off a private driveway in the desirable village of Wrawby, the plot offers countryside character while remaining close to local amenities and well-rated primary and secondary schools.
This opportunity suits a self-builder or developer looking for a straightforward project: full planning in place for a modern gabled design with stonework and smooth render, generous private gardens and parking. The site is described as a decent-sized plot with mains services understood to be available in the immediate area and no flood risk.
Buyers should note a few practical points: tenure is not specified and the buyer must confirm connections and any build conditions. The purchase price reflects land value only — building costs, statutory fees and construction timescales are additional. With low local crime, excellent mobile signal and fast broadband, this plot balances rural peace with practical connectivity.
Land for sale in Brigg Road, Wrawby, Brigg, DN20 — £110,000 • 1 bed • 1 bath
Land for sale in Northlands Road, Winterton, Scunthorpe, Lincolnshire, DN15 — £110,000 • 1 bed • 1 bath
Plot for sale in Station Road, Hibaldstow, Brigg, DN20 — £395,000 • 1 bed • 1 bath
Plot for sale in Folly, Hill, Thornton Road, North Owersby, Market Rasen, LN8 — £125,000 • 4 bed • 3 bath • 2008 ft²
Land for sale in Sturton, DN20 — £125,000 • 1 bed • 1 bath • 2063 ft²
Land for sale in Building Plot, North Owersby, Market Rasen, LN8 — £75,000 • 1 bed • 1 bath • 15682 ft²


































