**Standout Features:**
- Large plot of land with full planning permission for a 4-bedroom detached family home
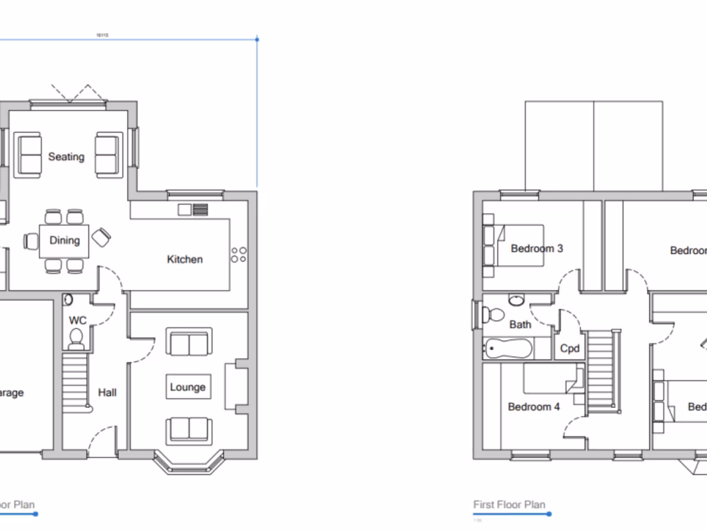
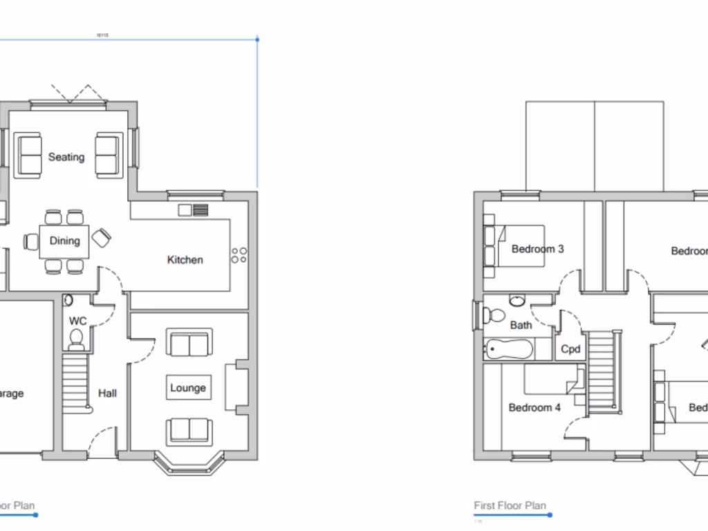
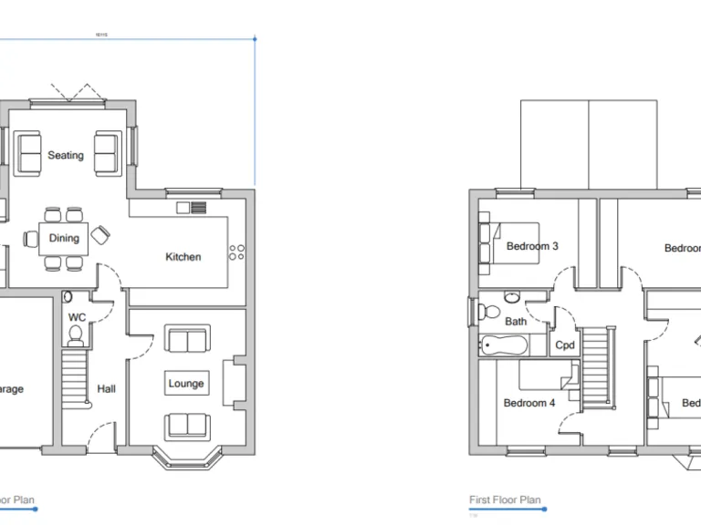
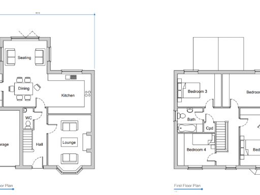
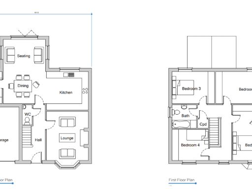
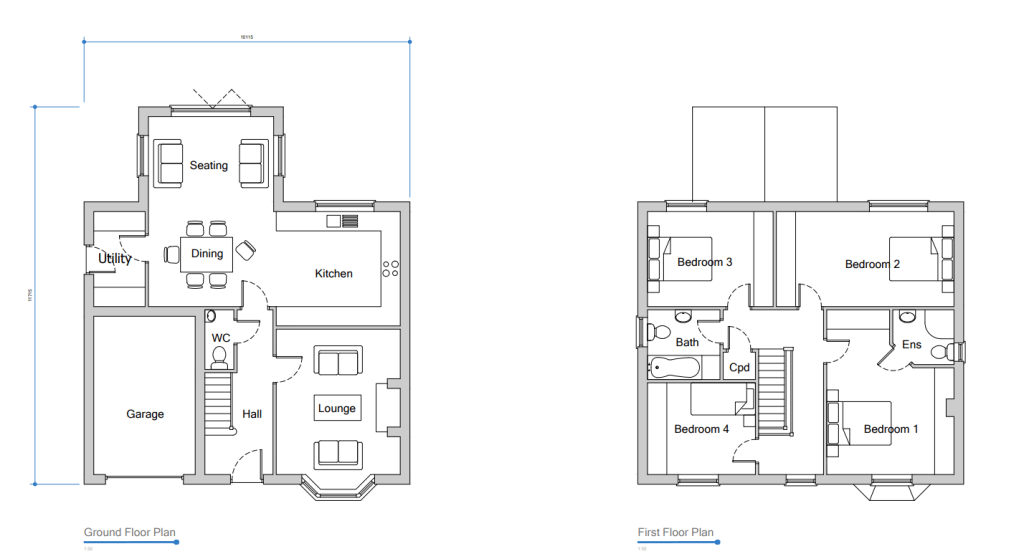
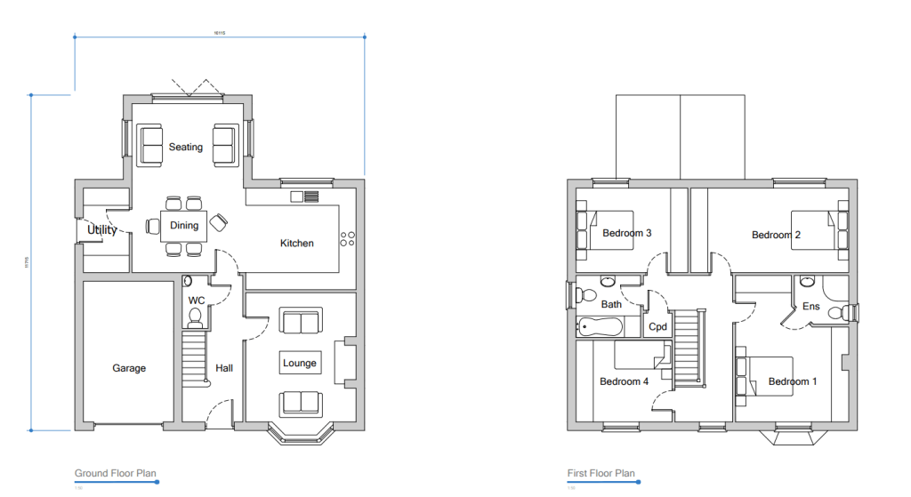
- Spacious layout: 2063 sq.ft (192 sq.m)
- Services (gas, electric, water, BT) already installed and ready for connection
- Private road access enhances exclusivity and privacy
- Excellent mobile signal and fast broadband speeds
- Located in a low-crime area with average community deprivation levels
**Potential Concerns:**
- Planning permission details to be thoroughly reviewed
- Execution of building plans and site preparation will require investment
Discover the perfect opportunity to create your dream home on this expansive plot located in Sturton Gardens, just outside Scawby. Ideal for developers or first-time buyers looking to build a family sanctuary, this property features full planning permission for a breathtaking 4-bedroom executive home, set against a serene rural backdrop. Enjoy peace of mind with essential services already in place, making it easier to turn your vision into reality. The property benefits from excellent transport links, local schools with good Ofsted ratings, and charming surroundings making it perfect for families seeking a tranquil lifestyle.
This exclusive site offers not only a beautiful living space but also a chance to customize every detail. Act quickly—opportunities like this are rare and bound to attract significant interest. Envision your future in this remarkable location!
Land for sale in Sturton, DN20 — £155,000 • 1 bed • 1 bath
Land for sale in Copplestones, Scawby Road, Scawby Brook, Brigg, Lincolnshire, DN20 9JU, DN20 — £80,000 • 1 bed • 1 bath
Plot for sale in Folly Hill, Thornton Road, North Owersby, LN8 — £125,000 • 4 bed • 3 bath • 2007 ft²
Plot for sale in Station Road, Hibaldstow, Brigg, DN20 — £395,000 • 1 bed • 1 bath
Plot for sale in Folly, Hill, Thornton Road, North Owersby, Market Rasen, LN8 — £125,000 • 4 bed • 3 bath • 2008 ft²
Land for sale in Brigg Road, Wrawby, Lincolnshire, DN20 — £110,000 • 1 bed • 1 bath • 919 ft²














































