LS12 2HJ - 27 bed derelict club development in Oak Road, LS12 2HJ

View on Property Piper

Plot for sale in New Wortley Labour Club, Oak Road Armley, Leeds, LS12 2HJ, LS12

Summary - NEW WORTLEY LABOUR CLUB, OAK ROAD LS12 2HJ

27 bed 1 bath Plot

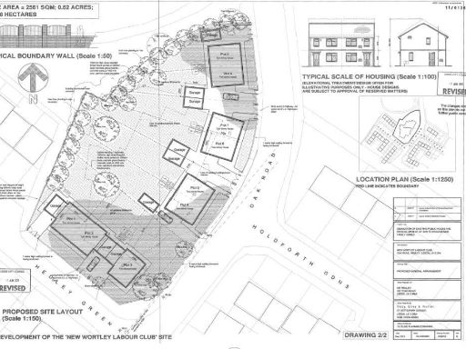
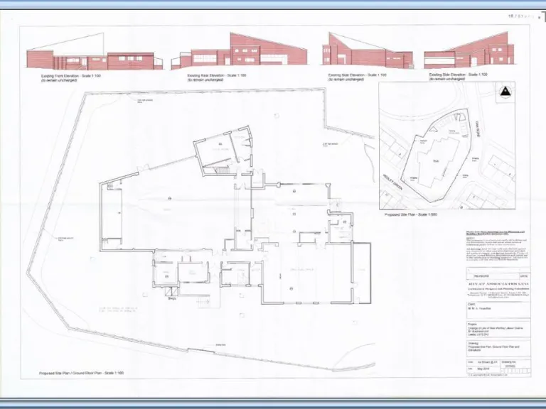
Large 0.62 acre site with lapsed planning for nine homes.
Freehold 0.62 acre plot in west Leeds
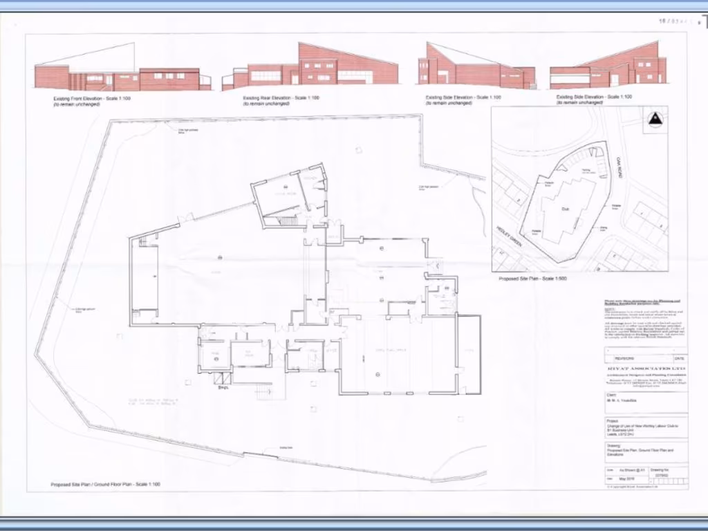
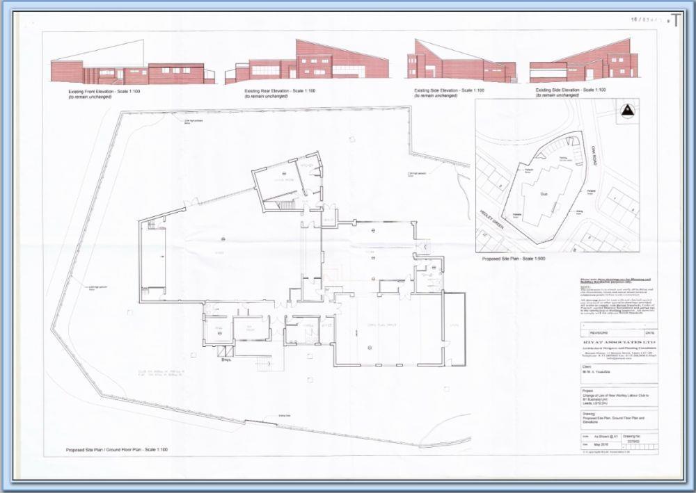
An extensive 0.62 acre freehold plot offering a clear development prospect in west Leeds. The former New Wortley Labour Club sits derelict with large open internal spaces and a mix of concrete and overgrown landscaping, ready for demolition or conversion. Outline planning consent granted in 2011 covered nine dwellings (8 semi-detached and 1 detached with garages) and there is a noted lapsed consent for B1C light industrial use — both options give flexibility but will require refreshed applications and modern compliance checks.

This opportunity suits investors or developers seeking a sizeable brownfield parcel near good local schools and strong transport links. Broadband and mobile signals are reported fast and excellent respectively, aiding modern builds or temporary site operations. Flood risk is low, and the flat topography simplifies earthworks, but the site is in a very deprived area with very high local crime rates, so security and community-sensitive design should be factored into project budgets and timelines.

The property will be sold at auction, offering a clear timetable for purchase. The existing building is neglected and will need full refurbishment or demolition; structural, services and contamination surveys are recommended before committing. With ambition and appropriate planning, the plot presents meaningful upside from residential redevelopment or light industrial reuse subject to consent.

Property Details

Brochure Descriptions

Image Descriptions

Textual Property Features

Target Audience

AI Tags

Detected Visual Features

Nearby Schools

Nearest Bars And Restaurants

,,,,}

Nearest General Shops

,,}

Nearest Grocery shops

,,}

Nearest Supermarkets

,,}

Nearest Religious buildings

,,}

Nearest Medical buildings

,,,}

Nearest Airports

}

Nearest Leisure Facilities

,,,,}

Nearest Tourist attractions

,,}

Nearest Train stations

,,,,}

Nearest Bus stations and stops

,,,,}

Nearest Hotels

,,}

Tags

Local Market Stats

AirBnB Data

Similar Properties

Meta

High Res Images

Compatible Images

Low res Images

Thumbnails

Raw Images