New build family home with modern specification and parking for two.
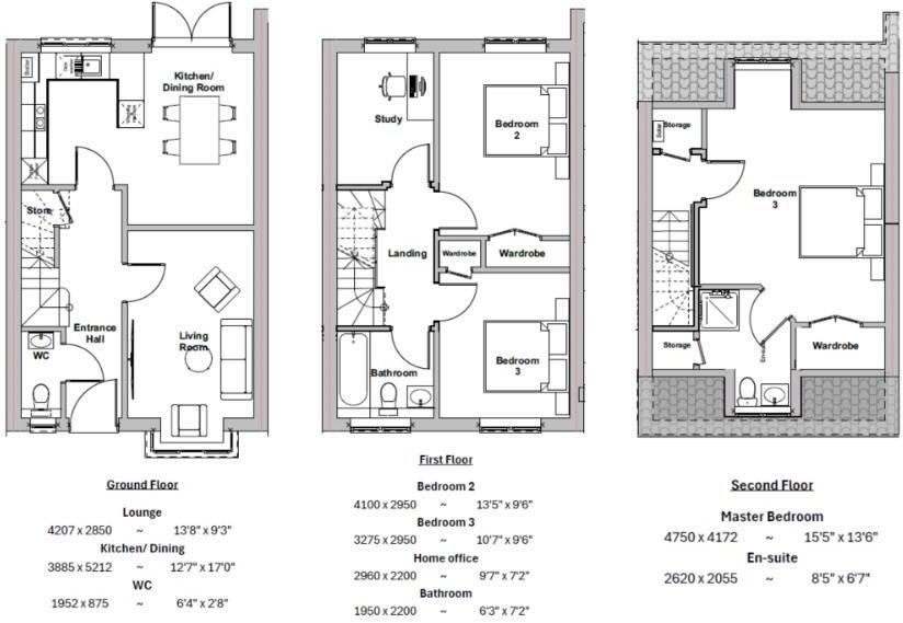
4 bedrooms across three floors with master ensuite and dedicated home office
Underfloor heating, quartz worktops, integrated appliances, flooring included
Off-street parking for two cars; small, turfed rear garden
New build freehold in a nine-home development; modern brick construction
Small overall footprint and limited external space compared with larger family homes
Mid-terrace position; quieter development but less privacy than detached homes
No flood risk; excellent mobile signal and fast broadband speeds
Local schools rated Good; easy access to Peterborough and village amenities
This newly built four-bedroom home on Barnes Way blends contemporary design with family-focused functionality. Three stories provide clear separation between living and sleeping zones, with a dedicated home office and an upstairs master with ensuite that suit remote working and parental privacy.
Specification is a standout: underfloor heating throughout, quartz worktops, integrated appliance provision, and choices of fixtures and fittings for early reservations. Flooring is included and the small rear garden will be turfed, creating a low-maintenance outdoor space. Off-street parking for two cars adds convenience in this compact development.
The plot and overall footprint are modest. The garden and external space are small compared with larger family homes, and the house is a mid-terrace within a nine-home development. Buyers seeking large grounds or expansive living rooms should note the limited plot size.
Set in Whittlesey, the location combines village character with easy road links to Peterborough and local amenities. Two Good-rated schools are nearby, and local leisure and shops are within walking distance. Completion is estimated for late summer/autumn; buyers still have the opportunity to personalise finishes depending on build stage.
5 bedroom semi-detached house for sale in Peterborough Road, Whittlesey, PE7 — £380,000 • 5 bed • 2 bath • 1355 ft²
5 bedroom semi-detached house for sale in Peterborough Road, Whittlesey, PE7 — £375,000 • 5 bed • 2 bath • 1213 ft²
5 bedroom semi-detached house for sale in Peterborough Road, Whittlesey, PE7 — £380,000 • 5 bed • 2 bath • 1356 ft²
4 bedroom end of terrace house for sale in Peterborough Road, Whittlesey, Peterborough, PE7 — £375,000 • 4 bed • 2 bath • 1440 ft²
3 bedroom town house for sale in Peterborough Road, Whittlesey, Peterborough, PE7 — £325,000 • 3 bed • 2 bath • 1273 ft²
4 bedroom detached house for sale in Whittlesey Lakeside, Eastrea Road,
Whittlesey, Cambridgeshire,
PE7 2AR, PE7 — £416,995 • 4 bed • 1 bath • 1134 ft²














































































