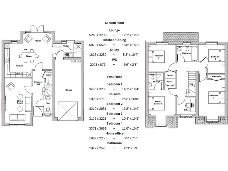
**Standout Features:**
- Newly built semi-detached home with modern design
- Five generous bedrooms, two bathrooms
- Underfloor heating and quartz worktops
- Integrated garage and dedicated home office
- Private garden with turfing, garage parking included
- Chain-free sale with flexible options for fixtures and fittings
This charming semi-detached home in Whittlesey offers a perfect blend of modern living and spacious design. Ideal for families, the property boasts five well-sized bedrooms, ensuring ample room for relaxation and privacy. Enjoy the sophistication of contemporary features like underfloor heating and luxurious quartz worktops in the stylish kitchen. A dedicated home office provides a quiet workspace, while an integrated garage adds convenience to daily life.
The garden, while compact, is private and ready for personal touches, perfect for outdoor entertaining or play. Located in a peaceful suburban area, you're steps away from local amenities and essential transport links, with the enchanting town of Whittlesey and the vibrant city of Peterborough nearby offering a wealth of shops, dining, and entertainment.
Take advantage of the chance to personalize your new home with an array of fixtures and fittings before completion, anticipated for late Summer/early Autumn. This limited collection of homes is not expected to last long—discover a space where comfort, quality, and community blend effortlessly. Make your mark in a thriving neighborhood, surrounded by rich history and local culture. Don't miss the open day on August 30th to envision your future in this exquisite residence!
5 bedroom semi-detached house for sale in Peterborough Road, Whittlesey, PE7 — £380,000 • 5 bed • 2 bath • 1355 ft²
5 bedroom semi-detached house for sale in Peterborough Road, Whittlesey, PE7 — £380,000 • 5 bed • 2 bath • 1356 ft²
4 bedroom town house for sale in The Carlby, Peterborough Road, Whittlesey, PE7 — £325,000 • 4 bed • 2 bath • 1067 ft²
4 bedroom detached house for sale in Whittlesey Lakeside, Eastrea Road,
Whittlesey, Cambridgeshire,
PE7 2AR, PE7 — £415,995 • 4 bed • 1 bath • 1134 ft²
4 bedroom detached house for sale in Glenfields North, Whittlesey, Peterborough, PE7 1FU, PE7 — £330,000 • 4 bed • 2 bath • 709 ft²
4 bedroom detached house for sale in Glenfields North, Whittlesey, Peterborough, PE7 — £375,000 • 4 bed • 2 bath • 1493 ft²














































































