**Standout Features:**
- Newly constructed semi-detached house
- Five spacious bedrooms, two bathrooms
- Modern design with high-quality finishes: underfloor heating, quartz worktops
- Integral garage and turfed gardens
- Personalization options available based on early reservations
- Chain-free sale, part exchange, and assisted move options
- Located in Whittlesey, with access to local amenities and nearby Peterborough
**Concerns:**
- Property size classified as small
- Average crime rates in the area
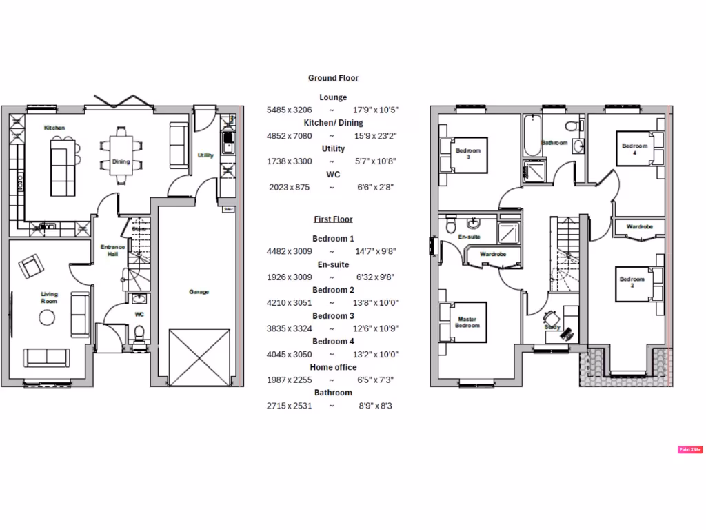
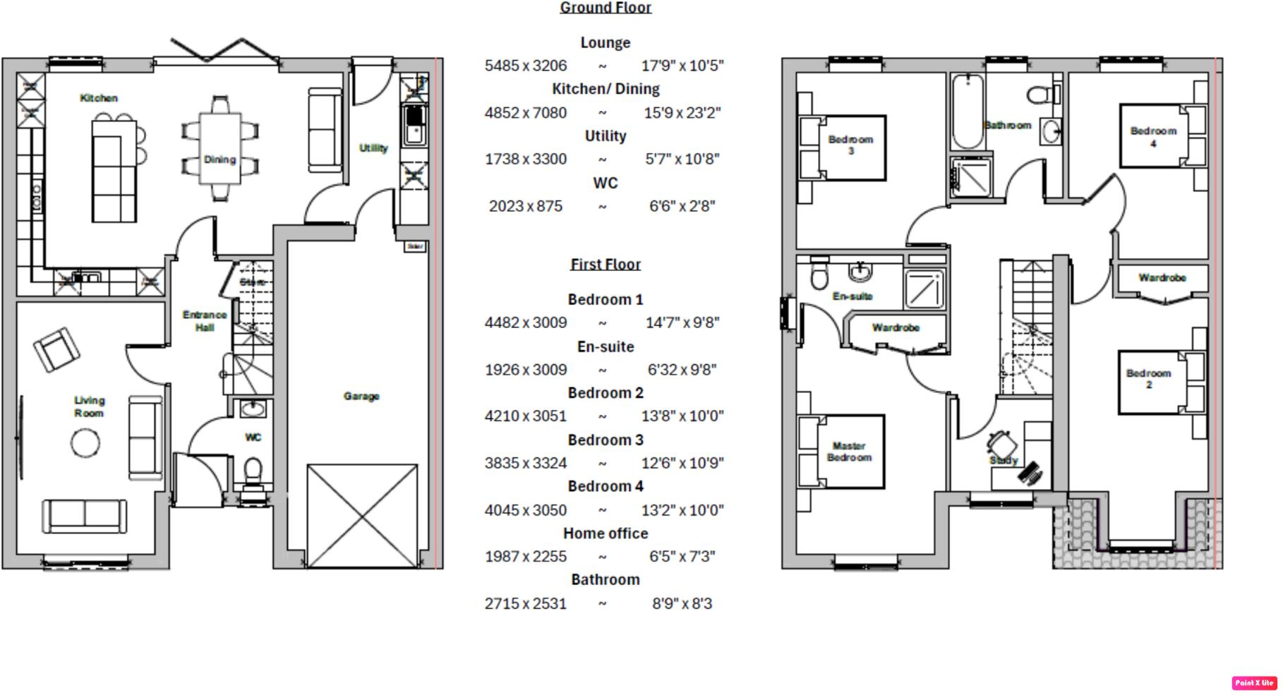
Discover your dream home in the unique Whittlesey Gate development, boasting a contemporary semi-detached design tailored for family life. This five-bedroom residence features an inviting layout with a sociable family kitchen and dedicated home office, perfect for remote work or study. Enjoy modern comforts such as underfloor heating and stylish quartz worktops, alongside the ability to choose your fixtures and fittings with early reservations.
Families will appreciate the spacious turfed gardens and proximity to local schools with Good ratings. The location is ideal for those seeking quiet, suburban living while still being a short drive from Peterborough’s vibrant amenities. With only nine homes available, this exclusive opportunity won't last long. Don’t miss the Open Day on August 30th to experience this exceptional property firsthand!
5 bedroom semi-detached house for sale in Peterborough Road, Whittlesey, PE7 — £380,000 • 5 bed • 2 bath • 1355 ft²
5 bedroom semi-detached house for sale in Peterborough Road, Whittlesey, PE7 — £375,000 • 5 bed • 2 bath • 1213 ft²
4 bedroom town house for sale in The Carlby, Peterborough Road, Whittlesey, PE7 — £325,000 • 4 bed • 2 bath • 1067 ft²
4 bedroom detached house for sale in Glenfields North, Whittlesey, Peterborough, PE7 1FU, PE7 — £330,000 • 4 bed • 2 bath • 709 ft²
4 bedroom detached house for sale in Glenfields North, Whittlesey, Peterborough, PE7 — £375,000 • 4 bed • 2 bath • 1493 ft²
4 bedroom detached house for sale in Tayberry, Whittlesey, PE7 — £325,000 • 4 bed • 2 bath


















































































