Contemporary four-bedroom house with garage and low-maintenance garden.
BRAND NEW four-bedroom, modern end-of-terrace home
Integral garage plus driveway parking for convenience
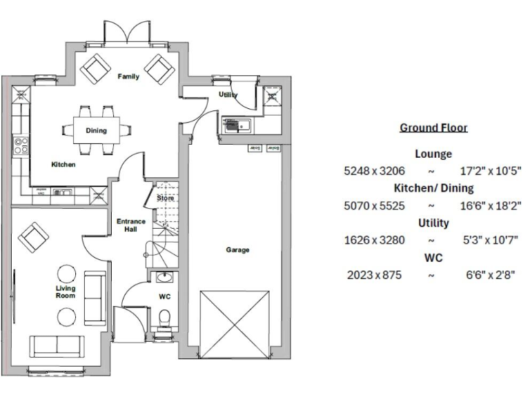
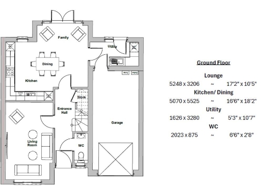
Open-plan kitchen/dining/family room with garden access
Separate utility room and ground-floor WC
Master bedroom with en-suite; study that can be bedroom 5
Spacious but small garden with patio, low-maintenance only
Council tax unknown; services and measurements unverified
This newly built four-bedroom end-of-terrace home is designed around family living and modern convenience. The ground floor features a generous open-plan kitchen/dining/family room with double doors to a patio and garden, plus a separate utility, WC and integral garage with driveway parking — practical for daily routines and weekend entertaining.
Upstairs offers a master bedroom with en-suite plus three further well-proportioned bedrooms and a dedicated study that could serve as a fifth bedroom or home office. The layout provides flexibility for growing families, guests or hobbies, and the overall 1,440 sq ft gives comfortable room sizes throughout.
Practical points to note: the plot is relatively small, so the garden is best suited to low-maintenance outdoor living rather than large-scale landscaping. Council tax band is not stated and services/appliances have not been independently tested — buyers should arrange surveys and checks to verify details prior to purchase.
Located in Whittlesey with good local schools, convenient amenities and fast broadband, this property suits families seeking contemporary space and low-maintenance living in a quiet suburban development. Freehold tenure and detached-style features such as an integral garage add long-term convenience.
5 bedroom semi-detached house for sale in Peterborough Road, Whittlesey, PE7 — £375,000 • 5 bed • 2 bath • 1213 ft²
4 bedroom detached house for sale in Glenfields North, Whittlesey, Peterborough, PE7 — £360,000 • 4 bed • 2 bath • 1493 ft²
4 bedroom detached house for sale in Tayberry Way, Whittlesey, Peterborough, PE7 — £300,000 • 4 bed • 2 bath • 1131 ft²
4 bedroom detached house for sale in Glenfields North, Whittlesey, Peterborough, PE7 1FU, PE7 — £330,000 • 4 bed • 2 bath • 709 ft²
4 bedroom town house for sale in The Carlby, Peterborough Road, Whittlesey, PE7 — £325,000 • 4 bed • 2 bath • 1067 ft²
5 bedroom semi-detached house for sale in Peterborough Road, Whittlesey, PE7 — £380,000 • 5 bed • 2 bath • 1355 ft²






























