Prominent Sutton Fields estate with yards and refurbished offices, suitable for logistics or redevelopment.
Combined 7,887 sq m (84,899 sq ft) across 1.45 ha (3.58 acres)
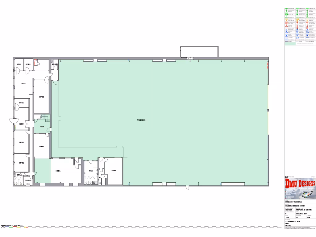
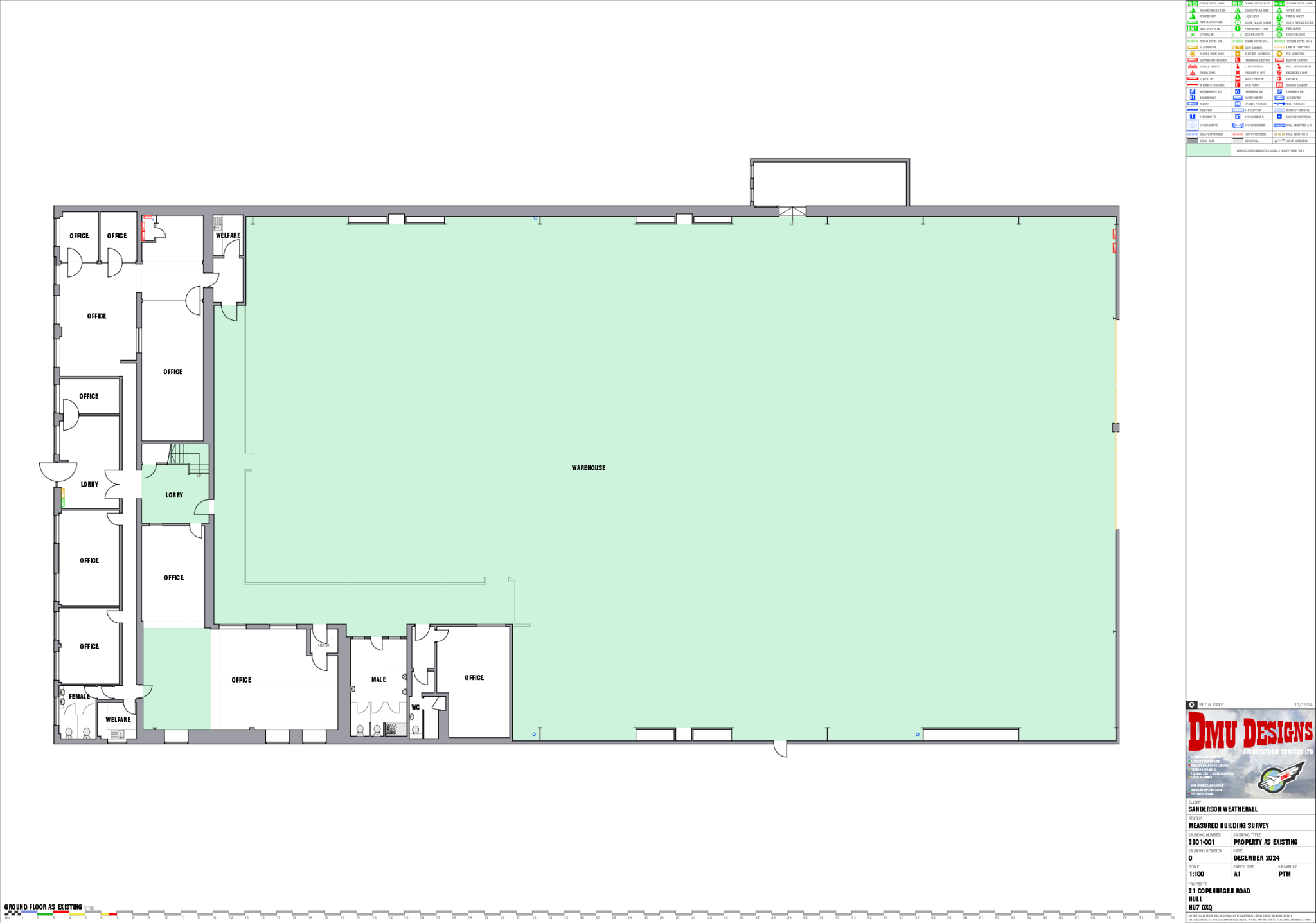
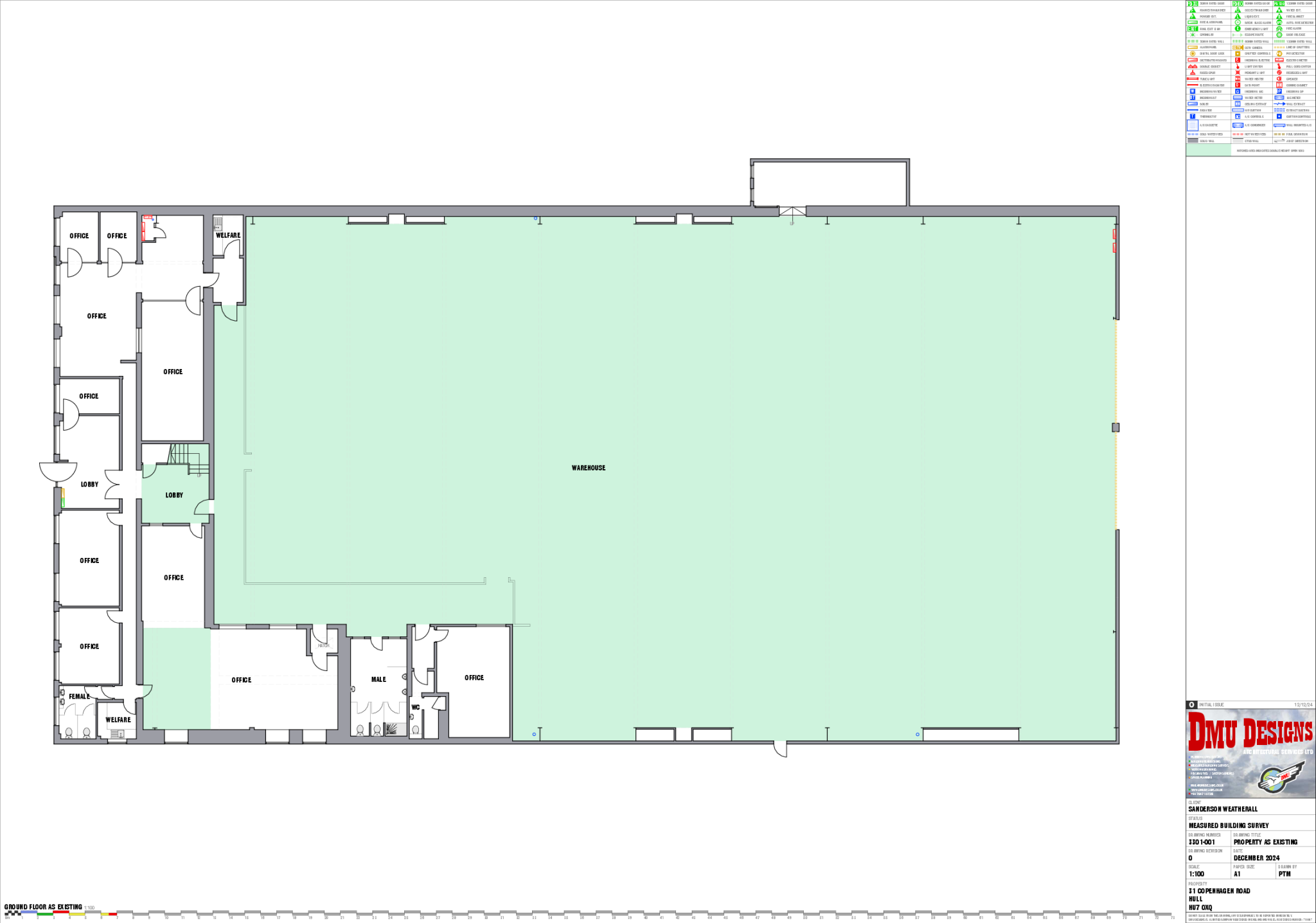
A substantial light-industrial estate extending to approximately 7,887 sq m (84,899 sq ft) across a combined site of about 1.45 ha (3.58 acres) in Sutton Fields Industrial Estate. The opportunity is offered either as a whole or as two lots: Lot 1 (freehold) comprises 5,498 sq m in six interlinking bays with eaves of 4.9m–6.5m and direct Oslo Road access; Lot 2 (long leasehold) offers a 2,390 sq m detached warehouse with recently refurbished offices and a well-proportioned rear yard. The site suits owner-occupation, logistics, manufacturing or subdivision (subject to consents). Offers requested by 13 February 2025.
The estate benefits from prominent corner positioning at Copenhagen and Oslo Roads with good arterial links to the A1033 and wider motorway network. Large yards, extensive hardstanding and secure perimeters support HGV movement, storage and distribution use. Office accommodation in Lot 2 is recently upgraded, providing immediate operational space while Lot 1’s larger manufacturing bays suit heavy or high-volume occupiers.
Material considerations: the property sits in a deprived, high-crime area and carries a medium flood risk — both factors that may affect insurance and security costs. Lot 2 is held on a long lease (999 years from 1974); Lot 1 is freehold. Any subdivision, change of use or redevelopment will be subject to the usual planning and statutory consents.
This is a value-driven opportunity for investors or owner-occupiers seeking scale in Hull’s primary industrial park. The large plot and configuration allow operational consolidation, phased disposal of lots, or redevelopment for alternative industrial/logistics use, but prospective purchasers should factor in location-specific site security, flood mitigation and any remedial works identified on inspection.
Light industrial facility for sale in Unit 2 Amsterdam Road, Sutton Fields Industrial Estate, Hull, East Yorkshire, HU7 0XF, HU7 — £2,000,000 • 1 bed • 1 bath • 26422 ft²
Light industrial facility for sale in Former Atlas Leisure HQ, Wiltshire Road, Hull, HU4 6PD, HU4 — £675,000 • 1 bed • 1 bath
Warehouse for sale in Erimus Works, Valletta Street, Hull, HU9 5NU, HU9 — £3,000,000 • 1 bed • 1 bath
Light industrial facility for sale in Vulcan Windows, Stoneferry Bridge, 1 Clough Road, Hull, East Yorkshire, HU6 7QN, HU6 — £1,350,000 • 1 bed • 1 bath • 27189 ft²
Light industrial facility for sale in Lorraine Street, Hull, East Riding Of Yorkshire, HU8 — £80,000 • 1 bed • 1 bath
Light industrial facility for sale in Ropery Street, Hull, East Yorkshire, HU3 — £350,000 • 1 bed • 1 bath • 7343 ft²






















































































