Substantial operational facility with secure yard and strong logistic access.
Extensive 26,422 sq ft industrial unit with mezzanine and offices
Internal eaves height approx. 4.8 metres for large-volume operations
Two automatic roller shutter doors and gas warm air blowers
Large self-contained yard with palisade fencing and gated access
High-quality ground-floor office fit-out including boardroom
Available on a new lease; tenure details currently unknown
Medium flood risk — further site-specific checks advised
Located in a deprived, very high-crime area; security costs likely
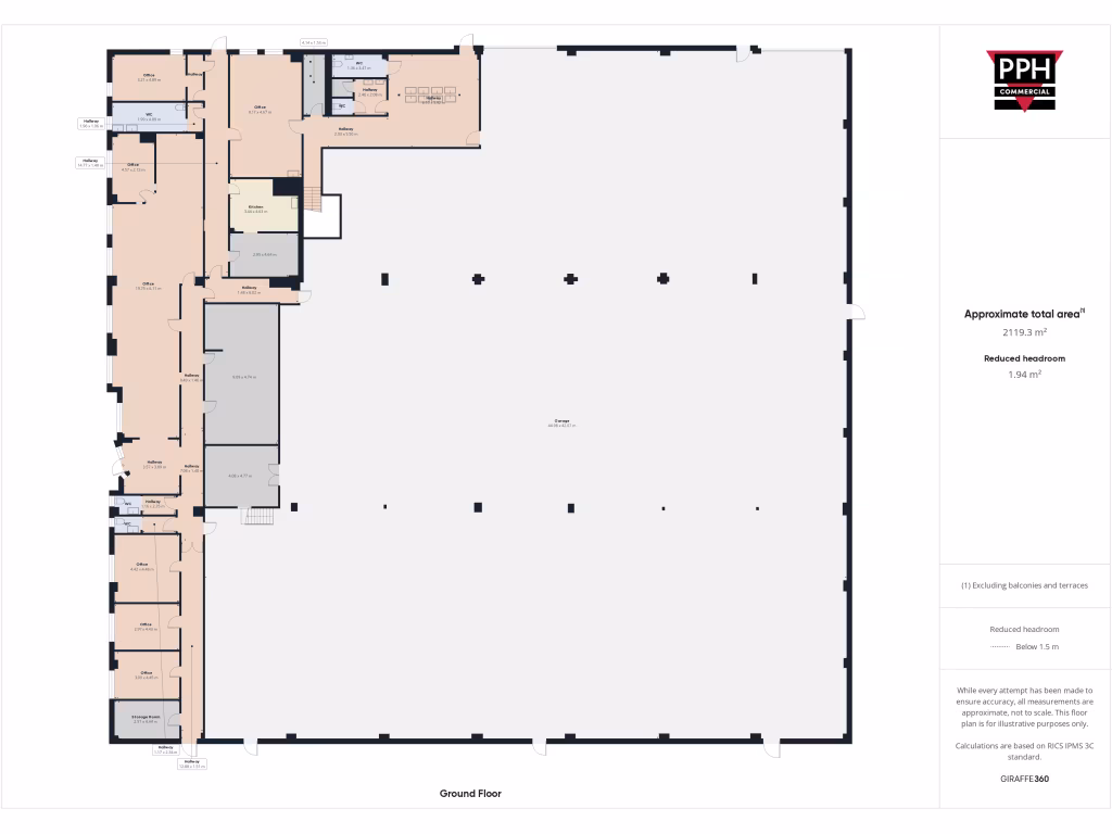
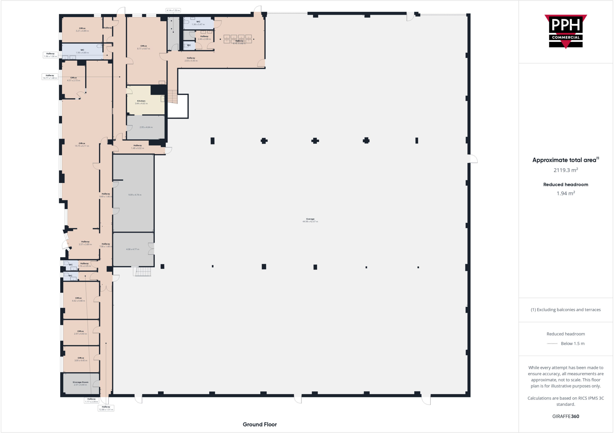
A substantial light industrial unit of 26,422 sq ft positioned on Sutton Fields Industrial Estate, suited to logistics, trade distribution or multi-occupancy use. The building combines a high-quality office fit-out with large ground-floor workshop space, a mezzanine for offices and storage, and practical loading access making day-to-day operations straightforward.
Practical features include an internal eaves height of about 4.8 m, two automatic roller shutter doors, gas-fired warm air blowers and a sizable, self-contained yard with palisade fencing and gated entrance. The unit has off-street parking and a reception, boardroom, kitchen, WCs and locker rooms which reduce immediate fit-out costs for administrative use.
Important considerations for buyers: the property sits in a deprived, high-crime area and the wider location is classed as deprived blue-collar terraces, which may affect staff recruitment, security costs and long-term rental values. Flood risk is medium and tenure details are not provided; buyers should confirm lease/ownership terms and carry out a flood and security risk assessment before exchange.
Offered at £2,000,000 and available on a new lease, the site suits owner-occupiers or investors seeking a large industrial asset with immediate rental potential and scope for operational consolidation or reconfiguration. Some tenants may choose to invest in enhanced perimeter security or bespoke internal works to suit specialist uses.
Light industrial facility for sale in Former ESS Modular 31 Copenhagen Road, Hull, HU7 0XQ, HU7 — £1,150,000 • 1 bed • 1 bath • 18707 ft²
Light industrial facility for sale in Former Atlas Leisure HQ, Wiltshire Road, Hull, HU4 6PD, HU4 — £675,000 • 1 bed • 1 bath
Warehouse for sale in Erimus Works, Valletta Street, Hull, HU9 5NU, HU9 — £3,000,000 • 1 bed • 1 bath
Light industrial facility for sale in Rotterdam Park, Hull, East Yorkshire, HU7 — £135 • 1 bed • 1 bath • 11951 ft²
Light industrial facility for sale in Ropery Street, Hull, East Yorkshire, HU3 — £350,000 • 1 bed • 1 bath • 7343 ft²
Light industrial facility for sale in Vulcan Windows, Stoneferry Bridge, Clough Road, Hull, East Yorkshire, HU6 — £1,350,000 • 1 bed • 1 bath • 27189 ft²


































































