Private rural plot with planning consent — ideal for conversion-minded buyers.
Detailed planning consent for residential conversion (WA/2024/01626).|Gated development of only four properties; very private plot.|Large plot with woodland views and substantial off-road parking.|Single-storey bungalow-style; extensive glazing and natural light.|Commercial EPC F (129) — energy upgrades required for residential use.|Very slow broadband speeds; limited for home-working without upgrade.|Oil-fired heating with boiler, radiators, underfloor heating present.|Requires full residential fit-out and internal finishes post-conversion.
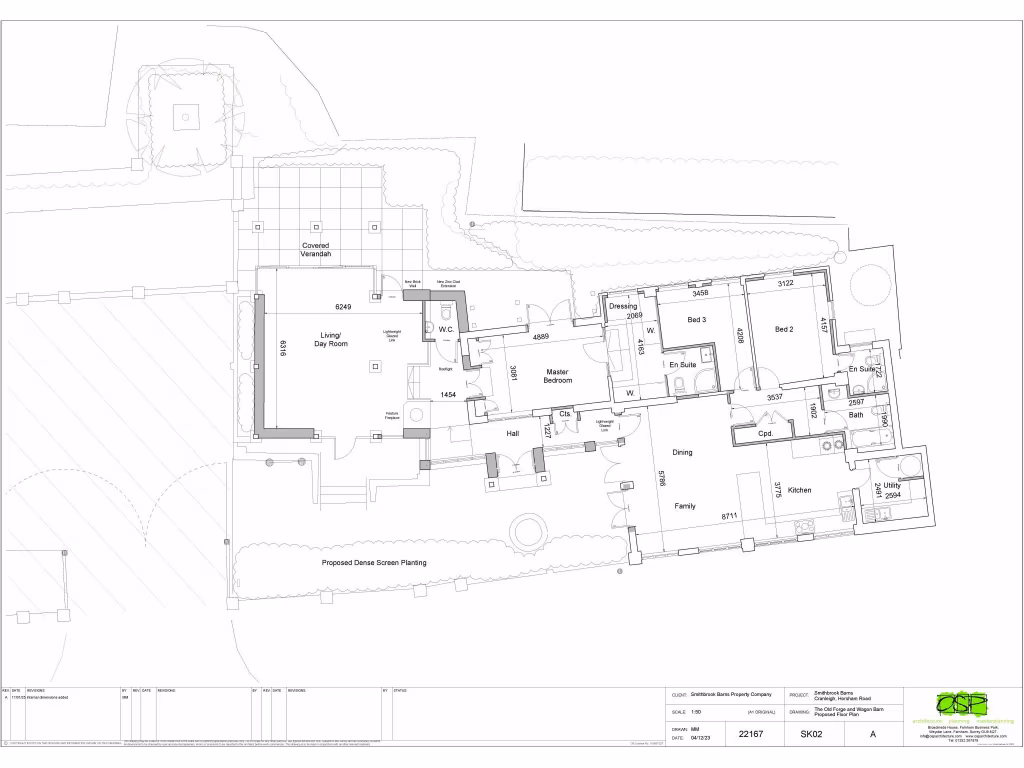
An unusual conversion opportunity set within an exclusive gated hamlet on the outskirts of Cranleigh. The site comprises former office buildings with detailed planning consent (Waverley BC ref WA/2024/01626) to create a three-bedroom detached home with substantial private grounds — a rare plot in a low-density rural setting.
The property offers strong privacy, woodland views and generous off-road parking behind a brick wall and metal gate. Its large plot and detached form suit buyers seeking a countryside retreat or a developer/owner-occupier who wants to finish a conversion to a high specification. Main heating is oil-fired with a combined boiler, radiators and underfloor heating provision.
Buyers should note this is a conversion from commercial use: the current commercial EPC is F (129) and the building will require full residential fit-out and energy-performance upgrades to reach modern standards. Broadband speeds are reported very slow; this limits home working unless improved. The single-storey bungalow-style layout and extensive glazing provide good natural light but internal finishes are not present.
Overall this is a gated, low-crime, high-privacy site with planning certainty for residential use. It suits buyers who are prepared to complete a conversion and invest in energy, connectivity and internal finishes to unlock the property's full value.
3 bedroom detached house for sale in Smithbrook, Cranleigh, GU6 — £395,000 • 3 bed • 3 bath • 1726 ft²
3 bedroom detached house for sale in Smithwood Common, Cranleigh, GU6 — £1,500,000 • 3 bed • 3 bath • 2604 ft²
3 bedroom property for sale in Off The Street, West Horsley, KT24 — £800,000 • 3 bed • 2 bath • 1700 ft²
3 bedroom detached house for sale in Knightons Lane, Dunsfold, GU8 — £999,950 • 3 bed • 1 bath • 1314 ft²
3 bedroom detached house for sale in The Street, West Horsley, KT24 — £800,000 • 3 bed • 2 bath • 1700 ft²
3 bedroom detached house for sale in Off The Street, West Horsley, KT24 — £1,275,000 • 3 bed • 2 bath • 1740 ft²


























































