Huge 1.8-acre plot with approved 4,000 sq ft building consent — prime self-build site..
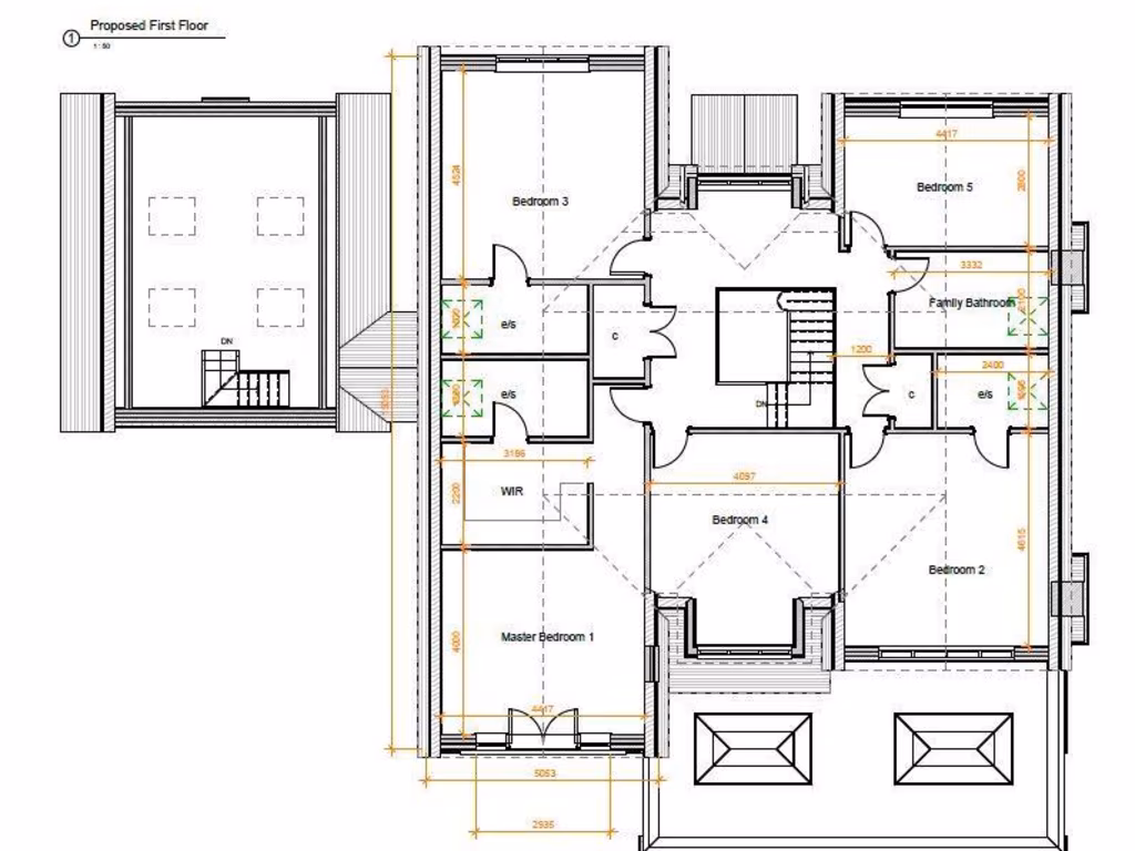
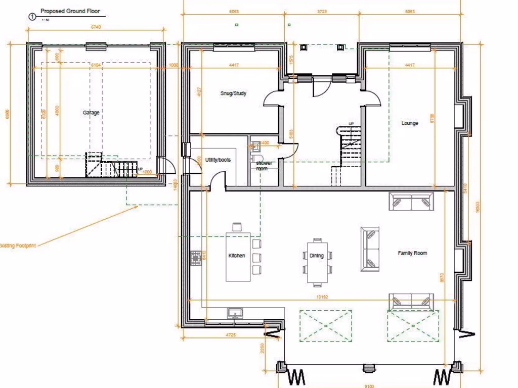
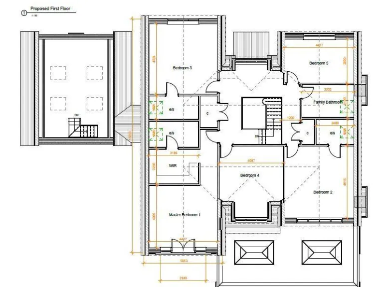
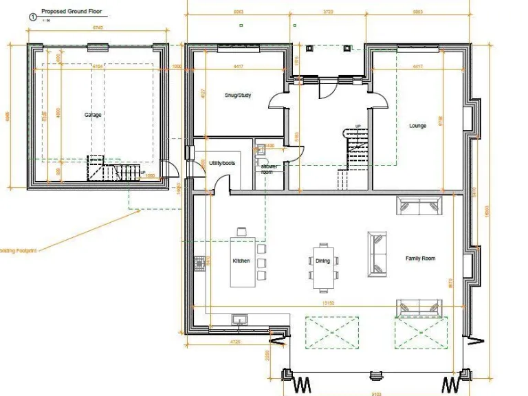
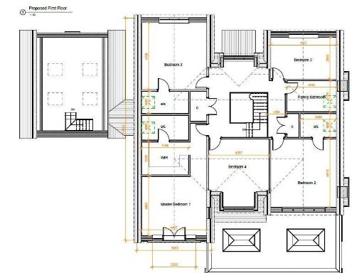
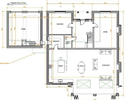
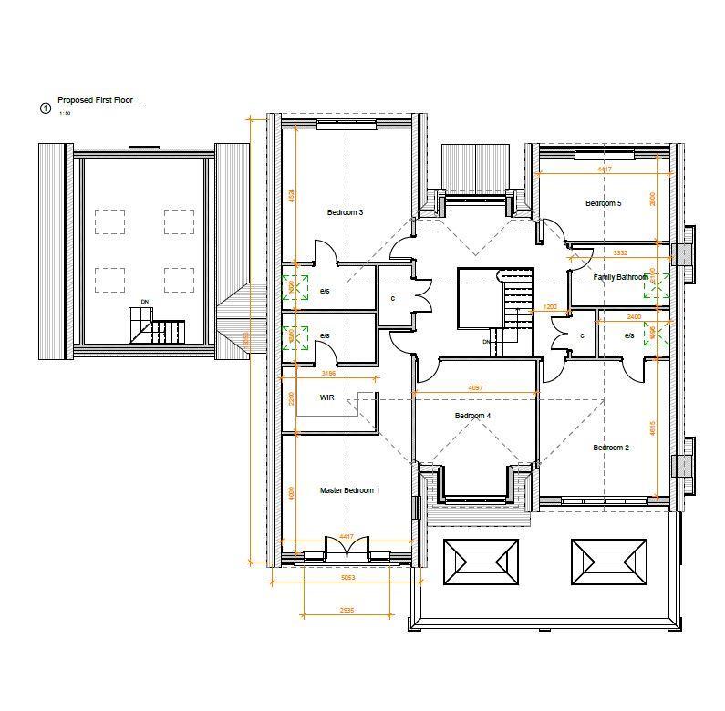
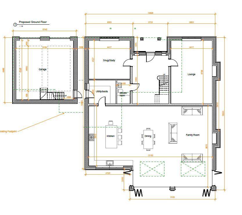
Planning permission granted for a 4,000 sq ft new residence (WA/2024/01384)
Generous, secluded 1.8 acre plot with east–west aspect
Existing 3-bed house requires comprehensive updating throughout
EPC rating E; oil-fired boiler and radiators (not mains gas)
Single bathroom; likely need for modern services and interior overhaul
Detached garage and scope for interim occupation or phased development
Fast broadband; average mobile signal; low crime and affluent area
Council tax level described as quite expensive
Set in the desirable village of Dunsfold, Cranlegh Cottage sits on a very large, private 1.8-acre plot with an uninterrupted east–west aspect. The existing three-bedroom house provides immediate occupation but requires comprehensive updating to meet modern standards; the EPC rating is E. Oil-fired heating, a single bathroom and an older construction date (1930s–1940s) are practical considerations for a purchaser.
The principal value driver is the granted planning permission for a new 4,000 sq ft residence (Waverley BC ref WA/2024/01384), making this a rare self-build or redevelopment opportunity in prime Surrey countryside. The mature, secluded gardens and detached garage give flexibility for interim living, rental while building, or phasing works. Broadband is fast and the area is very affluent with low crime and good local schools.
This property will suit buyers seeking an investment or bespoke project: a developer, self-builder, or purchaser wanting to create a large family home. Be clear that a full renovation of the existing cottage would be needed if you choose not to follow the approved scheme; costs for oil heating improvements, potential drainage updates and modernisation should be factored in. Council tax is noted as quite expensive.
Viewings are recommended for those who want a substantial plot in a peaceful, well-connected Surrey village. The planning pack is available via Waverley Borough Council for those wanting to assess the approved design and scope for change.
4 bedroom detached house for sale in Durfold Wood, Plaistow, Billingshurst, RH14 — £725,000 • 4 bed • 3 bath • 1999 ft²
5 bedroom detached house for sale in Knightons Lane, Dunsfold, Godalming, Surrey, GU8 — £1,950,000 • 5 bed • 2 bath • 5405 ft²
Land for sale in Plot with planning permission, Amlets Lane, Cranleigh, GU6 — £500,000 • 4 bed • 3 bath • 2250 ft²
3 bedroom detached house for sale in Smithwood Common, Cranleigh, GU6 — £1,500,000 • 3 bed • 3 bath • 2604 ft²
3 bedroom detached house for sale in Smithbrook, Cranleigh, Surrey, GU6 — £395,000 • 3 bed • 3 bath • 1726 ft²
3 bedroom detached house for sale in Aveley Close, Farnham, Surrey, GU9 — £700,000 • 3 bed • 1 bath • 914 ft²










































































































