Starter-friendly home with parking, garden and guaranteed new-build warranty.
French doors from kitchen/diner to garden
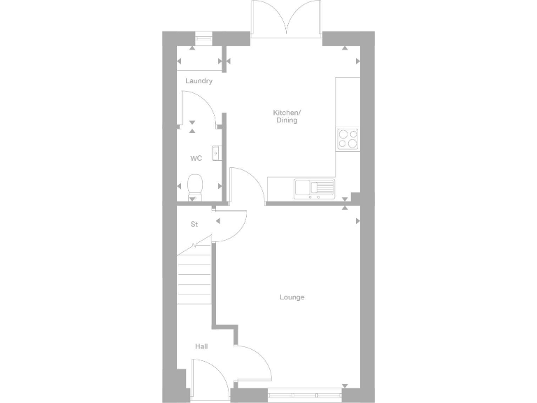
This three-bedroom new-build mews house on The Fairways offers a practical starter home with thoughtful built-in conveniences. The open-plan kitchen/diner opens through French doors to the garden, while a separate laundry room and downstairs WC add useful everyday practicality. The principal bedroom includes an en-suite; two further bedrooms and a family bathroom complete the layout.
Built with a 10-year NHBC warranty and modern energy-efficient fittings, the home should deliver lower running costs than an older property. Off-street parking and a decent-sized rear garden give outdoor space and convenience for families or first-time buyers. Annual service charge is modest at £119.55.
The property is compact at about 558 sq ft; some rooms are small, particularly bedroom three and the laundry. Council tax band is not yet confirmed and there is a £500 reservation fee. Overall, this is a low-maintenance, well-warranted option for buyers seeking a ready-to-move-into new home in a quiet residential pocket of Wombwell.
3 bedroom mews property for sale in Off Lundhill Road,
Wombwell,
Barnsley,
S73 0RH, S73 — £234,995 • 3 bed • 1 bath • 558 ft²
3 bedroom semi-detached house for sale in Off Lundhill Road,
Wombwell,
Barnsley,
S73 0RH, S73 — £239,995 • 3 bed • 1 bath • 514 ft²
3 bedroom semi-detached house for sale in Off Lundhill Road,
Wombwell,
Barnsley,
S73 0RH, S73 — £244,995 • 3 bed • 1 bath
4 bedroom detached house for sale in Off Lundhill Road,
Wombwell,
Barnsley,
S73 0RH, S73 — £384,995 • 4 bed • 1 bath • 878 ft²
4 bedroom detached house for sale in Off Lundhill Road,
Wombwell,
Barnsley,
S73 0RH, S73 — £359,995 • 4 bed • 1 bath • 816 ft²
4 bedroom detached house for sale in Off Lundhill Road,
Wombwell,
Barnsley,
S73 0RH, S73 — £376,995 • 4 bed • 1 bath • 989 ft²






































