Bright new home with garden, parking and low running costs.
New-build three-bedroom semi-detached with 10-year NHBC warranty
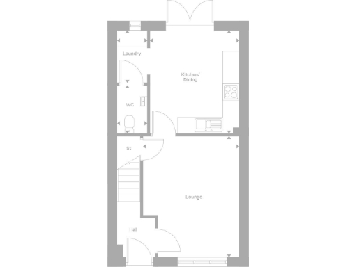
A bright, newly built three-bedroom semi-detached home on The Fairways, ideal for first-time buyers seeking low-maintenance, energy-efficient living. The ground floor features an open kitchen/diner with French doors to the garden, a separate laundry room and a handy downstairs WC — practical layouts that suit family life and everyday convenience. The principal bedroom includes an en-suite; two further bedrooms and a family bathroom provide straightforward accommodation across a traditional two-storey plan.
Being new build, the house comes with a 10-year NHBC warranty and brand-new kitchen and bathroom fittings, which should reduce immediate maintenance costs and energy bills. Off-street parking and a decent private garden add to the practical appeal. Local broadband is fast and crime levels are very low, making the area suitable for families and those working from home.
There are some transactional and size notes to consider: a reservation fee of £500 applies and selected purchase-assist offers (deposit contributions, part-exchange, assisted move) are available on certain plots only and subject to terms. The third bedroom is compact and the overall layout is a conventional new-build scale rather than large period rooms. Annual service charge is £119.55, reviewed yearly.
Nearby schools include Good and Outstanding-rated primary options and a Good secondary, supporting family buyers. Transport and mobile signal are average for the area; the plot sits in a semi-detached, ageing suburban classification but benefits from modern construction and communal green spaces.
3 bedroom semi-detached house for sale in Off Lundhill Road,
Wombwell,
Barnsley,
S73 0RH, S73 — £239,995 • 3 bed • 1 bath • 514 ft²
3 bedroom mews property for sale in Off Lundhill Road,
Wombwell,
Barnsley,
S73 0RH, S73 — £234,995 • 3 bed • 1 bath • 558 ft²
3 bedroom mews property for sale in Off Lundhill Road,
Wombwell,
Barnsley,
S73 0RH, S73 — £229,995 • 3 bed • 1 bath • 558 ft²
4 bedroom detached house for sale in Off Lundhill Road,
Wombwell,
Barnsley,
S73 0RH, S73 — £376,995 • 4 bed • 1 bath • 989 ft²
4 bedroom detached house for sale in Off Lundhill Road,
Wombwell,
Barnsley,
S73 0RH, S73 — £384,995 • 4 bed • 1 bath • 878 ft²
4 bedroom detached house for sale in Off Lundhill Road,
Wombwell,
Barnsley,
S73 0RH, S73 — £359,995 • 4 bed • 1 bath • 816 ft²






































