Ideal starter home close to good schools and fast broadband.
- Three bedrooms with principal en-suite
- French doors from kitchen/diner to garden
- Separate laundry room and downstairs WC
- Off-street parking included
- 10-year NHBC warranty for buyer protection
- Total internal area around 558 sq ft (compact)
- Annual service charge £119.55
- Established, low-crime suburban location; ageing demographic
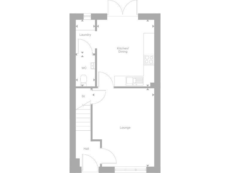
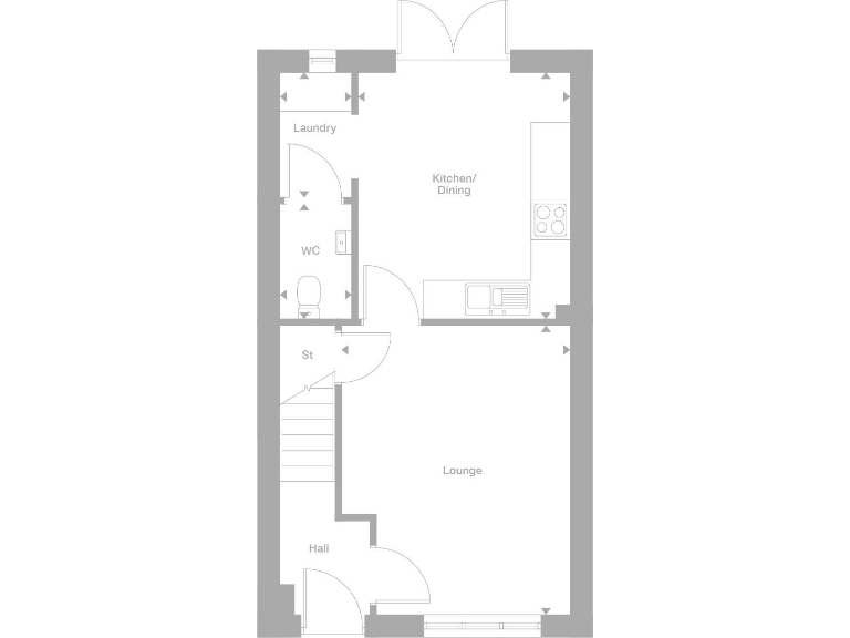
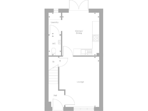
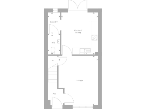
This three-bedroom new-build mews offers a practical layout for first-time buyers or young families. The kitchen/diner opens via French doors to the garden, and the principal bedroom includes an en-suite. A separate laundry room, downstairs WC and allocated off-street parking add everyday convenience.
The home is covered by a 10-year NHBC warranty and benefits from lower running costs typical of new builds. The development allows online pre-reservation and has a modest annual service charge of £119.55. Rooms are efficient rather than expansive — the total floor area is approximately 558 sq ft, so storage planning and careful furniture choices will be important.
Situated in an established suburban pocket of Wombwell with very low local crime and good nearby primary and secondary schools, the setting suits families seeking practical, low-maintenance living. Broadband speeds are fast and mobile signal is average. Note that the wider area is described as ageing suburbanites, which reflects an established neighbourhood profile rather than a newly built community feel.
Overall this property delivers many new-home advantages — warranty cover, modern fittings, garden and parking — but buyers should be aware of the compact internal space and modest room dimensions when assessing suitability.
3 bedroom semi-detached house for sale in Off Lundhill Road,
Wombwell,
Barnsley,
S73 0RH, S73 — £239,995 • 3 bed • 1 bath • 514 ft²
3 bedroom semi-detached house for sale in Off Lundhill Road,
Wombwell,
Barnsley,
S73 0RH, S73 — £242,995 • 3 bed • 1 bath • 514 ft²
3 bedroom semi-detached house for sale in Off Lundhill Road,
Wombwell,
Barnsley,
S73 0RH, S73 — £244,995 • 3 bed • 1 bath
4 bedroom detached house for sale in Off Lundhill Road,
Wombwell,
Barnsley,
S73 0RH, S73 — £384,995 • 4 bed • 1 bath • 878 ft²
4 bedroom detached house for sale in Off Lundhill Road,
Wombwell,
Barnsley,
S73 0RH, S73 — £359,995 • 4 bed • 1 bath • 816 ft²
4 bedroom detached house for sale in Off Lundhill Road,
Wombwell,
Barnsley,
S73 0RH, S73 — £376,995 • 4 bed • 1 bath • 989 ft²


















































































