Brand-new three-storey semi with en-suite principal bedroom and garden — ideal for first-time buyers..
Three-storey new-build with 10-year NHBC warranty
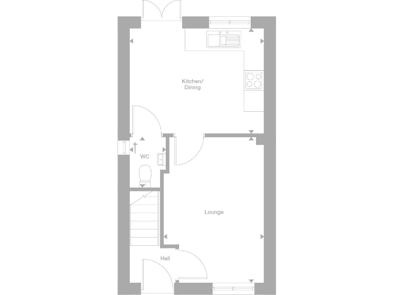
Kitchen/diner with French doors to rear garden
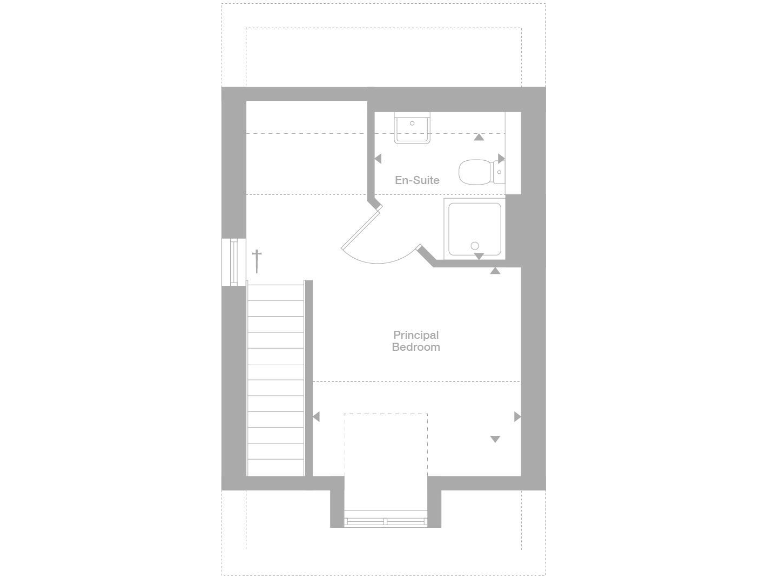
Principal bedroom occupies full top floor with en-suite
Downstairs WC and efficient, low-maintenance layout
Total internal area approx. 514 sq ft — compact footprint
Third bedroom is small; consider space for older children
Annual service charge £119.55; £500 reservation fee applies
Freehold plot; council tax band TBC
This three-bedroom new-build semi-detached home on The Fairways, Wombwell, offers compact, low-maintenance living across three floors — ideal for first-time buyers or young families seeking modern fixtures and a small garden. The kitchen/diner opens through French doors to the rear and there’s off-street parking for practical everyday life. A full 10-year NHBC warranty is included, lowering short-term maintenance risk.
The accommodation is efficient rather than expansive: total floor area is about 514 sq ft with a modest third bedroom and a principal bedroom occupying the entire top floor with an en-suite. The layout provides flexible living space and a useful downstairs WC, but prospective buyers should note the relatively small room sizes and overall footprint when comparing to larger family homes.
Practical costs are straightforward: the plot details list freehold tenure, an annual service charge of £119.55 and a £500 reservation fee. Council tax band is to be confirmed. Fast broadband, very low local crime and nearby well-rated primary schools make the location family-friendly; the property suits buyers who prioritise a brand-new, energy-efficient home in a quiet suburban development over larger, older houses requiring more upkeep.
3 bedroom semi-detached house for sale in Off Lundhill Road,
Wombwell,
Barnsley,
S73 0RH, S73 — £244,995 • 3 bed • 1 bath
3 bedroom semi-detached house for sale in Off Lundhill Road,
Wombwell,
Barnsley,
S73 0RH, S73 — £237,995 • 3 bed • 1 bath
3 bedroom mews property for sale in Off Lundhill Road,
Wombwell,
Barnsley,
S73 0RH, S73 — £229,995 • 3 bed • 1 bath • 558 ft²
3 bedroom mews property for sale in Off Lundhill Road,
Wombwell,
Barnsley,
S73 0RH, S73 — £234,995 • 3 bed • 1 bath • 558 ft²
3 bedroom mews property for sale in Off Lundhill Road,
Wombwell,
Barnsley,
S73 0RH, S73 — £241,995 • 3 bed • 1 bath • 558 ft²
4 bedroom detached house for sale in Off Lundhill Road,
Wombwell,
Barnsley,
S73 0RH, S73 — £376,995 • 4 bed • 1 bath • 989 ft²






















































