High-yield mixed-use holding near major commuter routes ready for rental income.
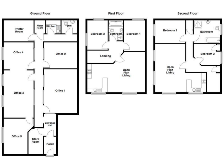
Freehold mixed‑use building: large office plus two two‑bed flats
Approximately 3,475 sq ft and about 18 rooms—high letting capacity
Flats EPC C; commercial EPC E — energy upgrade potential needed
On‑street parking only; limited private parking or tenant spaces
Small rear yard with storage outbuilding; constrained expansion scope
Area classified as deprived; above‑average local crime statistics
Excellent mobile signal and fast broadband—good for business tenants
Easy access to major commuter routes and local amenities
This substantial freehold property combines a large ground-floor office and two two-bedroom apartments across the first floor, offering a clear mixed‑use income opportunity. The building’s traditional brick exterior and mostly modern interiors present good turnkey rental potential for multiple tenants or a single-owner operator. The site includes a small rear yard with a storage outbuilding and benefits from excellent mobile signal and fast broadband for business tenants.
Practical positives include generous internal floor area (approx. 3,475 sq ft), modern fitted kitchens and bathrooms in the flats, and a flexible ground-floor layout comprising five office rooms, kitchenette and WC. Flats have EPC C ratings; the commercial element is EPC E. The property has easy access to major commuter routes and local amenities, supporting lettings to commuters and small businesses.
Notable risks are factual: the commercial EPC rating is E and on-street parking is the only parking provision, which may limit some occupiers. The wider area scores as deprived with above‑average local crime statistics and profiles described as “hampered aspiration” and “constrained renters,” which could affect achievable rents and void periods. The plot is small, so any expansion is limited.
For an investor seeking a high‑capacity mixed‑use asset, this building offers immediate rental scope with room for active asset management — consider targeted energy improvements, security measures, or reconfiguration to maximise income. Viewings and due diligence are recommended to confirm rental assumptions and service needs.
4 bedroom block of apartments for sale in Britannia Street, Great Harwood, Blackburn, BB6 — £259,950 • 4 bed • 2 bath • 3475 ft²
Office for sale in Unit 14, Cunningham Court, Lions Drive, Blackburn BB1 2QS, BB1 — £255,000 • 1 bed • 1 bath • 1288 ft²
Commercial property for sale in Burnley Road, Padiham, Burnley, BB12 — £99,950 • 3 bed • 1 bath • 1389 ft²
Shop for sale in Accrington Road, Blackburn, BB1 — £159,950 • 3 bed • 2 bath • 1023 ft²
Office for sale in Castleway House , 17 Preston New Road, Blackburn , Lancashire, BB2 — £4,900,000 • 1 bed • 1 bath
High street retail property for sale in 83 Manchester Road, Burnley, BB11 1JY, BB11 — £225,000 • 1 bed • 1 bath • 3914 ft²






















































































































































