Spacious freehold investment with strong rental potential near commuter links.
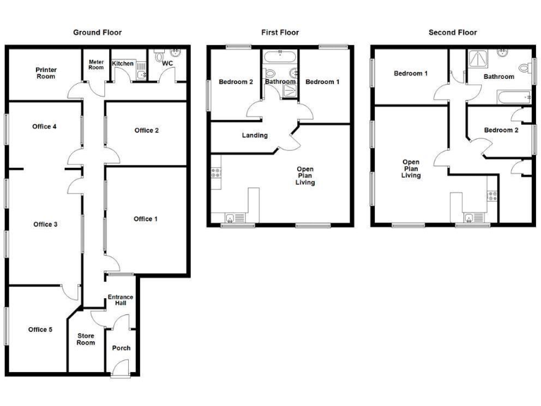
- Freehold block combining office plus two generous two-bed flats
- Extremely large total size: c.3,475 sq ft
- Rear plot with storage building included
- Flats EPC C; commercial space EPC E (upgrade may be needed)
- On-street parking only; no dedicated parking on site
- Area classification: deprived with above-average crime rates
- Easy access to major commuter routes and local amenities
- Ideal for rental investment and income reconfiguration
A substantial freehold block on Britannia Street combining a ground-floor office and two generous two-bedroom apartments across the first floor. The building totals approximately 3,475 sq ft, offering clear rental and business-use potential for an investor seeking scale in Great Harwood. Ground-floor accommodation includes multiple office rooms, kitchenette and WC; the first-floor flats each provide open-plan living kitchens and modern four-piece bathrooms. A rear plot and storage building add practical utility for tenants or a small business.
The property already presents as let-ready in many respects: the flats have modern kitchens, integrated appliances and tiled bathrooms, and overall finish is strong. Flats carry EPC ratings of C, while the commercial element is rated E — a material factor for future lettings or change-of-use work. On-street parking only and no dedicated car park may affect tenant mix and should be considered when setting rents.
Location is convenient for commuter routes to Blackburn, Accrington and Clitheroe and sits close to local amenities and good-rated schools — useful when marketing to working tenants or families. However, the immediate area is classified as deprived with above-average crime statistics; prospective buyers should factor management, security measures and potential void periods into yield calculations. The building’s size and layout offer clear scope for repositioning, upgrade works and income improvement for an active investor.
Commercial property for sale in Britannia Street, Great Harwood, Blackburn, BB6 — £259,950 • 4 bed • 2 bath • 3475 ft²
2 bedroom flat for sale in Delph Road, Great Harwood, Blackburn, BB6 — £89,950 • 2 bed • 1 bath • 625 ft²
2 bedroom block of apartments for sale in 290/290A Accrington Road, Blackburn, Lancashire, BB1 — £214,000 • 2 bed • 1 bath • 750 ft²
2 bedroom end of terrace house for sale in Commercial Road, Great Harwood, Blackburn, BB6 — £90,000 • 2 bed • 1 bath • 786 ft²
Shop for sale in Accrington Road, Blackburn, BB1 — £159,950 • 3 bed • 2 bath • 1023 ft²
Commercial property for sale in Pickup Street, Clayton Le Moors, Accrington, BB5 — £120,000 • 1 bed • 1 bath • 703 ft²






















































































































































