**Standout Features:**
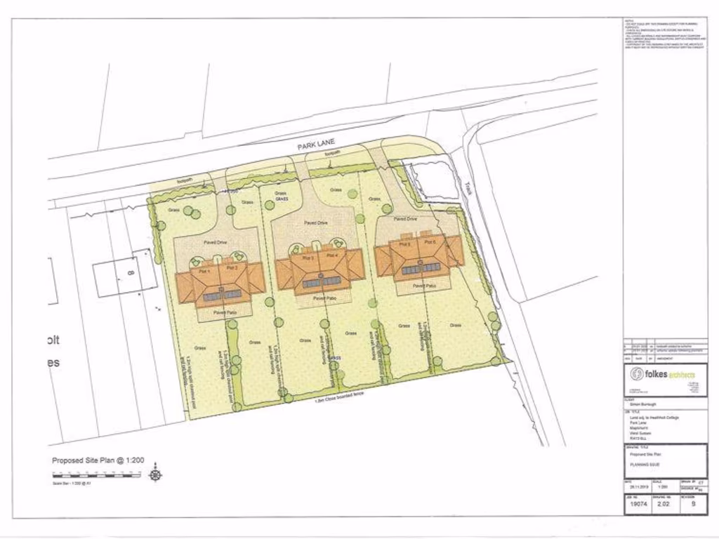
- Large semi-rural building plot of approximately 0.90 acres
- Planning consent for the construction of six semi-detached houses (3 bedrooms, ~1,277 sqft each)
- South-facing gardens with extensive rural views
- Attached single garages and driveway parking for each house
- Quiet location on the edge of Maplehurst, just 5.5 miles from Horsham
- Low crime rate and excellent mobile and broadband connectivity
- Chain-free sale
**Summary Description:**
Seize a unique development opportunity in the idyllic village of Maplehurst! This expansive building plot, measuring close to 0.90 acres, is primed for the construction of six semi-detached homes, each designed with 3 bedrooms and an airy, open-plan living space that flows out to private, south-facing gardens. The stunning rural views over lush pastures and woodlands create a serene backdrop, appealing to families looking for comfort and tranquility.
This property offers excellent potential for growth in a thriving community, appealing to both investors and families seeking a peaceful lifestyle. With infrastructure already in place, including paid Community Infrastructure Levy and planning consent granted by Horsham District Council, you can hit the ground running on this exciting new build project. Don't miss this rare opportunity—properties like this don't stay on the market for long!
Land for sale in West Chiltington Lane, Coneyhurst, RH14 — £750,000 • 1 bed • 1 bath • 3918 ft²
Plot for sale in Misbrooks Green Road, Capel, RH5 — £750,000 • 1 bed • 1 bath
Plot for sale in Green Lane, South Chailey, BN8 — £225,000 • 1 bed • 1 bath • 1011 ft²
Plot for sale in Blackstone Lane, Blackstone, BN5 — £450,000 • 1 bed • 1 bath • 1059 ft²
Land for sale in Hophurst Lane, Crawley Down, RH10 — £700,000 • 1 bed • 1 bath • 3000 ft²
5 bedroom detached house for sale in Littleworth, Partridge Green, Horsham, West Sussex, RH13 — £500,000 • 5 bed • 3 bath • 2368 ft²






































