Full planning for three homes on 14 acres close to Billingshurst and Horsham.
Planning permission in place for three dwellings (Ref: DC/20/2567)
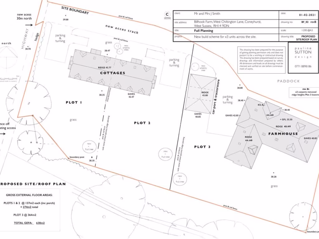
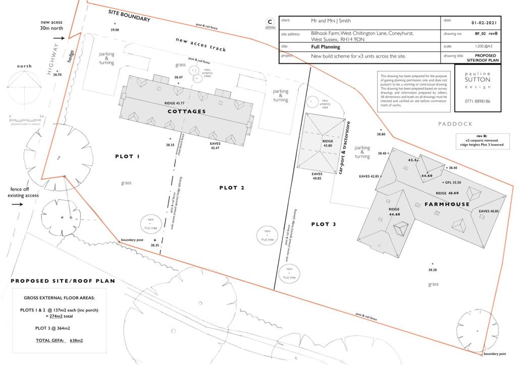
Approximately 14.42 acres of pasture and open land
Good road access; 2.6 miles to Billingshurst, 6 miles to Horsham
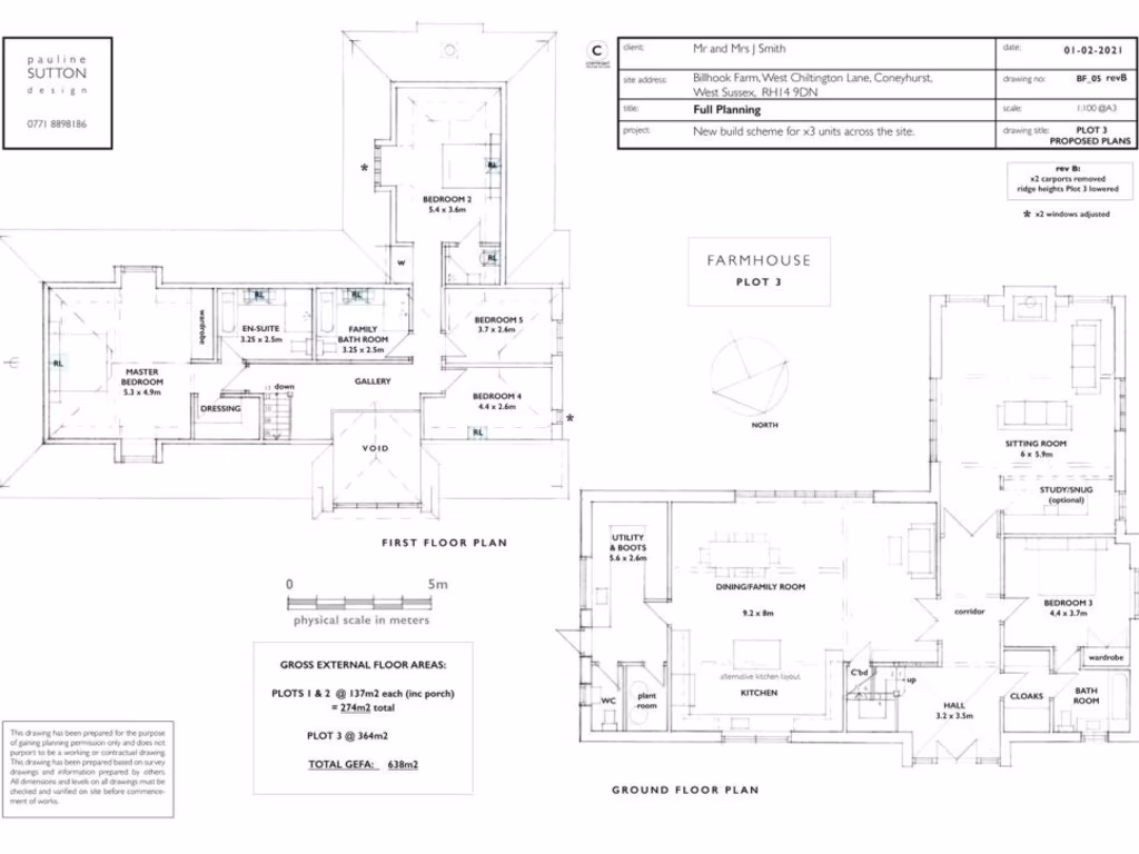
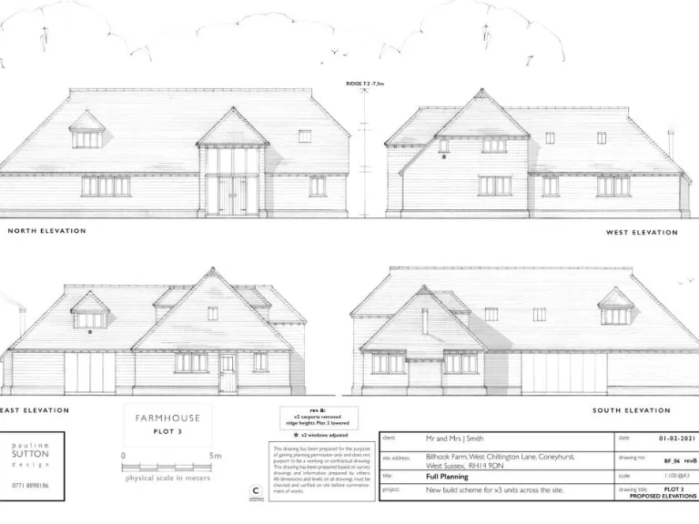
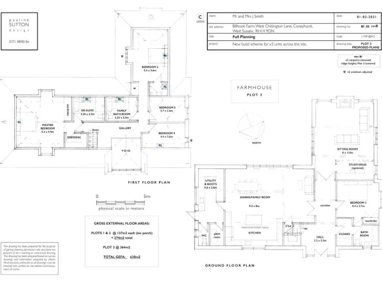
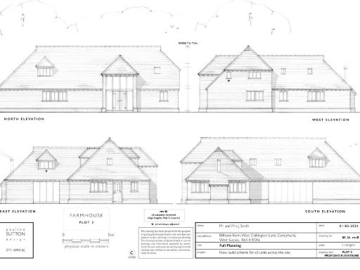
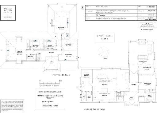
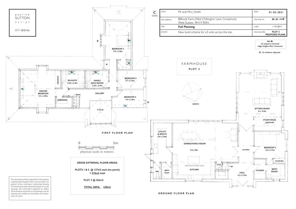
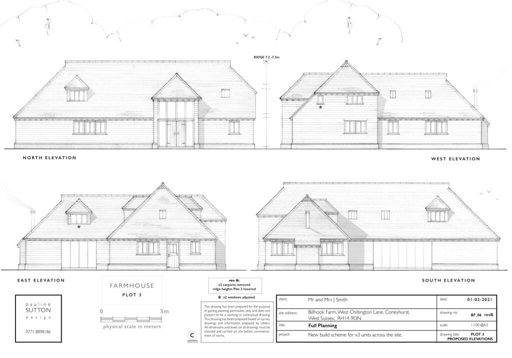
Two semis ~137 sq.m. each; farmhouse ~364 sq.m. (total 638 sq.m.)
Sold freehold; electricity to site (meters not yet installed)
Purchaser responsible for mains water connection and servicing costs
Very slow broadband speeds on site; limited digital connectivity
Vendor retains right of access; barns relocation and easements apply
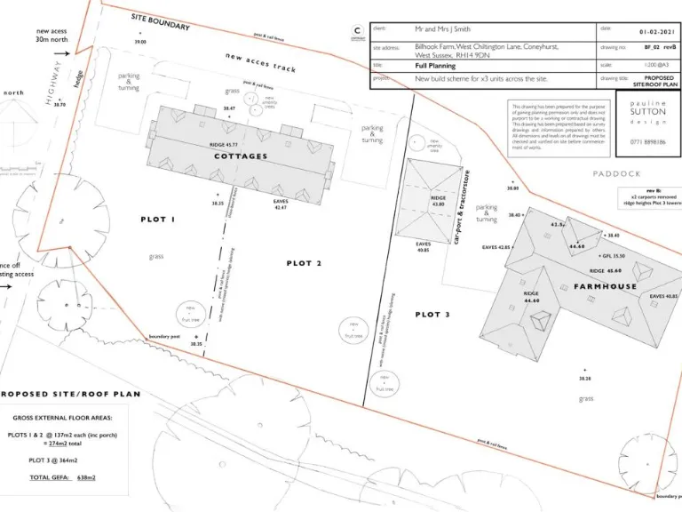
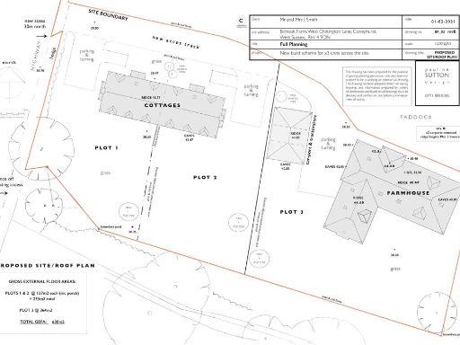
A rare countryside development plot offering full planning consent (Ref: DC/20/2567) to replace two former agricultural buildings with three homes: a large detached farmhouse and a pair of semi‑detached cottages. The site extends to about 14.42 acres of pasture and pasture-adjacent land, providing substantial private grounds and scope for gardens, outbuildings or equestrian use. Good road links place Billingshurst (2.6 miles) and Horsham (6 miles) within easy reach while retaining a secluded rural character.
The consented scheme provides clear sizes: two semi‑detached plots at approximately 137 sq.m. each and a detached farmhouse at c.364 sq.m., totalling about 638 sq.m. (6,867 sq.ft.). The land is sold freehold with existing electricity grid connection terminating at three onsite meter boxes; purchasers will be responsible for mains water connection. The vendor has indicated a desire to relocate existing barns and will retain a right of access through a new entrance for retained land if unsold.
Practical considerations are straightforward: planning is granted, road access is good, and the pasture setting suits buyers seeking a rural development or owner‑occupier farmhouse. Notable constraints include very slow broadband on site and above‑average local crime figures, which may affect some end uses. Purchasers should also allow for plot servicing costs (water connection, meters, finishes) and the vendor’s retained access rights. Viewings and offers should reflect the planning detail; buyers are advised to review the planning pack and local authority conditions before proceeding.
3 bedroom detached bungalow for sale in West Chiltington Lane, Broadford Bridge, Billingshurst , RH14 — £1,100,000 • 3 bed • 2 bath • 3000 ft²
3 bedroom detached bungalow for sale in West Chiltington Lane, Broadford Bridge, Billingshurst , RH14 — £950,000 • 3 bed • 2 bath • 3000 ft²
Land for sale in Sayers Common, BN6 — £800,000 • 1 bed • 1 bath
Land for sale in Slinfold, RH13 — £275,000 • 1 bed • 1 bath
Land for sale in Jobsons Lane, Lurgashall, GU28 — £850,000 • 1 bed • 1 bath • 7600 ft²
Barn for sale in Blanks Lane, Charlwood, Surrey, RH60ES, RH5 — £110,000 • 1 bed • 1 bath • 1593 ft²






































































