**Standout Features:**
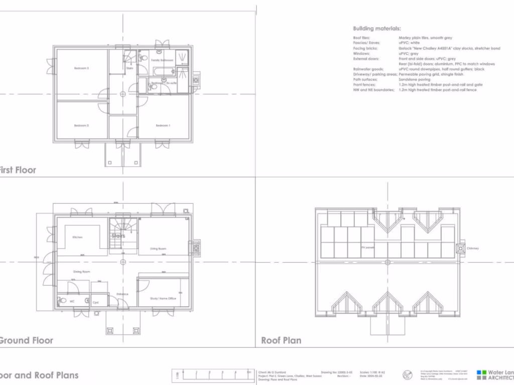
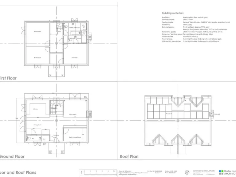
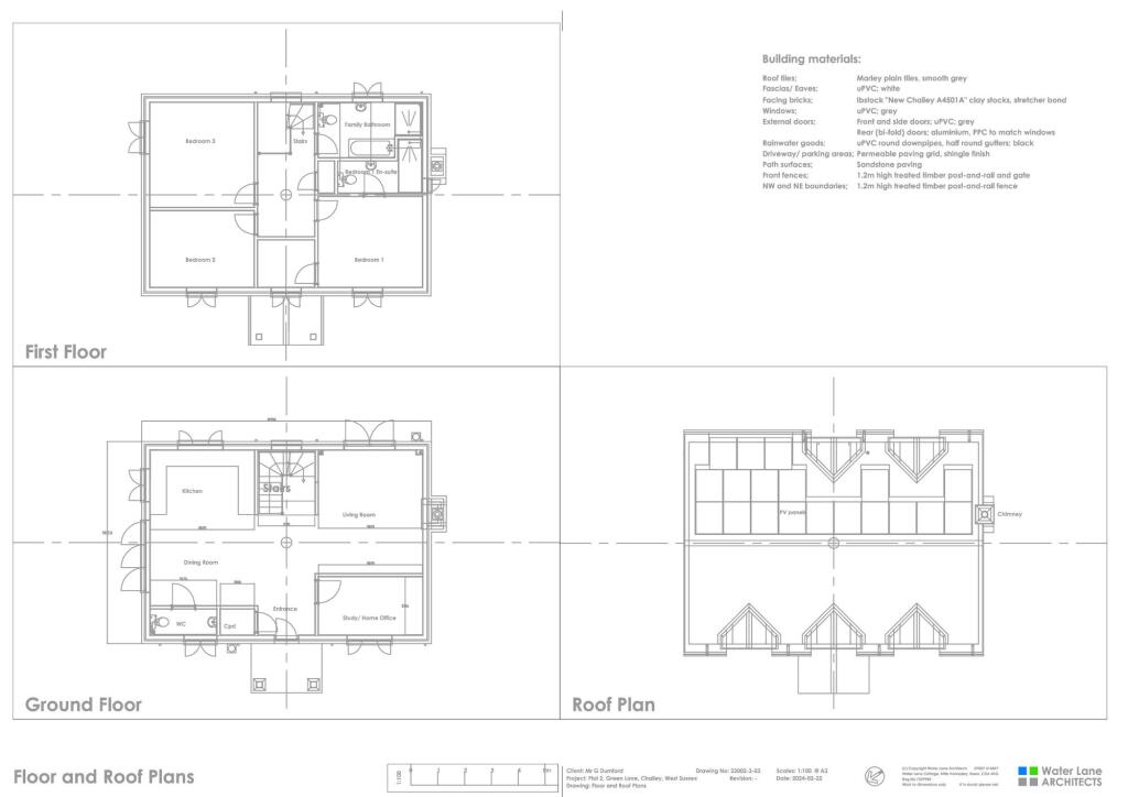
- Planning consent to build a three-bedroom detached house (Ref: LW/22/0089)
- Spacious plot with an approximate area of 1011 sq ft
- Off-street parking available for two cars
- Located on the charming rural fringes of South Chailey
- Excellent mobile signal and fast broadband speeds
- Tranquil setting surrounded by open countryside, ideal for families or investors
**Potential Concerns:**
- Currently a vacant lot requiring development
- Limited immediate amenities within the rural setting
Nestled in the picturesque countryside of South Chailey, this rare plot of land offers a fantastic opportunity to build your dream home. With approved planning permission for a spacious three-bedroom detached house, you can create a comfortable retreat in a serene environment. The generous space of 1011 sq ft allows for a well-designed layout with off-street parking for two vehicles.
Enjoy the benefits of rural living while remaining within easy reach of nearby towns like Lewes and Haywards Heath, providing essential amenities and fast rail links to London. The local community boasts a shop with post office facilities, excellent schools, and lovely walking trails through the countryside. This exclusive plot presents a unique chance to invest in your future lifestyle, where you can enjoy peace, comfort, and the beauty of nature. Don't miss out on this exceptional opportunity—secure your future home in a thriving countryside setting today!
Plot for sale in Green Lane, South Chailey, BN8 — £550,000 • 3 bed • 1 bath • 840 ft²
5 bedroom detached house for sale in Palehouse Common, Framfield, East Sussex, TN22 — £875,000 • 5 bed • 4 bath • 4628 ft²
Land for sale in Lewes Road, Laughton, Lewes, East Sussex, BN8 — £1,300,000 • 1 bed • 1 bath • 16185 ft²
Land for sale in Danehill - building plot, RH17 — £400,000 • 1 bed • 1 bath • 1892 ft²
Land for sale in Land at Church Lane, Laughton, BN8 6AH, BN8 — £775,000 • 1 bed • 1 bath
Land for sale in Tylers Lane, TN22 — £499,950 • 3 bed • 1 bath


























