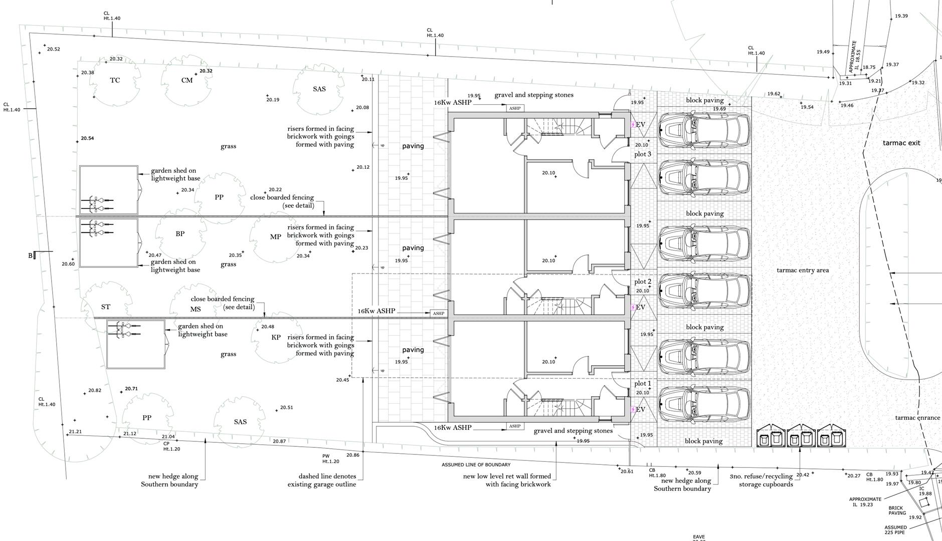
Freehold rural plot with approved plans and vacant garages ready for redevelopment.
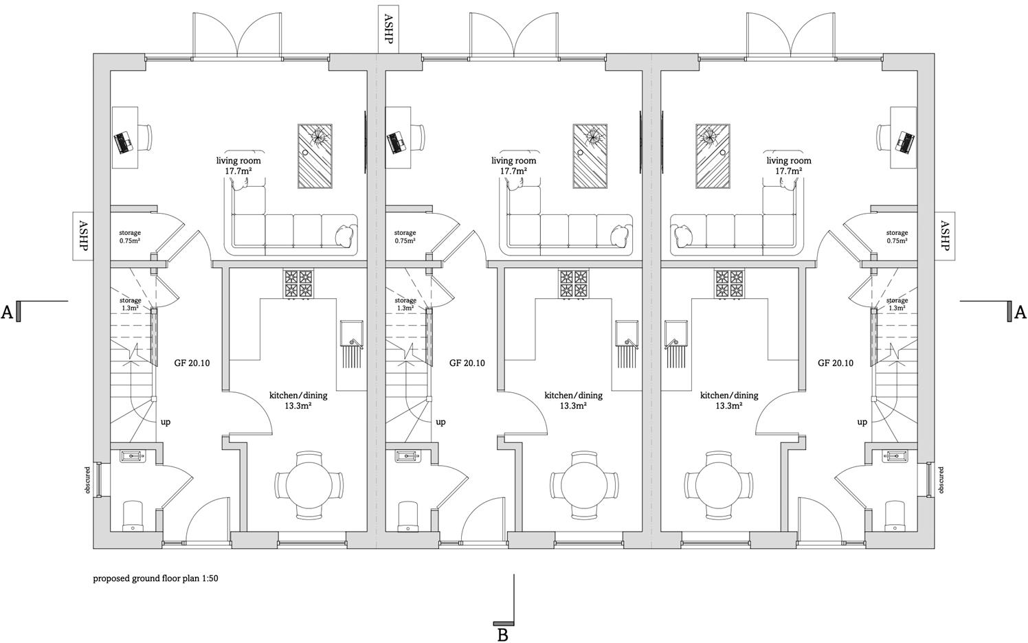
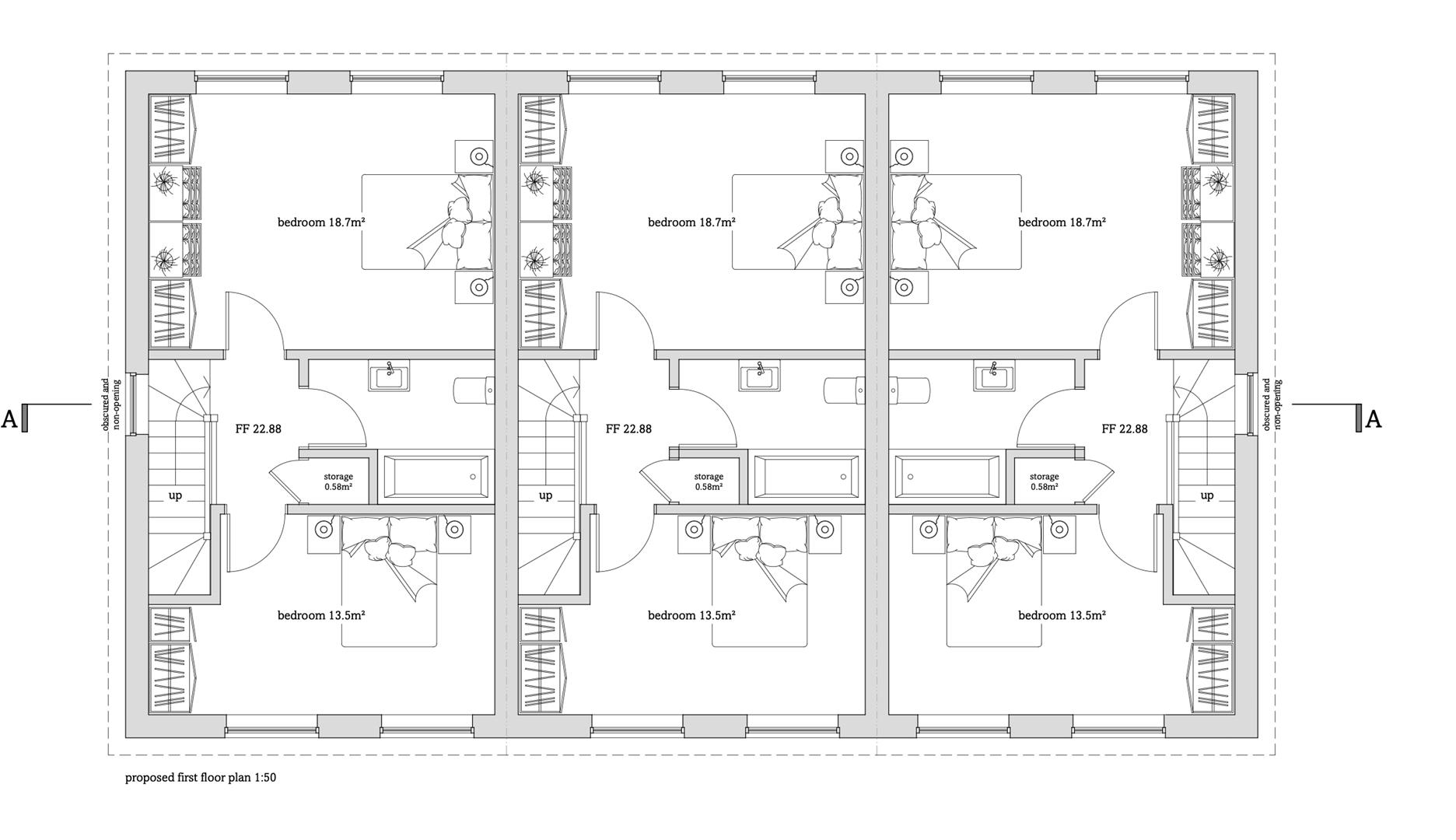
Planning approved under DC/25/0616 for 3 × two‑bed houses
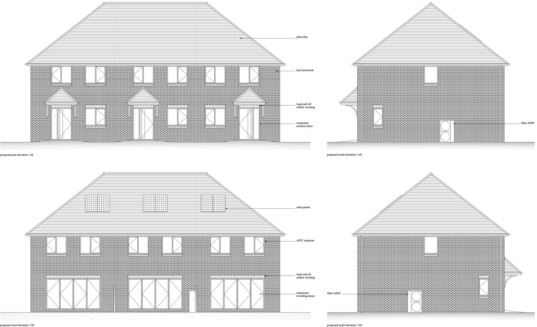
An uncommon development opportunity in semi-rural Blackstone with planning approval (DC/25/0616) for three two‑bed houses. The freehold plot includes eight now‑vacant garages, established greenery and open countryside views, and benefits from off‑street parking and rear gardens for each planned unit. The site is offered for sale by auction on 24 September with a guide price of £400,000+. Total area listed as 1,059 sq ft and broadband speeds reported as fast.
This parcel suits small‑scale residential developers or investors seeking a quick planning‑backed conversion. The approved scheme delivers family‑sized two‑bed homes with kitchen/diner layouts, separate living rooms and private gardens — a straightforward build route in an affluent, low‑crime village setting about 2.5 miles from Henfield High Street.
Buyers should note the site’s current condition: the garages and some areas are derelict and overgrown and will require clearance and basic site preparation before construction. The plot is clustered and semi‑rural, so build logistics and access management will be practical but require planning for contractors and storage. The sale is by auction, so budgets should factor in immediate purchase timelines and any additional build or remediation costs.
Overall this is a planning‑approved, freehold development plot offering quick route to three two‑bed homes in a prosperous countryside location. It will appeal to small developers or investor-buyers seeking countryside rental or resale units where approved permission reduces entitlement risk.
Land for sale in Station Road, Henfield, West Sussex, BN5 — £275,000 • 1 bed • 1 bath • 4800 ft²
Plot for sale in Green Lane, South Chailey, BN8 — £550,000 • 3 bed • 1 bath • 840 ft²
6 bedroom house for sale in Wheatsheaf Road, Wineham, Henfield, BN5 — £900,000 • 6 bed • 2 bath • 5018 ft²
2 bedroom detached bungalow for sale in Storrington, Pulborough, West Sussex, RH20 — £475,000 • 2 bed • 1 bath
Property for sale in Ashurst Lane, Plumpton, BN7 — £500,000 • 1 bed • 1 bath • 2395 ft²
Plot for sale in Green Lane, South Chailey, BN8 — £225,000 • 1 bed • 1 bath • 1011 ft²














































