Large gardens and versatile living for growing families seeking countryside calm.
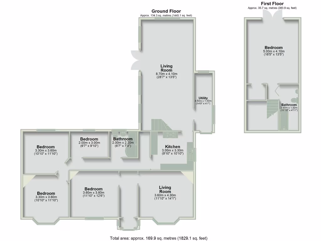
- Five bedrooms with flexible reception use and master suite above extension
- Large south-facing plot of approximately 1/4 acre with mature gardens
- Substantial rear extension creating a bright family room and dining space
- Garage parking; driveway and multiple garden outbuildings (greenhouse, summer house)
- Period features: stained glass, log burners and sandstone/limestone walls
- Built before 1900; walls assumed uninsulated — likely energy upgrades required
- Two bathrooms only for five bedrooms; consider en-suite/extra bathroom potential
- Area local deprivation high despite fast broadband and excellent mobile signal
Oaklea is a deceptively spacious five-bedroom detached house set on roughly a quarter-acre south-facing plot, ideal for families who value garden space and flexible living. The property combines period character — stained glass, sandstone walls and traditional fireplaces — with a large, light-filled rear extension that forms an impressive family room and dining area opening onto mature gardens.
The house offers versatile accommodation across multiple levels: reception rooms with log burners and a double bedroom that can function as an additional sitting room, a well-equipped kitchen with space for a freestanding range, and a utility with a solid oak staircase leading to a master suite with a Juliet balcony and bathroom access. Outside, the expansive garden includes a large pond, greenhouse, summer house and garage, providing plenty of space for children to play and for family entertaining.
Buyers should note a few practical points. The building dates from before 1900 and the sandstone or limestone walls are understood to have no insulation, so upgrading thermal performance may be needed. There are solid fuel burners/log fires that will require regular servicing. The house has two bathrooms for five bedrooms, which may be a consideration for larger families. The property sits in an area classified as having high deprivation levels locally, though it benefits from fast broadband, excellent mobile signal and no flood risk.
Overall, Oaklea suits families wanting character, generous gardens and flexible living space, with clear potential to improve energy efficiency and internal layout to match modern needs. Viewing will best show how the house’s large, south-facing plot and mature outdoor features can become the heart of family life.
5 bedroom bungalow for sale in Denbigh, Denbighshire, LL16 — £600,000 • 5 bed • 2 bath • 2258 ft²
4 bedroom detached house for sale in Tyn y Cestyll Road, Glyn Ceiriog, Llangollen, LL20 — £637,000 • 4 bed • 3 bath • 3790 ft²
4 bedroom detached house for sale in St. Asaph Road, Lloc, Holywell, Flintshire, CH8 — £475,000 • 4 bed • 2 bath • 2445 ft²
5 bedroom detached house for sale in Pant Hyfryd, Cymau, LL11 — £575,000 • 5 bed • 3 bath • 3157 ft²
3 bedroom detached house for sale in Chester Road, Oakenholt, Flint, Flintshire, CH6 — £375,000 • 3 bed • 1 bath • 1723 ft²
7 bedroom detached house for sale in Downing Road, Whitford, CH8 — £560,000 • 7 bed • 3 bath • 3237 ft²






































































































































