Large four-bedroom house with paddock, valley views and no onward chain.
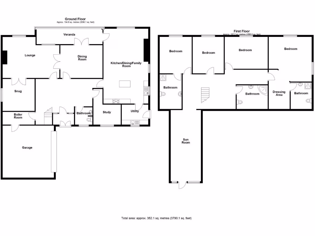
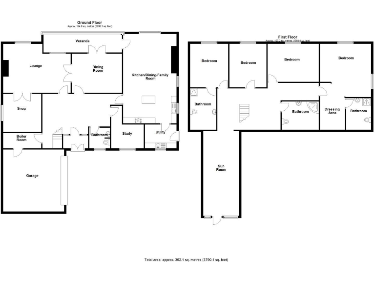
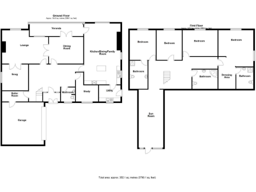
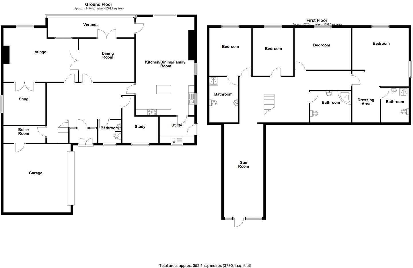
Nearly 3,790 sq ft of accommodation over multiple floors
Set on over an acre including an adjoining paddock, The Oaks is a substantial detached family house in peaceful Glyn Ceiriog. The home offers nearly 3,790 sq ft of living space with multiple reception rooms, a large kitchen/family area, sunroom and a fitted study — ideal for family life and home working. Large windows and a front balcony deliver far-reaching Ceiriog Valley views from principal rooms.
The interior is presented to a high standard with solid oak and stone finishes, fitted wardrobes and two en-suites, so the property is largely move-in ready. Practical extras include a double garage with electric door, extensive block‑paved parking and a useful boot/utility area with direct garage access.
Material points to note: heating is supplied by an oil-fired boiler (private supply), the property sits in a rural, remoter community with limited local services and is in a high council tax band (Band H). The area is recorded as very deprived, which may affect resale prospects and local amenities.
No onward chain and freehold tenure make for a straightforward purchase route. For families seeking substantial indoor space, outdoor privacy and strong broadband in a tranquil valley setting, this property offers rare scale and rural character. Buyers should budget for oil fuel running costs and review local services before committing.
5 bedroom bungalow for sale in Denbigh, Denbighshire, LL16 — £600,000 • 5 bed • 2 bath • 2258 ft²
4 bedroom detached house for sale in Cae Plas Teg, Glyn Ceiriog, LL20 — £295,000 • 4 bed • 1 bath • 1131 ft²
4 bedroom detached house for sale in Nantyr Road, Glyn Ceiriog, LL20 — £500,000 • 4 bed • 2 bath • 2188 ft²
3 bedroom detached house for sale in Pontfadog, LL20 — £725,000 • 3 bed • 3 bath • 2121 ft²
7 bedroom country house for sale in Selattyn Road, Glyn Ceiriog, Llangollen, LL20 — £1,200,000 • 7 bed • 4 bath • 3465 ft²
4 bedroom detached house for sale in Cefn Canol, SY10 — £680,000 • 4 bed • 2 bath • 1852 ft²


















































































































