EH12 5UJ - 3 bedroom flat for sale in 62 Glendevon Place, Edinburgh, E…

View on Property Piper

3 bedroom flat for sale in 62 Glendevon Place, Edinburgh, EH12 5UJ, EH12

Summary - 62, GLENDEVON PLACE, EDINBURGH EH12 5UJ

3 bed 2 bath Flat

**Standout Features:**

- Charming Victorian property in Balgreen
- Three spacious bedrooms and two modern bathrooms
- High ceilings and large bay windows that enhance natural light
- Private rear garden with decking and lawn area
- Excellent storage solutions and gas central heating
- Proximity to local shops, schools, and transport links

**Concise Summary:**

This beautifully presented three-bedroom Victorian upper flat in the sought-after Balgreen area of Edinburgh offers modern family living combined with period charm. Featuring high ceilings, elegant bay windows, and an inviting lounge with an attractive fireplace, this home is designed for comfort and style. The spacious dining kitchen seamlessly connects to a lovely rear garden, perfect for outdoor gatherings.

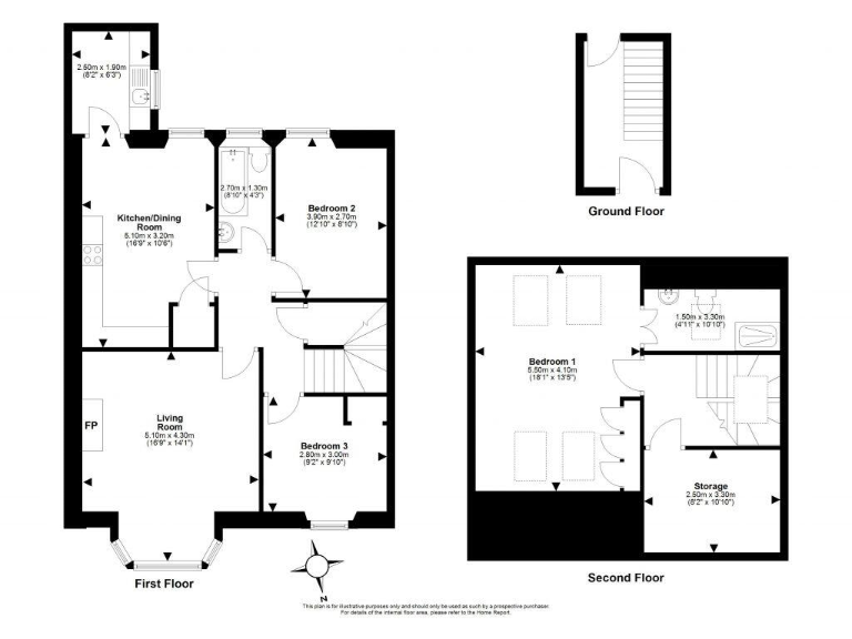
The property comprises two double bedrooms, a utility room, and a family bathroom on the lower level, while the upper floor features a sun-drenched master bedroom with Velux windows and an ensuite shower room. Situated in a quiet residential street, you’ll have convenient access to local amenities, schools, and public transport options including the nearby Balgreen tram stop. While the property is well-maintained, it's set in an area that may require attention to its broader socio-economic context. This is an excellent opportunity for families or savvy investors looking for a home with character and room for personalized touches. Don’t miss out on this unique offering in a popular neighborhood!

Property Details

Brochure Descriptions

Image Descriptions

Floorplan Description

Rooms

Textual Property Features

Detected Visual Features

Nearest Bars And Restaurants

,,,,}

Nearest General Shops

,,}

Nearest Grocery shops

,,}

Nearest Supermarkets

,,}

Nearest Religious buildings

,,}

Nearest Medical buildings

,,,}

Nearest Airports

}

Nearest Leisure Facilities

,,,,}

Nearest Tourist attractions

,,}

Nearest Train stations

,,,,}

Nearest Bus stations and stops

,,,,}

Nearest Hotels

,,}

Tags

Local Market Stats

AirBnB Data

Similar Properties

Meta

High Res Images

Compatible Images

Low res Images

Thumbnails

Raw Images

High Res Floorplan Images

Compatible Floorplan Images

Low res Floorplan Images

FloorplanImages Thumbnail

Raw Floorplan Images