EH12 5UB - 6 bedroom semidetached villa for sale in 72 Balgreen Road,…

View on Property Piper

6 bedroom semi-detached villa for sale in 72 Balgreen Road, Balgreen, EH12 5UB, EH12

Summary - 72, BALGREEN ROAD, EDINBURGH EH12 5UB

6 bed 2 bath Semi-detached Villa

**Standout Features:**
- Spacious 6-bedroom Victorian semi-detached villa
- Generous bay windowed living room & formal dining room with fireplaces
- Private front and southwest-facing rear garden with patio
- Excellent storage throughout and original period features
- On-street parking, gas central heating, and double glazing
- Convenient location near local amenities and transport links

**Potential Concerns:**
- Could require minor maintenance updates
- Council tax noted as quite expensive

Step into this stunning Victorian semi-detached villa nestled in the desirable Balgreen district of Edinburgh, EH12 5UB. Offering a blend of character and spacious living, this home features six expansive bedrooms, making it an ideal choice for larger families. The inviting reception hall leads to a magnificent bay-windowed living room complete with an elegant gas fire, and a well-appointed formal dining room, perfect for gatherings.

The updated kitchens and utility spaces offer practicality while retaining traditional charm, and you’ll appreciate the convenience of two full bathrooms. Outside, enjoy your landscaped front garden and a private, enclosed southwest-facing rear garden with a patio area, perfect for summertime relaxation.

Located within easy reach of local shops, schools, and excellent transport options, this property is perfect for families seeking a warm, inviting home close to Edinburgh’s city center. Don't miss the opportunity to secure this charming abode that promises both comfort and future potential—schedule a viewing today!

Property Details

Brochure Descriptions

Image Descriptions

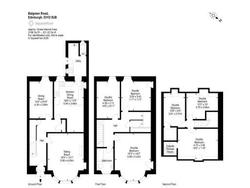
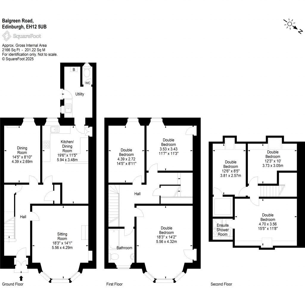
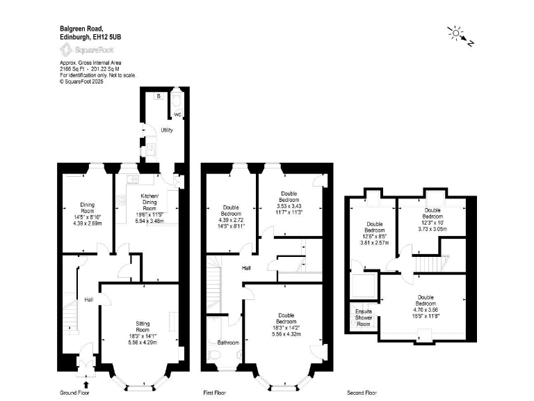
Floorplan Description

Rooms

Textual Property Features

Detected Visual Features

Nearest Bars And Restaurants

,,,,}

Nearest General Shops

,,}

Nearest Grocery shops

,,}

Nearest Supermarkets

,,}

Nearest Religious buildings

,,}

Nearest Medical buildings

,,,}

Nearest Airports

}

Nearest Leisure Facilities

,,,,}

Nearest Tourist attractions

,,}

Nearest Train stations

,,,,}

Nearest Bus stations and stops

,,,,}

Nearest Hotels

,,}

Tags

Local Market Stats

AirBnB Data

Similar Properties

Meta

High Res Images

Compatible Images

Low res Images

Thumbnails

Raw Images

High Res Floorplan Images

Compatible Floorplan Images

Low res Floorplan Images

FloorplanImages Thumbnail

Raw Floorplan Images